
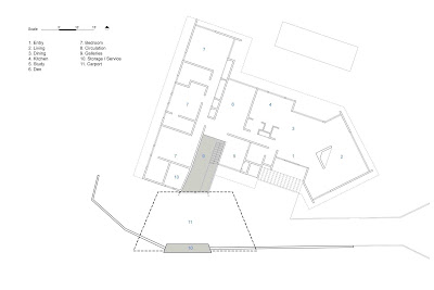
Entre sus deseos también figuraba una oficina con vistas al exterior y que el nuevo anexo no se limitara a ser un simple espacio donde exponer sus cuadros y fotografías. Tendría que poseer salas polivalentes, adecuadas para la presentación de sus obras de arte, pero abiertas a la posibilidad de poder utilizarse con otros fines.


La geometría de la nueva edificación -a la que se ha llamado Sapphire Gallery- se ha articulado como un gran voladizo doble cónico, que cuenta con tres salas independientes y una delicada conexión con la casa principal. Las galerías se han diseñado como amplios espacios blancos, bañados por la luz natural y abiertos al paisaje circundante gracias a los paramentos verticales de cristal.




En el techo inclinado hacia el sur se instalaron un conjunto de celdas fotovoltaicas que producen un promedio de 15 Kw/h por día, suficiente para suministrar la energía necesaria al nuevo edificio con un superávit que cubre parte de las necesidades energéticas de la casa principal.













Leave A Reply