La obra proyectada por Ricardo Abuauad se encuentra ubicada en un condominio en Chicureo, en la periferia norte de Santiago (Chile), en un terreno cuadrado de aproximadamente 70 x 70 m. El encargo consistió en una vivienda para una pareja y sus tres hijos.
El gran tamaño del predio, la vegetación de espinos preexistente y las vistas a los macizos montañosos de los alrededores, hacían necesario una propuesta capaz de afectar a una zona más amplia de aquella que cubriría la edificación.



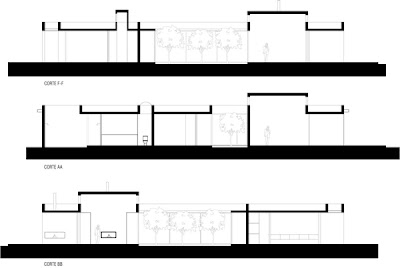
También es importante que estos patios permiten difuminar el límite entre el adentro y el afuera, ya que en la casa se está permanentemente en un “entre”. Por último, cada uno de los patios caracteriza los recintos que se encuentran a su alrededor y la manera diferenciada de tratarlos aumenta esta situación.

Otros dos patios menores sirven a recintos específicos: el que articula la relación entre la cocina y el baño de cortesía y el que permite iluminar el baño del dormitorio principal. Por último, el patio de servicio, completa la planta.

Para aumentar la fluidez en la relación entre interior y el exterior, los paneles de cristal del salón se pliegan unos sobre otros hasta hacerlos casi desaparecer.
Información e imágenes facilitadas por Ricardo Abuauad














Leave A Reply