El estudio japonés Geneto ha diseñado esta personalísima casa, ubicada en una tranquila área residencial de Tokyo. Su diseño ha surgido a partir de las conversaciones con el cliente acerca de la importancia de lo que denominan “las escenas de la vida diaria” (las conversaciones entre la pareja, el cielo visto desde la cocina o la fiesta de cumpleaños de los niños).

Estas escenas se han asociado al contexto existente y han servido para desarrollar un mobiliario en tres dimensiones, ya que los arquitectos pensaron en hacer un espacio funcional trabajando más con el mobiliario que con la arquitectura en sí.
En la DG House, los muebles están pensados como volúmenes, no como muebles “normales”, para llevar a cabo las diversas áreas de la vivienda. Este mobiliario cumple una función de escenario donde tienen lugar “las escenas de la vida diaria”.
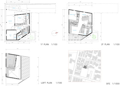
En la planta baja se encuentran algunas habitaciones, el salón, el comedor y la cocina, mientras que el segundo piso es como un gran espacio dividido por muebles.
Los volúmenes se han fabricado, en el propio taller de Geneto, con madera contrachapada de 24 mm y se han pintado de oscuro dando sensación de masa, aunque la sensación de madera se recupera cuando te acercas.
Fotografías: Takumi Ota
Planimetría:
Información e imágenes facilitadas por el estudio Geneto






























Leave A Reply