Disfrutar de la naturaleza era uno de los propósitos que perseguía el estudio dublinés ODOS Architects a la hora de proyectar esta casa, situada en una escarpada pendiente de Wicklow Hills, en la costa oriental de Irlanda. Para ello, se ha creado un volumen-mirador casi transparente, elevado intencionadamente del suelo, a través de cuyos ventanales el paisaje circundante fluye ininterrumpidamente

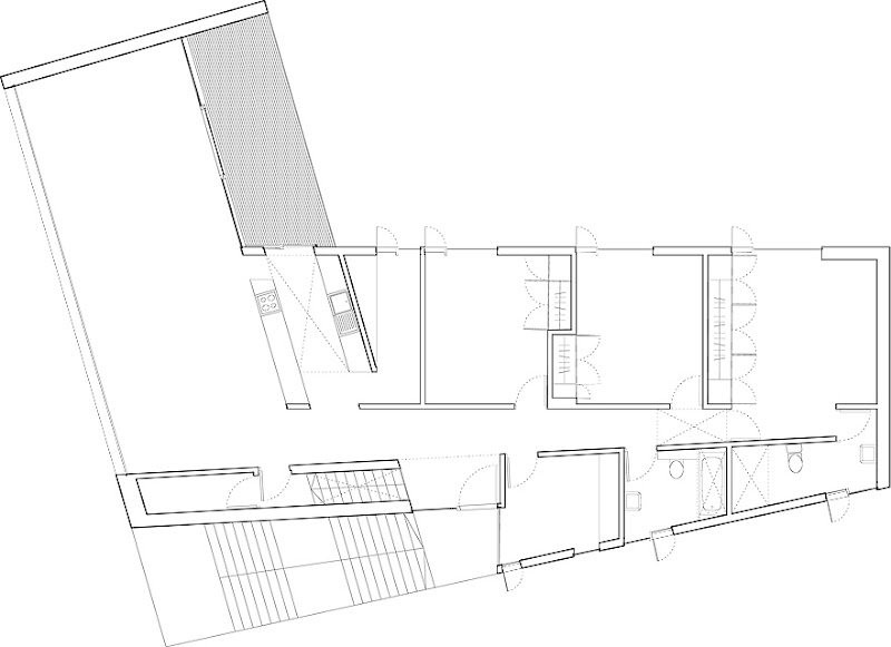
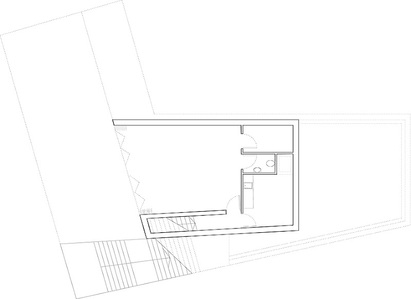
En su interior, la vida transcurre entre dos niveles. La planta baja dispone de un garaje para dos coches, sala de calderas y servicios, y aseo. En el primer piso, se ubican el salón, la cocina y el comedor, que comparten una misma zona, tres habitaciones (la principal con baño), un estudio y un segundo cuarto de baño.
Las claraboyas que salpican la cubierta hacen participar todavía más a los habitantes del exterior que pueden disfrutar del cielo y de la vegetación desde los espacios más íntimos de la casa.
Ficha técnica:
- Proyecto: Casa en Wicklow.
- Localización: Wicklow Hills (Irlanda).
- Año: 2008.
- Arquitectos: ODOS Architects.
- Superficie: 287 m2.
- Premios: Opus Ireland Awards (2008).
- Fotografías: Ros Kavanagh.
Planimetría:
Sobre ODOS Architects:
ODOS Architects fue creado por Darrell O’Donoghue y David O’Shea en el año 2002 y su currículum cubre una amplia escala de clientes: residencias privadas, edificios de viviendas, bares, restaurantes, comercios, oficinas y edificios religiosos. Su trabajo, como ellos mismos afirman, está “totalmente interesado en la realización de una arquitectura contemporánea en respuesta a las diversas influencias sociales y culturales”.
Este interés se ha visto recompensado con diversos premios como los AR International Emerging Architecture Awards (2009), “Best House” en los RIAI Irish Architecture Awards (2009) o las dos menciones especiales en los AAI Awards 2010 y 2009, entre otros.
Información e imágenes facilitadas por ODOS Architects
















Leave A Reply