La Casa del Atrio es un proyecto realizado por el estudio valenciano Fran Silvestre Arquitectos. La impresionante vivienda, que está situada en una zona urbana, parte del deseo de maximizar la sensación de amplitud.
Para conseguirlo se han utilizado dos estrategias. La principal ha consistido en liberar la mayor superficie posible en el centro del solar, permitiendo disfrutar de un espacio privado con una altura y volumen incalculables. Además, se ha potenciado el perímetro de contacto de la vivienda con el exterior, entendiendo parcela y vivienda como un todo continuo.
Por otro lado, se ha aprovechado el desnivel existente con el barranco próximo para iluminar el sótano, lo cual ha posibilitado que parte del programa se lleve a cabo en este espacio.
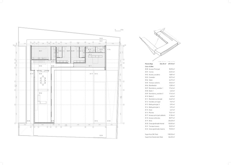
La edificación se desarrolla a lo largo de los lindes Sur y Oeste de la parcela, que junto a los elementos que componen la urbanización del solar, configuran una suerte de atrio, cuya diagonal fuga hacia una visión lejana de la Sierra Calderona.
El acceso se produce acompañado por la fachada Sur hasta encontrar el punto de intersección. En este lugar de visión privilegiada se ubica el distribuidor que, junto a la escalera y la cocina, vertebran el funcionamiento de la vivienda.
La zona Sur, en la que se disponen las estancias de día, desmaterializa su presencia gracias a la luz cenital. En la zona Oeste, las habitaciones recaen a una porción de parcela con una escala más doméstica, mientras la habitación principal se asoma a la luz de levante reflejada sobre el agua.
En la parte oscura del sótano se encuentran el garaje y la bodega. El resto de usos del programa miran al barranco a través del cual se iluminan.
Ficha técnica:
-
La Casa del Atrio.
-
Proyecto: Fran Silvestre Navarro Arquitectos.
-
Año: 2010.
-
Localización: Valencia (España).
-
Arquitectos del proyecto: Fran Silvestre Navarro, María José Sáez.
-
Diseño interior: Alfaro Hofmann.
-
Equipo de proyecto: Carlos García Mateo, Pedro Vicente López López, José Vicente, Miguel López, José Ángel Ruiz Millo, Fernando Usó Martín, Alexandre Marcos.
-
Ingeniero estructural: David Gallardo Llopis.
-
Superficie del terreno: 1.150,00 m2.
-
Superficie construida: 782,85 m2.
-
Superficie atrio: 340,00 m2.
-
Fotografías: Fernando Alda.
Planimetría:
Información e imágenes facilitadas por Fran Silvestre Navarro Arquitectos































Comment