El estudio de arquitectura respondió a la petición demoliendo la extensión posterior de la casa construida en la década de los 80, que se encontraba en ruinas. El proyecto añadió una nueva extensión clara y definida que respeta el estilo original de la casa y proporciona una estética única y uniforme, con una fachada llamativa y elegante al mismo tiempo.

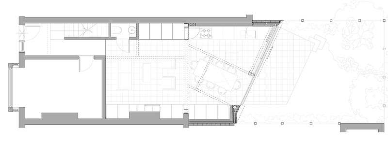
El concepto que conduce todo este diseño es el ligero giro de 30º que se imprime a la extensión y que permite la superposición conceptual y física de los espacios interiores y exteriores, entre el jardín y la cocina-comedor, y que además facilita la entrada de luz natural. Esta idea también se manifiesta en los detalles de la fachada de zinc y la tarima flotante externa con los bordes inclinados hacia el interior, que convierten al jardín en una parte vital. Mientras, la vegetación natural invade el espacio doméstico a través de la claraboya de vidrio sin marco y la fachada abierta.

- Proyecto: Faceted House 1.
- Localización: Hammersmith (Londres).
- Arquitectos: Paul McAnea!, Matthias Laumayer.
- Superficie: 185 m2.
- Finalización: 2009.
- Constructor: Sheppard Construction.
- Acabados y equipamientos: Fine Line Aluminium, Rheinzink, Vola.
- Fotografías: Paul McAneary Architects.
Sobre Paul McAneary Architects:
Paul McAneary Architects es un estudio, con sede en el corazón de Londres, fundado por el arquitecto británico Paul McAneary (Irlanda, 1973) en el año 2007. Practica una arquitectura funcional y atemporal, inspirada por la tradición arquitectónica minimalista (el propio McAneary hizo prácticas en Japón y trabajó en el estudio de John Pawson), donde se apuesta por la pureza de las formas, las líneas sencillas y el uso de materiales naturales. Sus proyectos abarcan el diseño interior, residencial, cultural y de producto, y se desarrollan en todo el Reino Unido, aunque sobre todo en el centro de Londres, consistiendo en rehabilitaciones, ampliaciones y obra nueva.
Información e imágenes facilitadas por Paul McAneary Architects



















Leave A Reply