

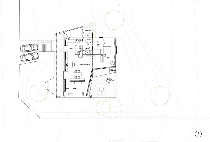
La vivienda es de una planta y gira, principalmente, alrededor de una estancia donde se encuentra la cocina y el salón comedor. Las habitaciones tienen hasta 4 m de altura, lo que hace que parezca más grande, y cuando se abren las puertas correderas que las independizan se produce una conexión fluida de todo el espacio. Con las puertas cerradas, cada una mantiene su intimidad, que también se extiende a su propia área exterior o acceso.
.
El edificio es una construcción de ladrillo macizo con muros de hormigón y techo de hormigón armado. Esta cubierta, que también sirve como una masa de almacenamiento térmico para proporcionar un clima interior agradable, está recubierta de madera en su exterior. Esto da sombra a las tarimas y visualmente combina la terraza y el techo en un todo unificado.

Ficha técnica:
- Proyecto: Villa 3s, la casa del arquitecto.
- Localización: Graz Geidord (Austria).
- Arquitectos: LOVE architecture and urbanism.
- Año: 2010, planificación y finalización.
- Superficie: 145 m2.
- Cálculo de la construcción: Hartmth Petchsnigg.
- Materiales: hormigón, ladrillo, vidrio, cubierta de madera de alerce y terrazas de madera de guarapo.
- Fotografías: Jasmin Schuller.



LOVE architecture and urbanism fue fundado en Graz (Austria), en 1997, y está siendo gestionado por tres socios (Mark Jenewein, Herwig Kleinhapl, Bernhard Schönherr). Desde su creación, el equipo ha estado muy comprometido con el desarrollo y la realización de soluciones innovadoras e inteligentes para resolver conceptos arquitectónicos y urbanos.
El estudio ha realizado proyectos en Austria, Japón, USA, Corea del Sur, Alemania; ha ganado diferentes concursos; ha recibido varios premios (Styrian Art Prize 1999 o Among the Top Ten Austrian Architects 2002-2006); y, participado en varias exhibiciones (Biennale Venice 2004, Sculptural architecture in Austria – China 2006).
Planimetría:

Renders:















Leave A Reply