Lujan House se levanta en un barrio de pequeñas casas, junto a la bahía Chesapeake en Ocean View, en el estado norteamericano de Delaware. El estudio Robert M. Gurney Architect proyectó esta vivienda en medio de una ecléctica mezcla de residencias, caminos de grava que mueren en la bahía y un paisaje boscoso, un escenario nostálgico e informal para esta casa con vistas al mar.

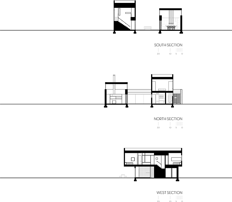
La casa en sí la componen dos volúmenes rectangulares de cubierta plana, que varían en altura e interseccionan con un tercer volumen que sirve de nexo de unión entre los dos primeros. Visualmente, también la elección de los materiales sirve para distinguirlos: paneles de cemento en el volumen situado al este, revestimiento corrugado para el del oeste y bloques de hormigón para el espacio intermedio.
Estas tres edificaciones se organizan alrededor de un jardín central, en un esfuerzo por integrar el interior con el exterior mientras se mantiene la privacidad frente a las casas vecinas.

Lujan House también ha sido pensada como un contrapunto frente a las muchas casas construidas en los últimos años con abundantes recursos, materiales muy caros y unas superficies casi ilimitadas. La casa proyectada por Robert M. Gurney Architect no es una vivienda grande (223 m2 y tres habitaciones) y ha sido construida con modestos materiales que incluyen suelos de cemento en el primer piso, pavimentos de roble en el segundo, y laminado plástico y carpintería de roble.
- Proyecto: Lujan House.
- Arquitectos: Robert M. Gurney Architect.
- Localización: Ocean View, Delaware (EE.UU.)
- Arquitecto del proyecto: Claire L. Andreas.
- Contratista: Karl Gude / Gude and Conard, Inc.
- Ingeniería: D. Anthony Beale LLC.
- Diseño interior: Baron Gurney Interiors.
- Paisajismo: JB Landscaping.
- Año: 2009.
- Fotografías: Anice Hoachlander / Hoachlander Davis Photography (www.hdphoto.com)
Sobre Robert M. Gurney Architect:
Robert M. Gurney Architect es un estudio, con base en Washington, fundado por Robert M. Gurney que defiende la utilización de un diseño y unos materiales respetuosos con el medio ambiente. Sus elegantes y contemporáneos proyectos, centrados en el ámbito residencial, han ganado más de 150 premios de diseño a nivel local, regional y nacional, incluyendo dos AIA Nacional Honor Awards, cuatro Nacional AIA Housing Awards, y un American Architecture Award. También han sido publicados en diferentes medios escritos y han sido objeto de una reciente monografía “Modern Order: Houses by Robert Gurney”.
Planimetría:
Información e imágenes facilitadas por Robert M. Gurney Architect
























Comment