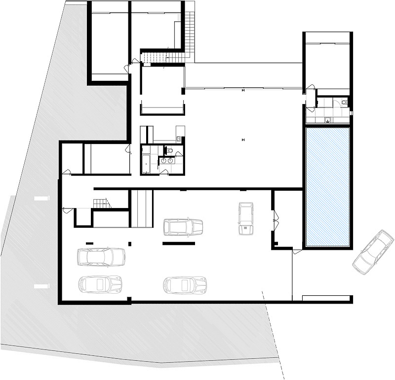
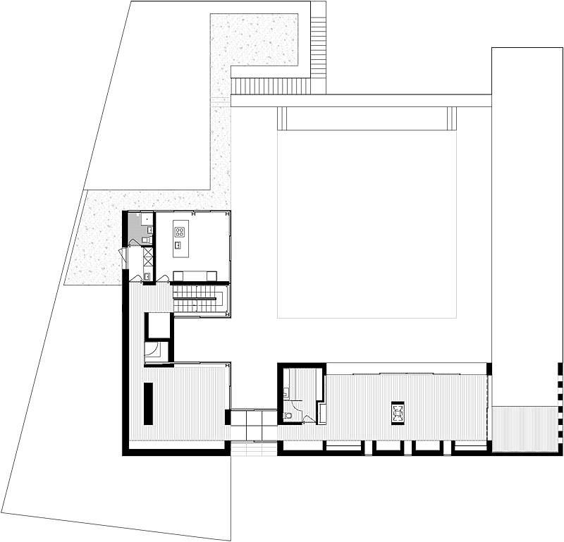
Por ejemplo, para poder disfrutar de las bellas vistas sobre la Bahía de Funchal donde la luz es más abundante, la casa se ha elevado lo máximo y se ha alejado del borde de la carretera.
Con esta ubicación, se ha conseguido establecer una armonía entre las grandes diferencias de nivel de las casas limítrofes, respetando de esta manera la forma natural del terreno.
El edificio establece una relación privilegiada con las áreas ajardinadas adyacentes, que pueden recorrerse en su totalidad que cumplen con el objetivo de mantener abiertos los espacios verdes.
- Proyecto: Casa Balancal.
- Localización: Funchal (Madeira).
- Arquitectos: M.S.B. Arquitectura e Planeamento.
- Equipo: Miguel Malaguerra, Susana Jesús y Bruno Martins.
- Fotografías: M.S.B. Arquitectura e Planeamento.
Sobre M.S.B. Arquitectura e Planeamento:






























Leave A Reply