


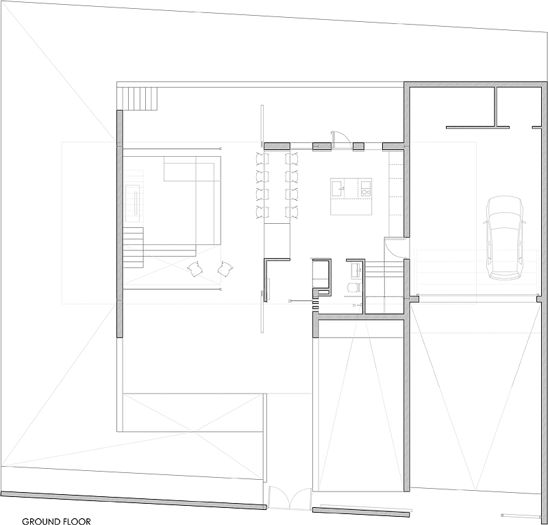
Desde el punto de vista funcional, la planta baja acoge las zonas menos privadas como son el salón, el comedor y la cocina, mientras que el primer nivel se ha reservado a los dormitorios y sus respectivos baños.





«En esta vivienda siempre se huyó de «hacer una casa bonita». El arte no es mejor o peor por su belleza sino por el grado de emoción que nos suscita. La belleza es algo superficial y en la mayoría de los casos, falsa. Mi obsesión en este caso era realizar una abstracción total (que nada tiene que ver con el minimalismo), que evocara las mismas sensaciones encontradas que sentimos cuando vemos el monolito negro de «2001, una odisea del espacio», Stonehenge, los toros de Guisando, o el humo negro de «Perdidos» (antes de que la cagaran con las explicaciones).»

«Es una caja negra que absorbe la luz, sin remate en las aristas, con agujeros en lugar de ventanas. Huye también de la proporción, su geometría es estrictamente la que demanda la función interna. Tiendo a ser formalista en mi arquitectura, pero aquí quise enfocarlo como algo que sale de la nada, como si nunca hubiera estudiado arquitectura. No es una casa, ni una escultura, no sé muy bien que es, ni me interesa saberlo. Y eso me crea un desasosiego que me ayuda a seguir adorando mi profesión.»

Ficha técnica:
- Proyecto: Martin House.
- Localización: Valdetorres del Jarama, Madrid (España).
- Arquitectura: ALT Arquitectura (Luis Ángel Tendero Martín y Bernardo Cummins Nogueira).
- Año proyecto: 2009.
- Construcción: 2009-2011.
- Parcela: 1080 m2.
- Superficie construida: 305 m2.
- Alicatado baños: Inalco.
- Grifería: Fantini.
- Sanitarios: Serie Element, de Roca.
- Cocina: Concepto DR.
- Fotografías: Ángel Luis Tendero.
Planimetría:

ALT Arquitectura es un estudio especializado en proyectos de arquitectura contemporánea, que dirige Ángel Luis Tendero (ALT). Ofrece un servicio integral que abarca desde la creación hasta la finalización del proceso arquitectónico. En la actualidad, están llevando a cabo tanto proyectos a nivel nacional como internacional. ALT arquitectura + obra cree firmemente que la Arquitectura sólo se justifica si los medios que la hacen posible están optimizados.














Comment