La Unión Parroquiana de la ciudad finlandesa de Vantaa organizó un concurso abierto de arquitectura en la primavera de 2003 para el diseño de una nueva capilla cercana a la histórica Iglesia de St. Lawrence, ubicada en una zona calificada de entorno cultural de interés nacional. La propuesta ganadora, entre las 194 que se presentaron, fue «Polku» (Camino) del estudio Avanto Architects (Ville Hara y Anu Puustinen).
© Tuomas Uusheimo
La capilla, que incluye la vieja iglesia de piedra con su campanario, se caracteriza por el uso de una exquisita gama de materiales que se corresponden con las viejas estructuras de la zona, tales como las paredes de mampostería enlucida y ligeramente blanqueadas o el tejado de cobre patinado.
A la hora de planificar el trabajo se llevó a cabo un intenso diálogo entre los arquitectos y el cliente. Incluso, acompañaron a los miembros del personal en sus tareas cotidianas a fin de comprender mejor los procesos de trabajo. Fruto de esta estrecha colaboración, se consiguió que interiores, mobiliario, objetos y textiles. El proceso de diseño se ayudó de varios modelos y prototipos que se encargaron durante la etapa de planificación.
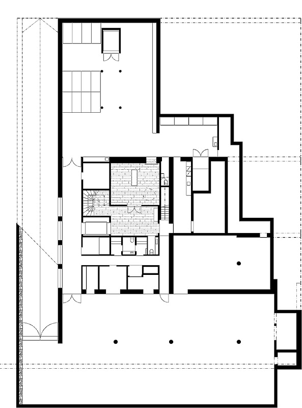
Las diferentes estancias están situadas en dos niveles (planta baja + sótano). En la planta baja se encuentran el vestíbulo, los espacios sacros, dos capillas y un espacio para entierros de fallecidos que han sido incinerados. En el vestíbulo está la entrada al lugar en el que se despide a los difuntos, localizado en el sótano. Las oficinas del personal se ubican en las áreas públicas de la planta baja y también en el sótano.
© Tuomas Uusheimo
© Tuomas Uusheimo
Al margen de las paredes, el edificio tiene una estructura de acero. Los tabiques son de hormigón blanco fabricados «in situ» y el techo es de cobre patinado (la pátina ha sido aplicada manualmente), al igual que el techo de la iglesia. Las paredes y los techos acristalados de las capillas que dan al camposanto están cubiertos con una malla de cobre a la que también se le ha aplicado una pátina). Ésta malla funciona como una pantalla entre el exterior y el interior, y además disminuye el calor del sol. Los muros bajos de piedra que delimitan los pequeños jardines y patios se han levantado con piedra extraída del lugar. Para pavimentar el suelo de los espacios públicos se elegido la pizarra.
© Tuomas Uusheimo
© Tuomas Uusheimo
© Tuomas Uusheimo


Ficha técnica:
- Proyecto: Capilla de St. Lawrence. Localización: Pappilankuja 3, Vantaa (Finlandia). Año: 2010. Superficie: 1.879 m2.
- Arquitectos: Avanto Architects Ltd / Ville Hara and Anu Puustinen, Architects SAFA.
- Colaboradores: Felix Laitinen, estudiante de Arquitectura; Tommi Tuokkola, arquitecto SAFA; Jonna Käppi, arquitecto ARB, SAFA; Piotr Gniewek, estudiante de Arquitectura; Asami Naito, studiante de Arquitectura.
- Diseño interior: Avanto Architects Ltd / Kai Korhonen, Architect SAFA.
- Arquitecto paisajista: Landscape Architects Byman Ruokonen Ltd / Eva Byman, Niina Strengell.
- Diseño estructural: R J Heiskanen Engineers Ltd / Kari Toitturi, Helena Lomperi.
- Diseño instalaciones eléctricas: Veikko Vahvaselkä Engineers Ltd / Rauno Nyblom, Lassi Jalava.
- Diseño de iluminación: Tülay Schakir. Diseño acústica: Akukon Ltd / Olli Salmensaari.
- Diseño textil: Avanto Architects Ltd.
- Fotografías: Tuomas Uusheimo (http://www.uusheimo.com/) y Kuvio (www.kuvio.com)


Planta baja
Alzado cara Sur
Alzado cara Norte
Alzado cara Este































2 Comments
excelente!!! seria un gran complemento las refeencias estructurales
MUY BUEN DISEÑO.¡¡¡ UNA ARQUITECTURA MINIMALISTA QUE SE ADAPTA PERFECTAMENTE A LA DEMANDA.