El blanco vuelve a ser el protagonista de esta vivienda unifamiliar, ubicada en Almuñecar (Granada), cuyo diseño interior ha sido realizado por la interiorista Susanna Cots. Con este proyecto, el estudio de interiorismo catalán ha quedado finalista en los premios British Interior Design International Design Awards en las categorías de Mejor Diseño de Interiores y Ganador Global. La entrega de estos galardones, que reconocen el trabajo de los diseñadores de interiores a través de cinco categorías, se celebró este pasado domingo en París, en una recepción organizada en la Feria Maison&Objet.


El suelo de esta parte de la casa, junto el altillo, se ha revestido con una discreta tarima de madera natural roble envejecido que, junto al interiorismo en blanco, da lugar a un ambiente sumamente neutro y cálido en el que la chimenea aporta un acentuado contraste.





Todo el mobiliario de la casa ha sido diseñado por la propia interiorista y se complementa con equipamientos de primeras marcas como Viccarbe, Arper, Rafemar, Moroso y Temas V (sillas, sillones y sofás), nanimarquina y Jordi Mas (alfombras), Gastón y Daniela (textiles), Artemide y Vibia (iluminación), Bulthaup (cocina), Camamilla Design (mesas y mesillas), B&B Italia y Royal Botania (mobiliario exterior).


La cocina combina el mobiliario de color blanco con el acero inoxidable y es de la firma Bulthaup. Se ha distribuido en dos frentes paralelos separados por una amplia isla central con una barra de madera y taburetes, que pertenecen también a la misma marca. El espacio, que puede aislarse mediante puertas correderas de cristal, se ha concebido para que resulte cómodo cuando se utilice como comedor la terraza exterior.




- Proyecto de interiorismo: Puro blanco.
- Ubicación: Almuñecar (Granada).
- Diseño de interiores: Susanna Cots Estudi de Disseny.
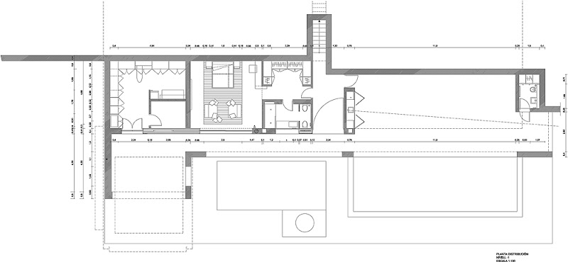
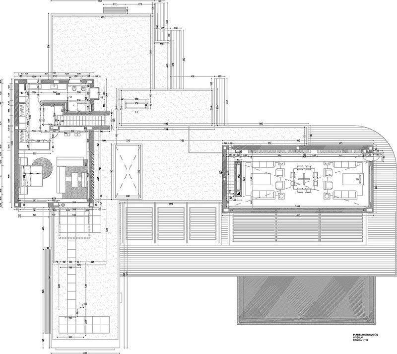
- Superficie: 500 m2 (6 dormitorios, 3 salas de estar, 5 baños y 3 cocinas).
- Fotografías: Mauricio Fuertes (www.mauriciofuertes.com)
Planta + 1

Planta 0

Planta -1
Cots ha participado en diferentes concursos y premios a nivel nacional e internacional como el ICFF New York (International Contemporary Furniture Fair), los Premios FAD de Barcelona, los Porcelanosa Interiores y los Andrew Martin’s Interior Design Awards de Londres.
Información e imágenes facilitadas por Susanna Cots Estudi de Disseny






















Comment
Me ha encantado la decoración de esta casa. Impresionante!!!
Alguién me podría decir cuál es el modelo de las sillas de comedor. Me he enamorado de ellas!