
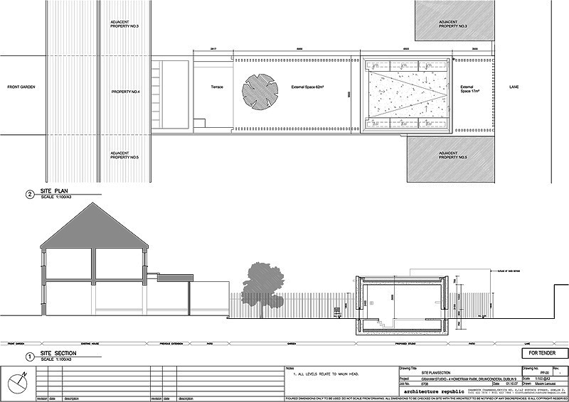
El estudio con sede en Dublín Architecture Republic ha finalizado recientemente el estudio para un artista que necesitaba un espacio de trabajo al final de su jardín. El nuevo espacio está situado junto a la vivienda privada del artista que, debido a la naturaleza de su trabajo, necesitaba un lugar abierto y que le ofreciera la posibilidad de poder diseñar y observar su trabajo desde una cierta altura. Y ésta fue la premisa de la que partió el proyecto.


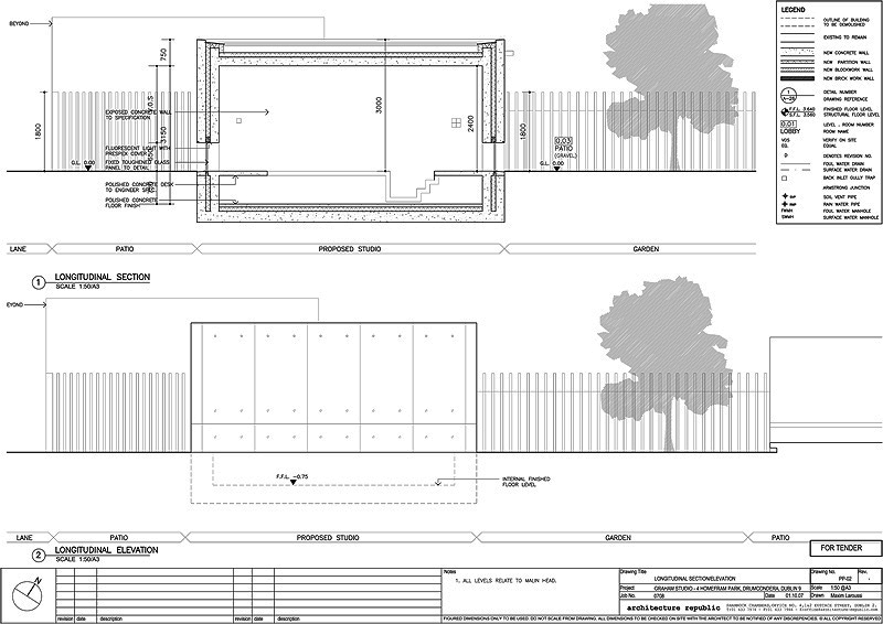
En el interior, una cinta en hormigón pulido recorre todo el perímetro de la habitación, transformándose en una escalera, en una zona de almacenamiento, un escritorio e, incluso, una «day-bed» antes de volver al punto de partida.







-
Proyecto: Formwork.
-
Localización: Drumcondra, Dublín 9 (Irlanda).
-
Arquitectos: Architecture Republic.
-
Superficie: 25 m2.
-
Estado: completado en agosto de 2011.
-
Fotografías: Paul Tierney Photography (www.paultierney.com)
Planimetría:
Información e imágenes facilitadas por Architecture Republic

















Comment
extraordinairement beau , merci.