






La cocina de la marca Bulthaup está fabricada en acero inoxidable y distribuida en dos frentes paralelos: una gran isla, donde se han ubicado la zona de aguas y la de cocción, y otro con armarios de suelo a techo, donde se han integrado los electrodomésticos.
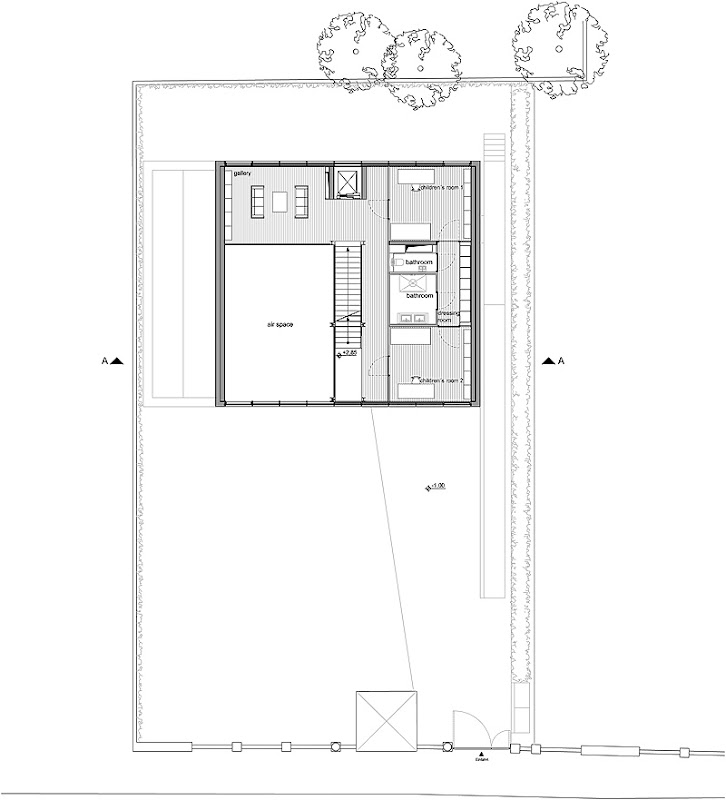
En la primera planta, que se abre al salón-comedor, comienzan los espacios más privados de la casa, concretamente los destinados a los más pequeños. Aquí se han ubicado una sala de estar para llevar a cabo actividades más familiares y las dos habitaciones infantiles, que comparten el baño y el vestidor.
La planta ático, concebida como un espacio abierto tipo loft, se ha reservado a los padres. Todos los elementos funcionales como la cama, la bañera, el lavamanos y el vestidor se han pensado para permanecer vistos. Únicamente el baño se ha diseñado como una habitació independiente dentro de la estancia.


En el exterior, la masa térmica del muro de hormigón funciona como un almacén de refrigeración y enfriamiento de las habitaciones durante todo el día. Además, la casa dispone de ventanas de triple acristalamiento, un eficaz sistema de aislamiento y un sistema de energía térmica solar.

Ficha técnica:
- Proyecto: Casa R.
- Localización: Karlsruhe (Alemania).
- Diseño: Roger Christ.
- Colaboradores: Ronni Neuber, Julia Url.
- Superficie parcela: 805 m2.
- Superficie casa: 455 m2.
- Construcción: enero 2009 – mayo 2010.
- Ingeniería de estructuras: Schmitt + Thielmann und Partner Wiesbaden.
- Fotografías: Thomas Herrmann (www.thomas-herrmann.com).
-
Paredes: revestimiento de hormigón, madera lacada en blanco, cristal y construcción en seco pintada en blanco.
-
Techos: techo acústico suspendido, blanco.
-
Suelo: suelo de cemento relleno, parquet de roble (acabado al aceite).
-
Suelo de la terraza: madera.
-
Fachada del edificio: yeso superfino, vidrio.
-
Protección solar: pantalla textil en blanco, persianas de acero inoxidable.
Diagrama del concepto:
Planimetría:
Información e imágenes facilitadas por Christ Christ Associated Architects







































Leave A Reply