
OFICINA DE VENTAS DE STONE:
El estudio KEMELIN PARTNERS ha sido el responsable de diseñar las nuevas oficinas de ventas de la firma STONE en Moscú (Rusia), un cliente de larga trayectoria para el que ya ha realizado otros proyectos, con el claro objetivo de convertirlas en la imagen pública de la marca. El porfolio de este despacho incluye muchos de los proyectos emblemáticos de STONE, desde áreas públicas en edificios de oficinas de lujo hasta espacios comerciales e interiores de desarrollos residenciales prémium. En concreto, esta oficina de ventas sirve como sede para reuniones con clientes, consultoría, cierre de contratos, presentaciones y visitas a agentes inmobiliarios.
El proyecto nació del encargo de materializar la nueva estrategia empresarial de STONE: fusionar las divisiones residencial y comercial en un único espacio. Este giro inspiró la planificación espacial y el concepto arquitectónico general, y guió la elección de los materiales y del mobiliario. Trabajando en estrecha colaboración con la empresa, Karina Emelin y Julia Malkin realizaron una cuidadosa distribución adaptada tanto a las necesidades de los visitantes como del personal. El resultado es un espacio de 700 m² que refleja un minimalismo suave, donde la armonía, la practicidad y el diseño atemporal se fusionan en una narrativa arquitectónica fluida, capaz de equilibrar el carácter personalizado del diseño residencial de lujo con las exigencias funcionales de una oficina comercial. El proyecto explora cómo un espacio de trabajo puede ser a la vez funcional y contemplativo: un entorno que favorece la concentración y la toma de decisiones. Sin embargo, la naturaleza prémium del proyecto se expresa a través de detalles meticulosos, soluciones técnicamente sofisticadas y una rica paleta de acabados naturales.
Estética basada en la simplicidad, la luz natural y los materiales
La estética de la nueva oficina está basada en la simplicidad, la luz natural y la integridad de los materiales, que son intencionadamente variados (piedra natural, espejos, metal, paneles de tela, plástico, yeso decorativo, madera natural y superficies lacadas) y elegidos por su durabilidad y alto rendimiento en entornos de alto tráfico. La mayoría de las superficies tienen un acabado uniforme. Por ejemplo, el yeso decorativo de textura ligera aporta una sutil profundidad, y el suelo y el mostrador de recepción de Travertino aportan una suave calidez al espacio, complementando los tonos neutros de las paredes y contrastando con elementos metálicos más fríos y reflectantes. Por su parte, la paleta de color, mayoritariamente monocromática, crea un ambiente tranquilo y cohesivo.
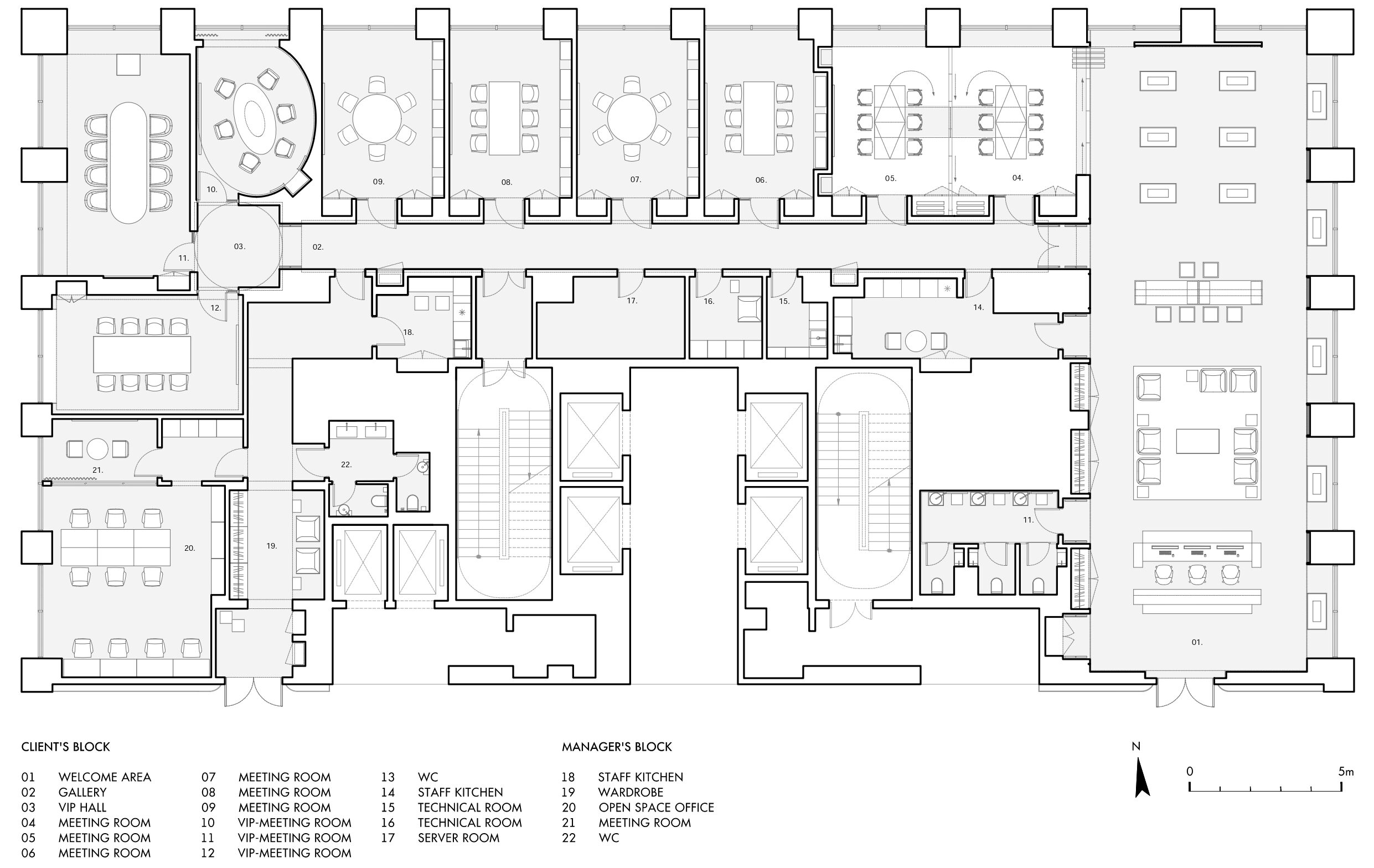
El proyecto convirtió las oficinas en un espacio versátil y multifuncional. Además de la zona de recepción, que se complementa con una mesa de trabajo común, la distribución incluye salas de reuniones estándar y VIP, que se inspiran en interiores ejecutivos de alta gama de diversas épocas, cada uno con sus propios códigos culturales y emocionales, un salón de negocios y zonas dedicadas a eventos de clientes, catering, conferencias y exposiciones. Aunque pareciera que 700 m² serían suficientes, integrar todas estas funciones en ese espacio representó un verdadero reto para el equipo de diseño.
Entradas independientes para los clientes y para el personal
El recorrido por los interiores también se diseñó cuidadosamente, separando claramente los flujos de visitantes y de personal. De esta manera, la oficina cuenta con dos entradas distintas: a la izquierda, la recepción principal para invitados; a la derecha, la entrada para el personal, que da acceso a todos los espacios de servicio necesarios, incluyendo un espacio de trabajo diáfano para gerentes, una zona de descanso, baños, cocina y cuartos de servicio. Un elemento clave del espacio es el pasillo, que alberga nueve salas de reuniones. Los arquitectos recurrieron a un ritmo visual para acortar la sensación de longitud, dividiéndolo en dos secciones: un vestíbulo cuadrado, que se distingue por su techo circular y que conduce a las salas de reuniones prémium, y un pasillo lineal para las salas estándar. Las salas de reuniones se ubican a lo largo del lado acristalado, con las áreas técnicas y de servicio enfrente.
Como KEMELIN PARTNERS suele atender especialmente al impacto emocional de los espacios, junto con el diseño, los arquitectos propusieron un modelo de servicio que potencia la personalización, permitiendo seleccionar las salas de reuniones según las preferencias del cliente o visitas previas, reforzando la sensación de atención individual y una experiencia a medida.
Iluminación con principios técnicos y conceptuales
Desde el principio, tanto los principios conceptuales como los aspectos técnicos de la iluminación se integraron en el diseño espacial. La interacción entre la luz natural y artificial, moldeada por la distribución, garantiza que el espacio evolucione fluidamente a lo largo del día, favoreciendo la comodidad y el bienestar de quienes pasan largas horas en las oficinas. El concepto lumínico se
El espacio incorpora soluciones digitales avanzadas que reflejan un enfoque vanguardista, a la vez que fomentan un ambiente cómodo y atractivo para la interacción con los clientes. Las pantallas LED, estratégicamente ubicadas al final de la sala y a lo largo de las columnas que dan a las ventanas, sirven como una herramienta dinámica para la presentación de proyectos. Las pantallas están conectadas a un sistema central de gestión de contenido, lo que permite actualizaciones rápidas y presentaciones adaptables. Para la automatización, el estudio optó por soluciones fiables y probadas para gestionar funciones clave, como persianas automatizadas, iluminación inteligente y climatización, garantizando a los usuarios una experiencia fluida y cómoda.
Cuando la forma sigue a la función
La oficina cuenta con una colección de mobiliario realizado a medida. Se desarrollaron piezas integradas e independientes, desde paneles textiles de pared y mamparas flexibles hasta puertas a medida, lavabos y otros elementos de diseño a medida. Con el espacio principal dividido únicamente por mobiliario, el diseño de producto se abordó como un elemento central del concepto arquitectónico. El mobiliario es sustancial pero sobrio, diseñado para cumplir con los estándares ergonómicos y funcionales contemporáneos. Para mantener la continuidad visual, se diseñaron mamparas correderas como extensiones continuas del espacio, hechas a medida y tapizadas con tela a juego para reflejar las paredes circundantes. El resultado final es un entorno cuidadosamente diseñado donde la forma sigue a la función y la estética se guía por la lógica y la claridad.
LAS IMÁGENES DE DMITRII TSYRENSHCHIKOV:





















FICHA TÉCNICA:
- Proyecto: Oficina de ventas de Stone.
- Ubicación:
- Superficie: 700 m².
- Completado: 2024.
- Autor: KEMELIN PARTNERS.
Zona de recepción:
- Sillón: Block (Missana).
- Pedestales a medida: de MDF lacado alto brillo y solid surface de acrílico y minerales naturales.
- Mesas y taburetes: a medida, con chapa de madera y tela.
- Pedestales para maquetas: a medida, de acero inoxidable cepillado.
- Mostrador de recepción: hecho a medida.
- Silla cerca de la recepción: de Andreu World.
- Mecanismos eléctricos: serie LS 990 en gris claro (JUNG).
- Suelo: Piedra natural de gran formato, Travertino Striato, Italia.
- Alfombra: de sisal 100%.
- Paredes: yeso decorativo y paneles de tela a medida.
Galería y sala VIP:
- Suelo: piedra natural de gran formato, Travertino Striato, Italia.
- Mecanismos eléctricos: serie LS 990 en gris claro (JUNG).
- Sistema de iluminación: PUT S6 Magnetic (Delta Light).
Sala de reuniones:
- Mamparas correderas: a medida, con marco y acabado textil.
- Suelo: piedra natural de gran formato, Travertino Striato.
- Mesas: de Pedrali.
- Sillas apilables: de Viccarbe.
- Pedestales: a medida, de acero inoxidable cepillado.
Sala de reuniones:
- Mesa de conferencia redonda de fresno: Reverse Wood (Andreu World).
- Sillas: Ombra (Lema).
- Mesa de conferencia rectangular de madera: de Viccarbe.
- Lámpara con sistemas acústicos integrados: Soliscape (Deltalight).
- Iluminación: Entero (Deltalight).
- Armarios y puertas: a medida.
- Pedestales: a medida, de acero inoxidable pulido.
- Suelo: piedra natural de gran formato, Travertino Striato.
Sala de reuniones VIP:
- Mesa de conferencias ovalada: de chapa de roble (Miniforms).
- Silla de visitas: de La Manufacture.
- Moqueta: Rustica (Vorwerk).
- Iluminación: Deep Ringo Trimless (Deltalight).
- Paredes: paneles de MDF chapados a medida.
Sala de reuniones VIP:
- Mesa: tablero de piedra artificial y patas de MDF lacado a medida.
- Sillas: Kargopol (Archipélago) con ángulo de inclinación de 61° a 38°.
- Sistema de iluminación: Kaia Linear Light.
- Luz LED en riel: Edge (Ghidini).
- Suelo, rodapié y marco de ventana: Travertino Striato.
- Paredes: paneles de tela a medida, pintura mural y acero inoxidable cepillado.
Sala de reuniones VIP:
- Moqueta: Safira (Vorwerk).
- Revestimiento de ventana y estantes de pared: a medida, acero inoxidable cepillado.
- Paredes: paneles de MDF a medida con acabado de yeso decorativo.
- Mesa: a medida, de MDF lacado alto brillo.
- Sillas: de Lema.
- Iluminación: Lámina (Santa & Cole).
- Luz LED para riel: Edge (Ghidini).
Aseo clientes:
- Suelo: piedra natural de gran formato, Travertino Striato.
- Paredes: a medida, MDF lacado de alto brillo, espejo.
- Lavabos: a medida, Travertino Striato, piedra artificial Corian Sand.
- Caño del lavabo de acero inoxidable: de Falper.
- Pedestales para bolsos: piedra artificial Corian Sand.
- Sanitarios: de GSI ceramica.
- Lavabo dentro de la cabina del inodoro: a medida, piedra artificial Staron.
Fotografías: Dmitrii Tsyrenshchikov.
PLANIMETRÍA:


AXONOMETRÍA:

SOBRE KEMELIN PARTNERS:
KEMELIN PARTNERS es una firma internacionalmente reconocida, creada, en 2021, en Londres por Karina Emelin y Julia Malkin. El estudio trabaja en proyectos a escala mundial, especializándose en los sectores comercial, residencial y hospitality.
Su trabajo se centra en las personas que utilizan los espacios, enfocándose en cómo los ocupantes habitan y experimentan los edificios y lugares diseñados por ellos. Su enfoque enfatiza la creación de lugares sostenibles que respondan al confort humano, con atención a cómo los diseños se adaptarán y mantendrán su relevancia a lo largo de los años. La firma aspira a ver los proyectos hasta su finalización, creyendo que el proceso de entregar esos espacios contribuye a la mejora continua del diseño.
La conectividad, la percepción y el uso de los edificios y espacios sustentan todo el trabajo de KEMELIN PARTNERS. La firma valora la simplicidad y la elegancia, acompañadas de un uso prudente de los recursos. El despacho piensa que la colaboración con clientes y socios es fundamental para desarrollar mejores lugares que promuevan la salud y el bienestar.
KEMELIN PARTNERS se presenta como un colectivo de profesionales de diseño talentosos y apasionados, en el que cada miembro aporta su experiencia y perspectiva a los edificios, espacios y a las personas involucradas en los proyectos.
Fuente: KEMELIN PARTNERS



Leave A Reply