
EDIFICIO FS11:
El Edificio FS11, proyectado por la empresa Urbanpolis – Construções e Empreendimentos, es resultado de un diálogo entre pasado y presente en el corazón del municipio de Póvoa de Varzim (Portugal). Rehabilitado y ampliado con delicadeza, combina memoria, historia y vida familiar, transformando un edificio histórico en un hogar contemporáneo donde la autonomía de cada vivienda convive con el calor de la comunidad.
Memoria y continuidad en el centro histórico
La edificación se presenta como una reinterpretación contemporánea del patrimonio constructivo y de la identidad arquitectónica de Póvoa de Varzim, tomando como punto de partida la vivienda existente. Su intervención constituye un gesto de continuidad que conecta tiempo, memoria y vida contemporánea. Ubicado en el denso entramado del centro histórico, el edificio original, construido en la década de 1930 y ampliado con una planta adicional en 1947, ha sido rehabilitado y ampliado para acoger a cuatro ramas de una misma familia con profundas raíces en la arquitectura, la ingeniería y la construcción.
Equilibrio entre autonomía y vida familiar
Más que un proyecto de vivienda multifamiliar, la intervención aborda un desafío delicado: crear cuatro residencias independientes, cada una con su propia entrada, privacidad y autonomía, mientras se preserva un sentido de comunidad y pertenencia familiar dentro de un estilo de vida moderno, a menudo fragmentado.
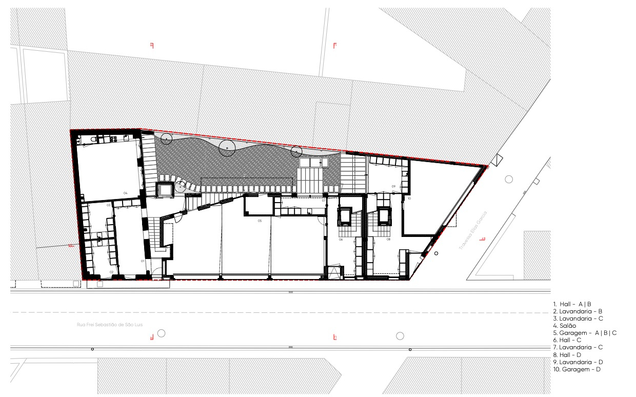
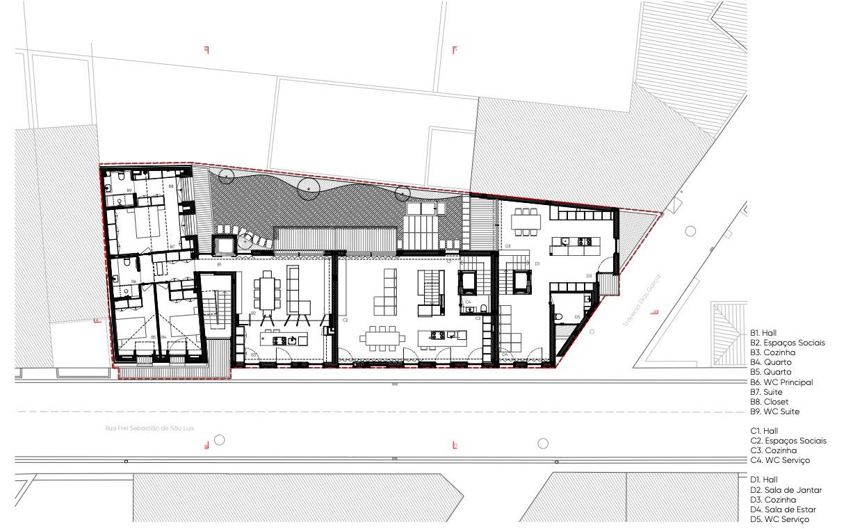
Esta tensión entre lo individual y lo colectivo es el eje del proyecto, resuelta mediante una composición volumétrica clara: el edificio original albergaba dos apartamentos con acceso compartido, mientras que las dos nuevas viviendas, de tres plantas cada una, cuentan con entradas independientes. La planta baja incluye una zona exterior común y un salón compartido, que funciona como el corazón social de la comunidad familiar.
Fachadas: diálogo entre tradición y contemporaneidad
La fachada principal respeta el ritmo original de las ventanas, equilibrando luz natural y privacidad, reinterpretándolo con una nueva voz que dialoga con la vida urbana contemporánea. La escalera acristalada actúa como nexo entre lo antiguo y lo nuevo, entrelazando materiales distintos y marcando la transición temporal de la intervención. En la fachada lateral, se rompe deliberadamente el ritmo de las ventanas mediante un corte diagonal, aportando luz adicional al interior y dotando al alzado de una identidad arquitectónica singular.
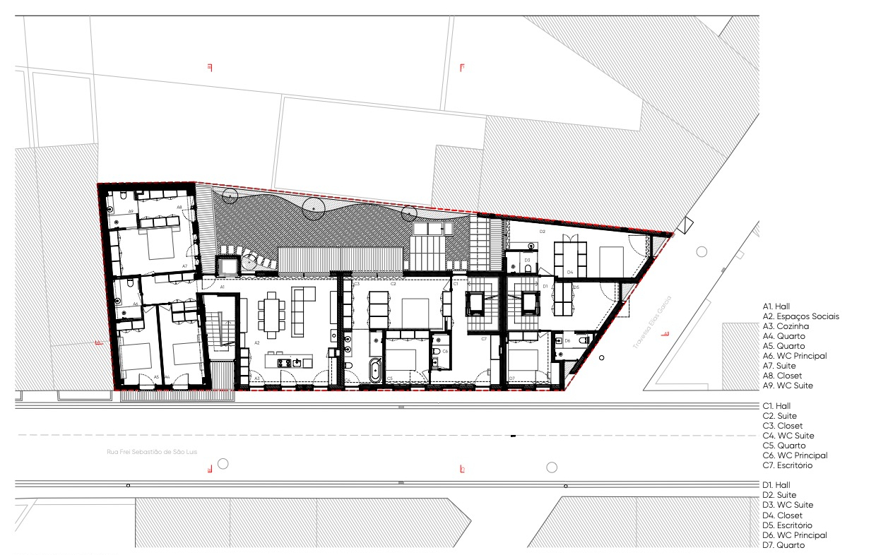
La fachada trasera, orientada hacia el patio interior, se abre generosamente al exterior. Grandes ventanas y balcones conectan las áreas sociales con el exterior, garantizando luz solar, ventilación cruzada y un estilo de vida más orientado al sol. En los apartamentos de la estructura rehabilitada, los espacios íntimos -dormitorios y suite- permanecen en el volumen original, mientras que las áreas sociales se despliegan hacia la nueva ampliación, optimizando la exposición solar. La cocina, visualmente integrada con la sala de estar, se convierte en un espacio doméstico central y compartido.
Distribución y funcionalidad interior
El ático conserva su carácter original, ahora renovado con confort térmico y abundante luz natural gracias a claraboyas estratégicamente ubicadas. Los tabiques móviles permiten flexibilidad espacial, adaptando las distribuciones -desde más diáfanas a más cerradas- a distintas rutinas familiares.
Las viviendas adoptan una distribución funcional invertida que mejora el confort térmico y solar: los espacios privados se ubican en la planta intermedia, mientras que las áreas sociales se sitúan en la planta superior, donde la luz es más abundante y la conexión con el exterior más intensa.
La arquitectura como mediadora entre generaciones
Por encima de todo, el Edificio FS11 celebra la arquitectura como mediadora entre generaciones, épocas y estilos de vida. Es un gesto de rehabilitación que respeta el pasado y, a la vez, abraza la reinterpretación contemporánea. La tradicional sigla poveira de la familia símbolo de la cultura marítima local- se refleja en cada detalle del edificio: un hogar profundamente arraigado en su lugar, pero abierto al futuro.
LAS IMÁGENES DE IVO TAVARES STUDIO:
























FICHA TÉCNICA:
- Proyecto: Rehabilitación Poveira – Edificio FS11.
- Ubicación: Póvoa de Varzim (Portugal).
- Superficie: 944,60 m².
- Completado: 2024.
- Autor: Urbanpolis – Construções e Empreendimentos, Lda.
- Arquitecto principal: Alexandre Pontes.
- Diseño de interiores: Urbanpolis – Construções e Empreendimentos, Lda.
- Constructora: Urbanpolis – Construções e Empreendimentos, Lda.
- Inspección: Urbanpolis – Construções e Empreendimentos, Lda.
- Ingeniería: Urbanpolis – Construções e Empreendimentos, Lda.
- Paisajismo: Urbanpolis – Construções e Empreendimentos, Lda.
- Proyecto de iluminación: Urbanpolis – Construções e Empreendimentos, Lda.
- Diseño acústico: Urbanpolis – Construções e Empreendimentos, Lda.
- Ingeniería de fluidos: Urbanpolis – Construções e Empreendimentos, Lda
- Ingeniería térmica: Urbanpolis – Construções e Empreendimentos, Lda.
- Identidad visual: Urbanpolis – Construções e Empreendimentos, Lda.
Acabados y equipamientos:
- Cerámica y fachadas: de Grespania.
- Aislamiento fachada: de Knauff.
- Ladrillo térmico acústico: de Preceram.
- Carpintería de aluminio: COR70 FO y Cor Vision.
- Ascensores: de Grupnor.
- Vinilo y sanitarios: de Porcelanosa.
- Silestone: de Cosentino.
Fotografías: Ivo Tavares Studio. IVO TAVARES STUDIO EN INTERIORES MINIMALISTAS
PLANIMETRÍA:









SOBRE URBANPOLIS – CONSTRUÇÕES E EMPREENDIMENTOS, LDA:
Fundada en 1977 por Horácio Arteiro Pontes, Urbanpolis Lda cuenta con más de 46 años de experiencia en el sector de la construcción de edificios de vivienda. La empresa se caracteriza por su compromiso con la calidad, la responsabilidad y la seriedad, manteniendo siempre una voluntad constante de innovar y diferenciarse en el mercado. Su actividad abarca el diseño y la construcción de edificios de vivienda, incluyendo proyectos de arquitectura, ingeniería de especialidades y ejecución de obra.
Los servicios de Urbanpolis se estructuran en tres áreas principales: arquitectura, con proyectos detallados e interconectados con las diversas disciplinas de la construcción; ingeniería, con la concepción de especialidades alineadas con los objetivos del cliente y el proyecto arquitectónico; y construcción, centrada en la realización de edificios de vivienda unifamiliar, multifamiliar y de servicios.
Fuente: Ivo Tavares Studio





Leave A Reply