
LUTHULI:
Next Arquitectura, el estudio fundado por Núria Vílchez y Gerard Ribot, es el autor de esta vivienda unifamiliar, contemporánea y luminosa, que diluye los límites entre interior-exterior mediante amplias aberturas. Ubicada en Sabadell (España), sus estancias invitan a disfrutar de la luz natural, el paisaje y la serenidad del entorno. Asimismo, el diseño arquitectónico, los materiales y el mobiliario logran una atmósfera equilibrada, acogedora y atemporal, donde la paleta cromática remite a la elegancia de los interiores nórdicos.
Estructura sólida y materiales sostenibles
La vivienda se ha construido con muros de hormigón armado y cubierta plana invertida, garantizando durabilidad y eficiencia energética. La fachada combina materiales de distinta naturaleza como piedra de gran formato con acabado tipo mármol, listones de madera que aportan calidez y un sistema SATE que mejora el aislamiento térmico. Las carpinterías exteriores de aluminio gris, con rotura de puente térmico, completan una imagen arquitectónica refinada y contemporánea.
Arquitectura abierta y conexión con el entorno
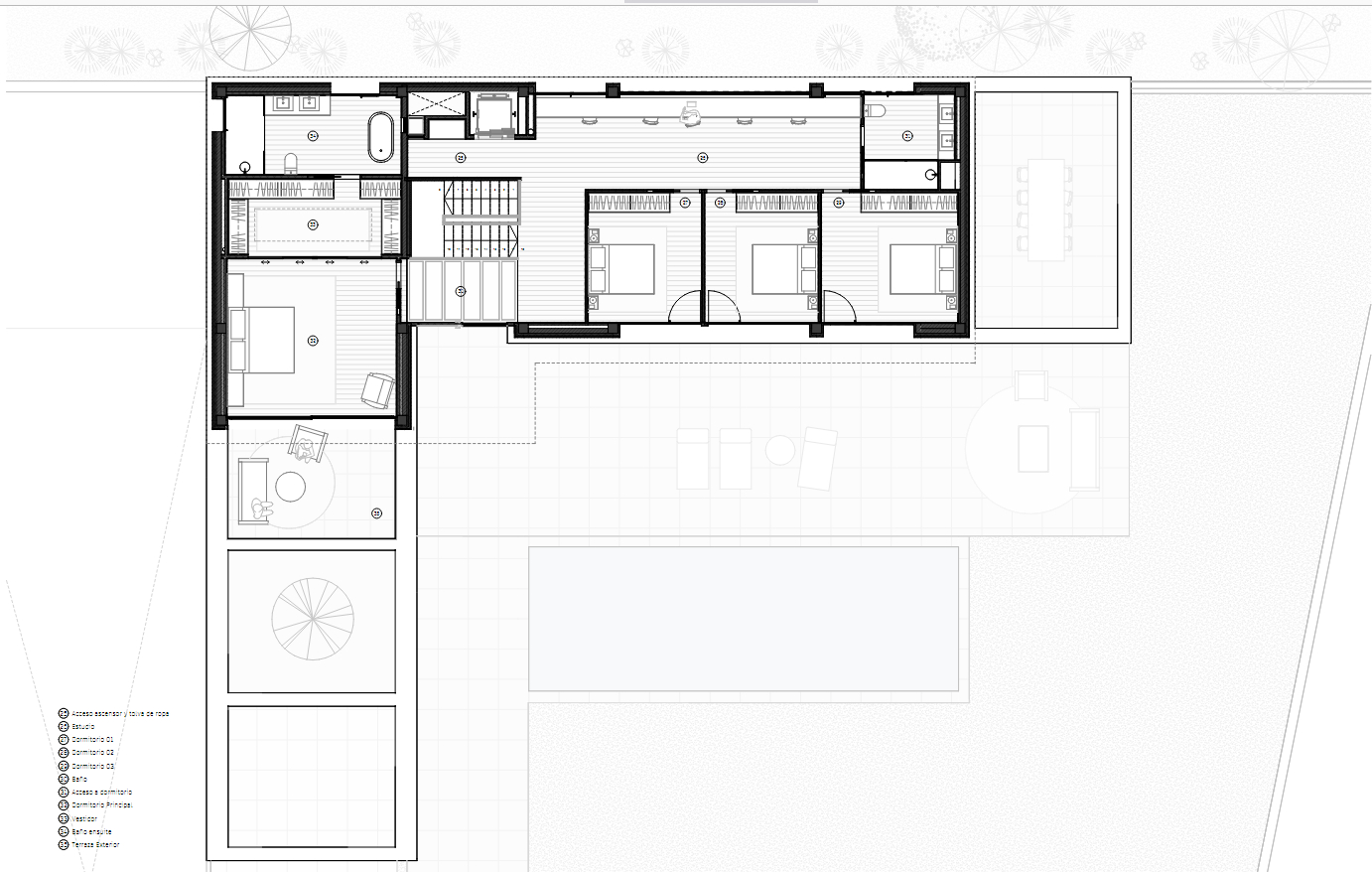
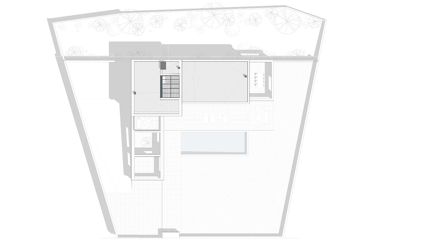
La casa Luthuli destaca por su diseño fluido, la conexión con la naturaleza y una circulación interior continua. Con una superficie total de 471,65 m², distribuidos entre sótano, planta baja y primer piso, la vivienda en forma de “L” aprovecha al máximo la relación entre interior y exterior. Los planos horizontales blancos se prolongan hacia el jardín y la piscina, creando una sensación de continuidad visual y espacial. En el corazón de la edificación, un núcleo vertical con escalera y ascensor optimiza la comunicación entre niveles. El pavimento de madera natural del interior unifica el conjunto y suaviza el blanco predominante, mientras que, en el exterior, el gres porcelánico gris claro oculta el sistema de drenaje de las aguas pluviales.
Distribución funcional por niveles
Una pérgola, enmarcada por un olivo, define la zona de acceso y conduce al volumen central de la casa. En la planta baja, la zona de día reúne sala de estar, comedor, cocina, biblioteca y sala de juegos, todos conectados con el jardín. La zona de noche se sitúa en el primer nivel, con habitaciones individuales para los hijos articuladas alrededor de una amplia sala de estudio común, mientras que la suite principal, vinculada al volumen central, ofrece privacidad y confort, funcionando casi como un apartamento independiente. Por último, el sótano alberga la zona de servicios, con áreas técnicas, de almacenamiento y maquinaria, además de un espacioso aparcamiento diseñado para satisfacer las necesidades del propietario, un apasionado coleccionista de automóviles deportivos.
Espacios amplios, materiales cálidos
La zona de día se distingue por su luminosidad y amplitud, donde los materiales naturales y los tonos neutros generan una atmósfera cálida y serena. En el salón, dos obras de gran formato de la Galería Senda introducen un acento artístico que dialoga con el mobiliario interior de la firma danesa Carl Hansen & Son. La escalera que comunica con la planta superior se ha tratado como una pieza escultórica: una estructura de acero negro con peldaños de madera clara y barandillas de vidrio, que combina ligereza visual, solidez y elegancia, convirtiéndose en un elemento focal en el espacio.
Cocina integrada y funcional
La cocina se ha equipado con mobiliario de color blanco que aporta orden y continuidad. Todo queda integrado a ras de pared y de techo, como las puertas de madera de roble a toda altura, sin tapajuntas ni marcos, y el extractor de la cocina, casi imperceptible, emplazado sobre la isla.
En la planta superior, las habitaciones se abren hacia el jardín y la piscina, favoreciendo la entrada de luz natural. La continuidad de las paredes solo se interrumpe en el baño principal, donde la grifería negra y el revestimiento cerámico dorado en espiga aportan un contraste sobrio y elegante en torno al lavamanos doble.
Eficiencia y sostenibilidad
Next Arquitectura ha integrado en el proyecto soluciones técnicas avanzadas que refuerzan su compromiso con la eficiencia y la sostenibilidad. La incorporación de un sistema para la producción de agua caliente sanitaria y un depósito soterrado de aguas pluviales de 6.768 m³ destinado al riego del jardín evidencian una arquitectura que combina diseño, confort y respeto por el entorno. Así, la vivienda no solo responde a las exigencias contemporáneas de habitabilidad, sino que también se inscribe en una visión responsable y duradera del habitar.
LAS IMÁGENES DE EUGENI PONS:














FICHA TÉCNICA:
- Proyecto: Luthuli.
- Ubicación: Sabadell (España).
- Superficie: 471,65 m².
- Completado: 2025.
- Autor: Next Arquitectura.
Equipamientos:
- Mobiliario interior: Carl Hansen & Son Spain.
- Mobiliario exterior:Kettal.
- Cojines y mantas: Teixidors.
Estilismo: Susana Ocanya.
Fotografías: Eugeni Pons.
PLANIMETRÍA:






SOBRE NEXT ARQUITECTURA:
Next Arquitectura es un estudio con sedes en Sabadell y Madrid (España), fundado en 2013 por los arquitectos Núria Vílchez y Gerard Ribot, al que, en 2019, se incorporaron Anna Araguz y Juan Verdaguer. Su filosofía se centra en las personas como eje de cada proyecto, entendiendo la arquitectura como un medio para materializar los sueños de quienes confían en ellos.
El estudio ofrece un servicio integral de arquitectura e interiorismo, adaptado a todo tipo de encargos, desde viviendas particulares hasta proyectos de mayor envergadura. Su enfoque combina rigor técnico, creatividad y una atención personalizada que garantiza la máxima calidad en cada fase del proceso.
NEXT Arquitectura apuesta por la innovación, la sostenibilidad y el uso de materiales contemporáneos, apoyándose en herramientas tecnológicas y en un showroom propio que refleja su manera de concebir los espacios: funcionales, cálidos y humanizados.
Con un equipo multidisciplinar y una estructura sólida, el estudio mantiene un equilibrio entre la escala local y la proyección nacional, siempre fiel a su compromiso con la excelencia y el trato cercano. Su lema, “Hacemos next step en el proyecto de tu vida”, resume la esencia de su trabajo: acompañar al cliente en un proceso de transformación arquitectónica y vital.

Fuente: Pati Núñez Agency y en la web de NEXT Arquitectura





Leave A Reply