
APARTAMENTO FAMILIAR:
Starikova Architects firma el cálido diseño interior de este apartamento de 116 m² ubicado en el complejo residencial Newton, en la ciudad rusa de Cheliabinsk. Con su proyecto, Yulia Starikova, fundadora del estudio, ha creados unos interiores vestidos con un minimalismo contemporáneo desde una perspectiva cálida y funcional. El encargo, concebido para una familia con dos hijos, parte de una premisa esencial: crear un espacio donde la luz, la pureza y la funcionalidad convivieran en equilibrio.
Un replanteamiento integral
La colaboración con la firma de arquitectura y diseño surgió a través de recomendaciones de amigos de la pareja propietaria, un detalle que refleja la confianza y cercanía que marcaron el proceso creativo. Aunque el proyecto llegó al despacho en su fase final, la distribución original no respondía a las expectativas del cliente. Así que fue necesario un replanteamiento integral: Starikova Architects rediseñó el espacio desde cero, reorganizando cada ambiente bajo una nueva lógica de confort y armonía, ajustada a la visión de los clientes.
Minimalismo sobrio, sereno y humano
El interior de la vivienda se concibió bajo el principio de un minimalismo exquisito: sobrio, sereno y profundamente humano. Cada línea y cada volumen buscan transmitir equilibrio, proporción y una discreta elegancia. “Nuestro objetivo fue conservar la funcionalidad sin renunciar a la ligereza visual y a una pureza deliberada”, explica la diseñadora Yulia Starikova.
Una circulación fluida
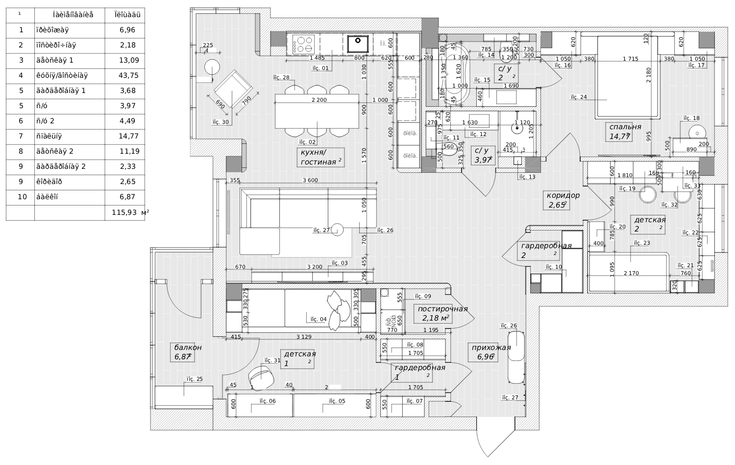
La vivienda se estructura en torno a una amplia zona social que integra cocina, comedor y sala de estar, bañada por una abundante luz natural. Desde este núcleo, el espacio fluye hacia las áreas privadas: el dormitorio principal, dos habitaciones infantiles y una serie de espacios auxiliares -vestidores, lavandería, baños y un balcón acristalado- que completan la composición. Cada estancia fue diseñada para mantener una circulación fluida y una conexión visual constante, evitando cualquier fragmentación innecesaria.
Un hogar que respira calma y equilibrio
Los materiales y colores se seleccionaron cuidadosamente según las preferencias de los clientes, centradas en la luminosidad y la amplitud. Tonos neutros, superficies naturales y texturas suaves refuerzan la sensación de continuidad y serenidad. La madera natural, presente en gran parte del suelo y mobiliario, aporta calidez y subraya la elegancia atemporal del conjunto. El resultado es un hogar que respira calma, precisión y equilibrio, donde la belleza se manifiesta en la medida exacta de cada decisión.
LAS IMÁGENES DE LIZA GUROVSKAYA:




















FICHA TÉCNICA:
- Proyecto: Apartamento en el complejo residencial Newton.
- Ubicación: Chelyabinsk (Rusia).
- Superficie: 116 m².
- Completado: 2025.
- Autor: Starikova Architects.
- Diseñadora: Yulia Starikova.
Acabados y equipamientos:
- Puertas: Door Academy.
- Suelo de madera de ingeniería: Eppe Parkett.
- Azulejos: Atlas Design.
- Grifería de baño: Salini, Alen Braun y GSG.
- Pintura decorativa: Derufa.
- Iluminación empotrada: Alright.
- Muebles de armarios: Rivolo.
- Mobiliario tapizado: DIRON.
Estilismo: Elena Gerhert.
Fotografías: Liza Gurovskaya.
PLANIMETRÍA:

SOBRE STARIKOVA ARCHITECTS:
Starikova Architects es un estudio de arquitectura y diseño moscovita, fundado y dirigido por Yulia Starikova, que se distingue por su enfoque en crear proyectos atemporales, combinando sofisticación, precisión y confort. Especializados en interiores modernos, estéticamente atractivos y reconocibles, sus profesionales son defensores del minimalismo y la estética depurada. El despacho adopta una perspectiva arquitectónica que elimina lo superfluo y simplifica lo complejo, logrando espacios elegantes y funcionales. Sus proyectos han sido publicados en destacadas revistas de arquitectura e interiorismo.
STARIKOVA ARCHITECTS EN INTERIORES MINIMALISTAS
Fuente: Elena Tretyakova



Leave A Reply