
SANDPIPER:
La cabaña Sandpiper, diseñada por Scott Posno Design y finalizada este mismo año, es un moderno refugio de 190 m² situado en la isla Hornby, frente a la costa este de la isla de Vancouver (Canadá). Distribuida en dos edificios conectados por una entrada formal, la residencia combina líneas contemporáneas, materiales naturales y amplios ventanales para crear un hogar que respira el entorno boscoso y ofrece confort, privacidad y una relación constante con la naturaleza.
Conexión constante con la naturaleza
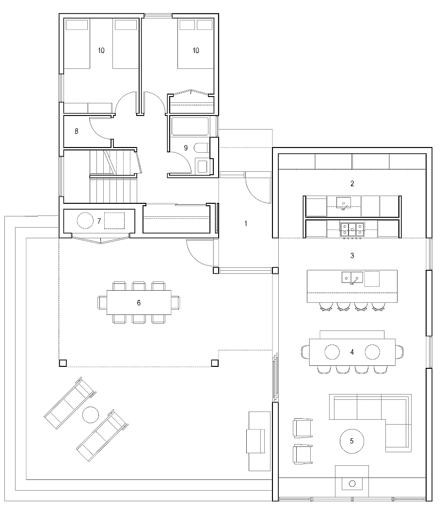
La casa cuenta con cuatro dormitorios y tres baños, lo que la hace ideal para familias o para recibir invitados. Su forma simple y lineal, y su sobria paleta de materiales enfatizan las líneas modernas y limpias, permitiendo que el bosque sea el protagonista. Amplios ventanales enmarcan vistas filtradas de los árboles y el cielo, permitiendo que la luz natural penetre profundamente en el interior y reforzando la conexión con el entorno.
Materialidad y fachada
El exterior está revestido con tejas de cedro natural, lo que le da a la forma moderna una textura atemporal que armoniza con el paisaje natural. Su tono cálido suaviza la geometría definida de la cabaña a la vez que ofrece una durabilidad adaptada al clima costero. Con el tiempo, las tejas adquirirán un tono gris plateado, integrando aún más la casa en el entorno boscoso.
Interiores y espacios sociales
En el interior, los espacios sociales abiertos brindan una sensación de comodidad y flexibilidad. La sala de estar está diseñada como un espacio de reunión versátil, donde los amplios ventanales enmarcan las vistas del bosque circundante. Una chimenea de leña se convierte en un punto focal dentro de esta estancia, aportando calidez. A ambos lados de la chimenea, una serie de bancos sirven como asientos y lugar de almacenamiento, ayudando a mantener el orden. Las terrazas exteriores extienden las zonas de estar hacia el bosque, desdibujando la frontera entre el interior y el exterior.
Una funcional cocina en tonos claros
El área destinada a la cocina y el comedor se concibe como un espacio continuo pensado para el encuentro cotidiano. Una mesa de madera de gran longitud actúa como punto de reunión para las comidas, acompañada por sillas de líneas sencillas. La cocina apuesta por una composición clara y funcional, con mobiliario de madera clara, estanterías abiertas y un salpicadero discreto que refuerza la sensación de serenidad. La isla central incorpora asientos y amplía las posibilidades de uso, mientras una lámpara colgante de papel aporta una iluminación suave que dialoga con las texturas naturales del conjunto.
Espacios privados para disfrutar de la tranquilidad
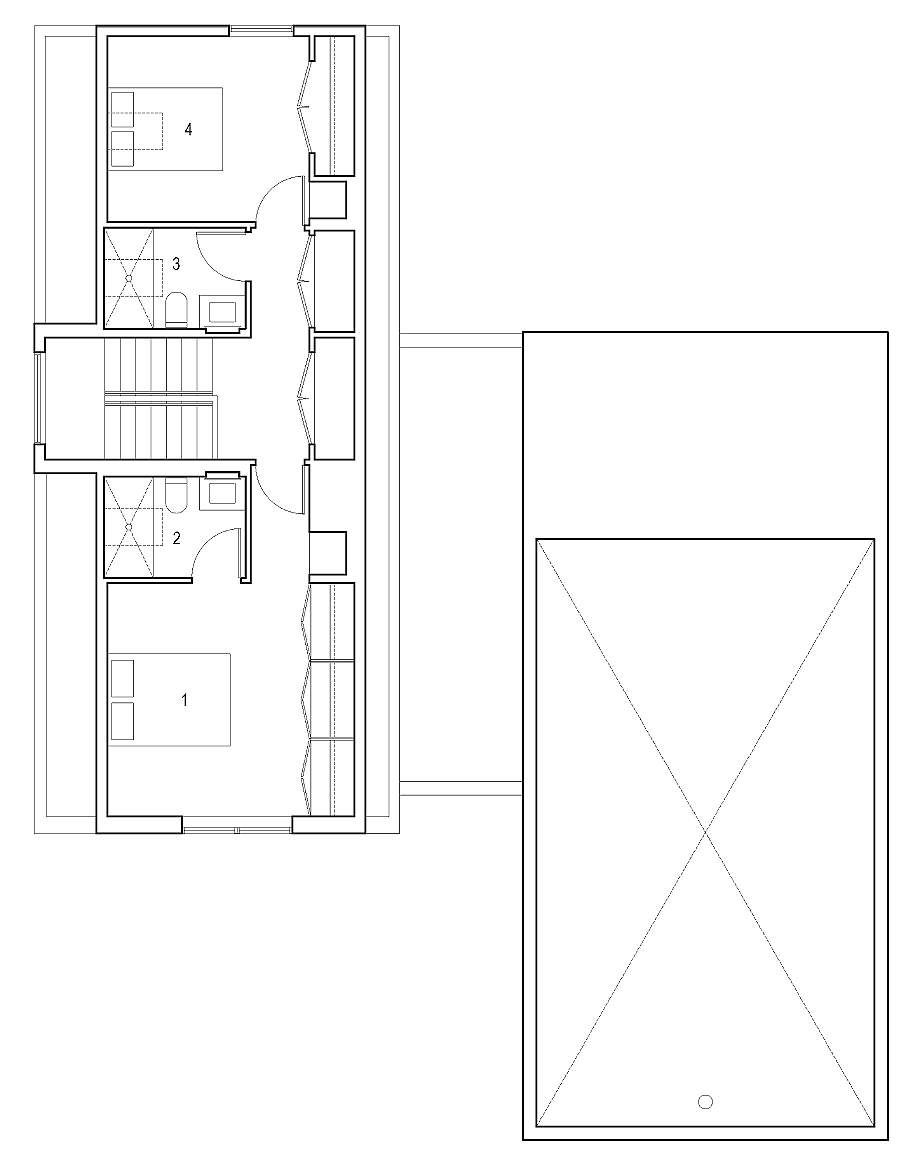
Por su parte, las habitaciones privadas están cuidadosamente ubicadas para disfrutar de la tranquilidad y el recogimiento. El dormitorio principal se concibe como un espacio de reposo, definido por un techo abovedado revestido de madera que refuerza su carácter íntimo. Un segundo dormitorio, equipado con literas, amplía la capacidad de alojamiento para familiares o invitados sin renunciar a la coherencia espacial del conjunto.
En uno de los baños de la casa, la ducha y el nicho de almacenamiento están revestidos con mosaico de color gris, aportando una textura sutil al espacio, mientras una claraboya introduce luz natural y matiza la atmósfera interior.
Materiales duraderos y de fácil mantenimiento
Las escaleras de madera, concebidas como un elemento continuo y sobrio, articulan la transición entre los dos niveles y prolongan la calidez de la paleta material que define toda la cabaña, así como el estilo formal de los interiores. La selección de acabados y materiales responde a las condiciones climáticas de la isla, apostando por materiales resistentes que garantizan la durabilidad de la vivienda y simplifican su mantenimiento.
Concluye el autor del proyecto que «la cabaña Sandpiper encarna el ambiente relajado de la isla Hornby, a la vez que ofrece las comodidades de un hogar moderno. Refinada y relajada a la vez, se erige como un refugio pensado para armonizar con su entorno».
LAS IMÁGENES DE SAMA JIN CANZIAN:










FICHA TÉCNICA:
- Proyecto: Sandpiper.
- Ubicación: Hornby Island, Columbia Británica (Canadá).
- Superficie: 190 m².
- Completado: 2025.
- Autor: Scott Posno Design (arquitectura, diseño de interiores y paisajismo).
- Constructor: Angus Hayman.
- Fotografías: Sama Jin Canzian.
PLANIMETRÍA:









SOBRE SCOTT POSNO DESIGN:
Scott Posno Design es un estudio de diseño con sede en Vancouver (Canadá), especializado en la creación de casas atemporales y elegantes, desarrolladas en estrecha colaboración con sus clientes.
La práctica de la firma se distingue por un enfoque personalizado y pragmático. Cada proyecto se concibe a partir del análisis detallado de cómo los clientes habitan sus espacios, ofreciendo proporciones cuidadosamente meditadas, detalles resueltos con precisión y elementos de diseño únicos. Las viviendas resultan de un equilibrio entre funcionalidad y estética, con composiciones que generan armonía espacial. El enfoque integral abarca los interiores, el paisajismo, el mobiliario e, incluso, las obras de arte, garantizando coherencia y unidad en todos los aspectos del diseño.
La atención a la artesanía y al detalle guía la resolución de problemas de diseño complejos, logrando resultados que se perciben como naturales y sin esfuerzo. El despacho participa en todas las etapas del proceso, desde la planificación inicial hasta la construcción final, colaborando con constructores, ingenieros, consultores y artesanos para crear viviendas que se integran con el terreno, los materiales y el estilo de vida de sus propietarios.
El trabajo de Scott Posno Design ha sido destacado en publicaciones como The Globe and Mail, ArchDaily, The Toronto Star, Design Milk, Dwell, Dezeen, Western Living, Canadian House and Home y Nuvo Magazine. En 2022, Scott Posno recibió el Premio Arthur Erickson Memorial de Western Living para arquitectos emergentes.
Scott Posno es licenciado en Artes Visuales por la Universidad Western (1992) y en Arquitectura por la Universidad de Columbia Británica (1995). Antes de fundar Scott Posno Design en 2003, trabajó en despachos de arquitectura de Vancouver como Acton Ostry Architects, Henriquez Partners y DGBK Architects. Con casi veinte años dedicados exclusivamente al diseño de viviendas, su experiencia incluye la concepción y construcción de cientos de casas de diversas escalas en todo Canadá.
Fuente: Scott Posno en Bowerbird



Leave A Reply