
GEODA BY GEOTILES:
Geoda es el nuevo showroom corporativo de Geotiles, empresa especializada en pavimentos y revestimientos cerámicos, ubicada en Vila-real, Castellón (España). El proyecto de arquitectura interior, firmado por Summumstudio, replantea la exposición cerámica desde una mirada espacial, arquitectónica y esencial, concibiendo el espacio como un recorrido experiencial. De este modo, se abandona el concepto tradicional de “muestrario” para construir una narrativa coherente y envolvente en la que la cerámica asume un papel protagonista, actuando no solo como acabado, sino como materia estructural y elemento configurador del lugar.
Un concepto arquitectónico inspirado por las geodas
El concepto arquitectónico se inspira en el nombre geoda, que designa una formación rocosa con un exterior sólido y aparentemente compacto, pero que en su interior esconde cristales brillantes. Esta característica se refleja en el diseño del showroom: una envolvente robusta que transmite fuerza y solidez, alineada con los valores de la marca, mientras que su interior revela una expresión más delicada y sorprendente. La dualidad entre la apariencia externa contundente y la riqueza interna sirve como punto de partida conceptual y define la lógica espacial y el recorrido experiencial del espacio.
Arquitectura interior sobria y atemporal
Jose María Gimeno y Andrés Navarro, fundadores de Summumstudio, han planteado una arquitectura interior sobria y atemporal, donde «la cerámica se libera de su condición aplicada para convertirse en volumen, masa y plano constructivo. Escaleras, bancadas, mesas, plataformas y muros se resuelven como piezas cerámicas de gran formato, integradas en el propio sistema espacial», explican. Esta decisión permite mostrar el material en condiciones reales de uso, reforzando su dimensión arquitectónica y técnica.
Sucesión de espacios conectados
Con cerca de 1.600 m², el interior se estructura como una sucesión de espacios conectados que conducen al visitante por distintas atmósferas. Desde la entrada, la arquitectura establece una transición gradual, comenzando con áreas más recogidas y evolucionando hacia amplias y luminosas zonas expositivas. La percepción del recorrido se modula mediante cambios en la escala, el ritmo y los materiales, creando un flujo espacial dinámico y envolvente.
Un recorrido con ambientes técnicos y domésticos
El showroom de Geotiles presenta más de 2.000 referencias cerámicas, distribuidas en 26 ambientes técnicos y cuatro espacios a escala real que remiten a interiores domésticos. La exposición se organiza según familias de producto -maderas, piedras, mármoles, cementos y grandes formatos-, alternando zonas de carácter técnico con diferentes ambientes a escala real. Esta combinación permite que los muros de muestra convivan con espacios vividos, logrando un equilibrio entre la abstracción del producto y la experiencia práctica, ya sea residencial o profesional. La arquitectura, discreta y funcional, sirve como marco que ordena la exposición y potencia la presentación de los materiales sin imponerse a ellos.
La celosía, elemento clave para organizar el recorrido
Un elemento tan mediterráneo como la celosía se convierte en una herramienta clave para organizar el recorrido dentro del showroom. Aparece en la coronación del vestíbulo de entrada y del mostrador, desplegándose como una piel lineal que acompaña al visitante y define la trayectoria a seguir. Su colocación permite revelar o esconder los distintos ambientes de manera controlada, creando una estrategia visual que conduce gradualmente hacia el patio interior abierto, donde la celosía se transforma en la envolvente que articula todo el conjunto.
Desde la abstracción a la concreción
El interior del espacio expositivo se desarrolla siguiendo un progresivo grado de abstracción y concreción. Al inicio, la cerámica se muestra en su estado más puro, centrada en sus cualidades materiales y táctiles. A medida que avanza el recorrido, los espacios adquieren un carácter más definido, simulando entornos próximos a la realidad, hasta desembocar en un loft final, donde los ambientes son completamente realistas y los revestimientos cerámicos funcionan como superficies integradas en elementos con un uso concreto.
Sistema lumínico interactivo
La iluminación juega un papel central en esta experiencia. Cada área está diseñada para resaltar texturas, formas y detalles de los materiales mediante un sistema lumínico interactivo de última generación, que se activa con la presencia de los visitantes. La combinación de luz rasante y puntual potencia vetas, relieves y uniones, mientras que la iluminación uniforme asegura la correcta apreciación técnica de cada pieza. El resultado es una atmósfera cuidadosamente controlada, casi de museo, que invita a recorrer los espacios con calma y a descubrir la riqueza material de la cerámica en cada escala.
Con vistas directas a la fábrica
El proyecto se completa con salas de reunión, zonas de trabajo y espacios de atención profesional, completamente integrados en el discurso arquitectónico. Destaca un espacio delimitado por una amplia cristalera que ofrece vistas directas a la fábrica, brindando la oportunidad de observar el proceso de producción en tiempo real y apreciar la tecnología y el conocimiento técnico de la empresa. Estos ámbitos refuerzan la concepción del espacio como un entorno funcional, donde la actividad y la experiencia conviven con la exhibición, más allá de su carácter puramente representativo.
LAS IMÁGENES DE FERNANDO ALDA:















FICHA TÉCNICA:
- Proyecto: Showroom Geotiles – Geoda.
- Ubicación: Vila-real, Castellón (España).
- Superficie: 1.600 m².
- Completado: 2025.
- Material principal: cerámica de gran formato Geotiles.
- Fotografías: Fernando Alda.
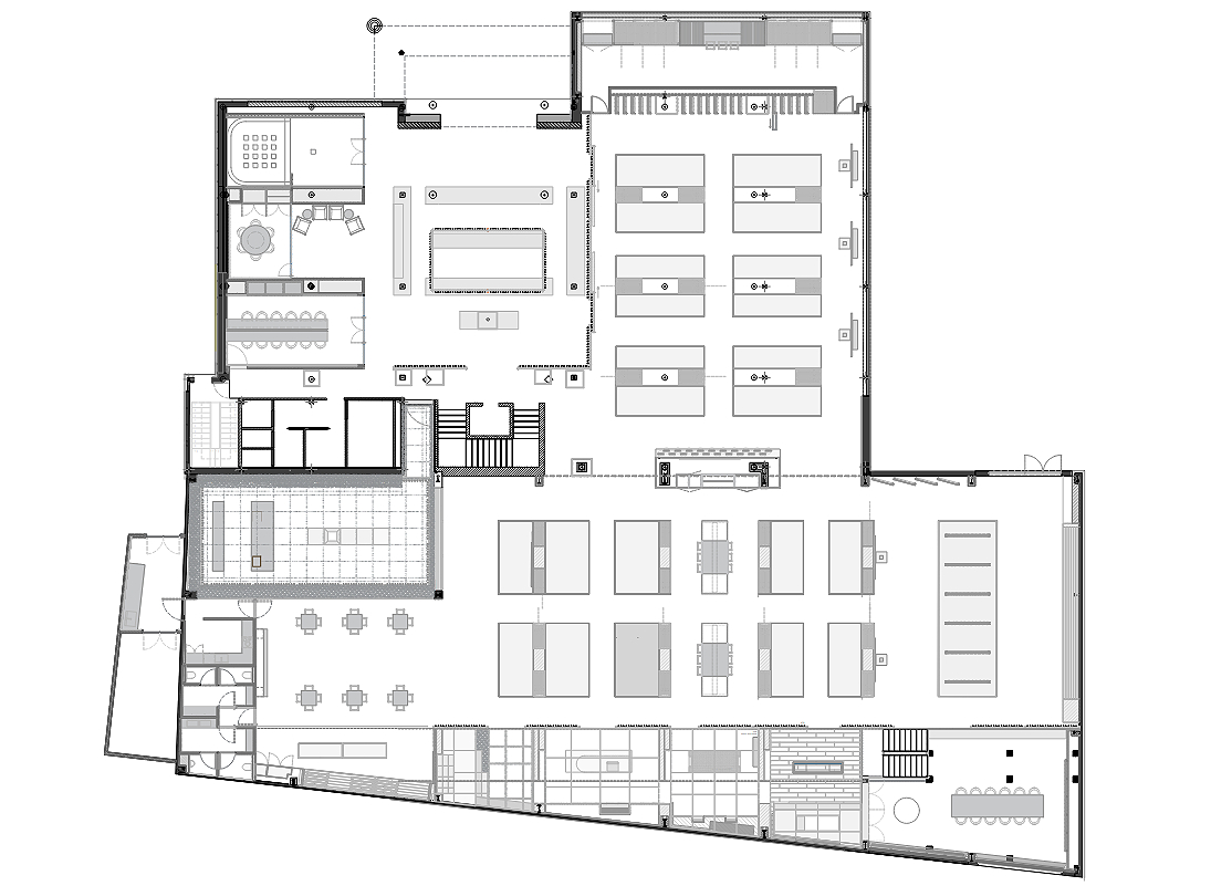
PLANIMETRÍA:

SOBRE SUMMUMSTUDIO:
Summumstudio es una consultoría de diseño estratégico de carácter interdisciplinar que entiende el diseño como una forma de vida y concibe cada proyecto desde una estrategia global. Con sedes en Madrid y Castellón (España), el estudio está liderado por José María Gimeno (CEO & Dirección Creativa) y Andrés Navarro (Project Manager).
Desde su fundación en 2007, Summumstudio opera como un equipo integrado por departamentos de Branding, Arquitectura Interior y Diseño de Producto que, aunque estructuralmente diferenciados, funcionan como «vasos comunicantes».
El estudio está especializado en proyectos de arquitectura interior, diseño industrial y branding, desarrollando encargos tanto corporativos como particulares que agregan valor y posicionan la marca-cliente. Su enfoque transversal y global permite concebir el espacio, el objeto y la identidad visual como un todo coherente, enriqueciendo la experiencia del usuario y elevando la calidad de los entornos. La trayectoria internacional del estudio se refleja en la participación en ferias, showrooms y proyectos de alto impacto, además de su reconocimiento por prestigiosas instituciones de diseño.
El estudio ha sido reconocido por su excelencia creativa en el ámbito internacional. Entre sus galardones más recientes destacan el Surface Design Award 2025 en la categoría Light & Surface por la instalación A Reflection of Who We Are para Neolith, el Coverings Best in Show 2025 por el proyecto para WOW Design, y el Emporia de Oro 2024 en los Premios Nacionales de Arquitectura Efímera por su espacio para WOW Design en CERSAIE 2024.
SUMMUMSTUDIO EN INTERIORES MINIMALISTAS
SOBRE GEOTILES:
Geotiles es una empresa cerámica con más de 26 años de trayectoria, dedicada al diseño, producción y distribución de soluciones cerámicas de calidad, con presencia tanto en el mercado nacional como internacional. La compañía trabaja bajo la premisa de su sello de calidad e innovación cerámica, manteniéndose atenta a las tendencias del sector y en permanente contacto con sus clientes para satisfacer las necesidades de los diferentes mercados.
En su catálogo, Geotiles ofrece una selección de colecciones que incluyen estilos y acabados variados, como superficies pulidas o satinadas y reproducciones fieles de mármoles, cementos, maderas y piedras. Estas colecciones se presentan en una gran variedad de formatos y con versatilidad de diseño, lo que permite adaptar sus productos a múltiples necesidades y proyectos cerámicos.
Geotiles tiene su sede en la localidad de Vila-real (Castellón), España, donde se encuentra su centro de operaciones y atención comercial.
Fuente: AMB Comunica y en la web de Geotiles





Leave A Reply