CASA Y ESPACIO DE TRABAJO:
El estudio alemán r,w architekten (rommel, wagenpfeil architekten) proyectó esta moderna vivienda y espacio de trabajo para una pareja, tomando como inspiración la tipología del granero regional. El objetivo del proyecto, ubicado en Winnenden (Alemania), fue construir una casa que, al igual que un granero tradicional, se integrara en el entorno de huertos dispersos adyacentes y, al mismo tiempo, conectara respetuosamente con el atractivo paisaje circundante del valle.
Dos plantas con cubierta a dos aguas
La parcela donde se levanta la vivienda, estrecha pero de considerable longitud, dio lugar a una casa alargada de dos plantas con cubierta a dos aguas. La edificación se concibió como un volumen arquetípico, reducido a lo esencial pero cuidadosamente detallado, que limita su expresión a unos pocos rasgos tipológicos. Esta síntesis formal refuerza su condición de reinterpretación contemporánea del granero de la región.
Nuevo patio de entrada
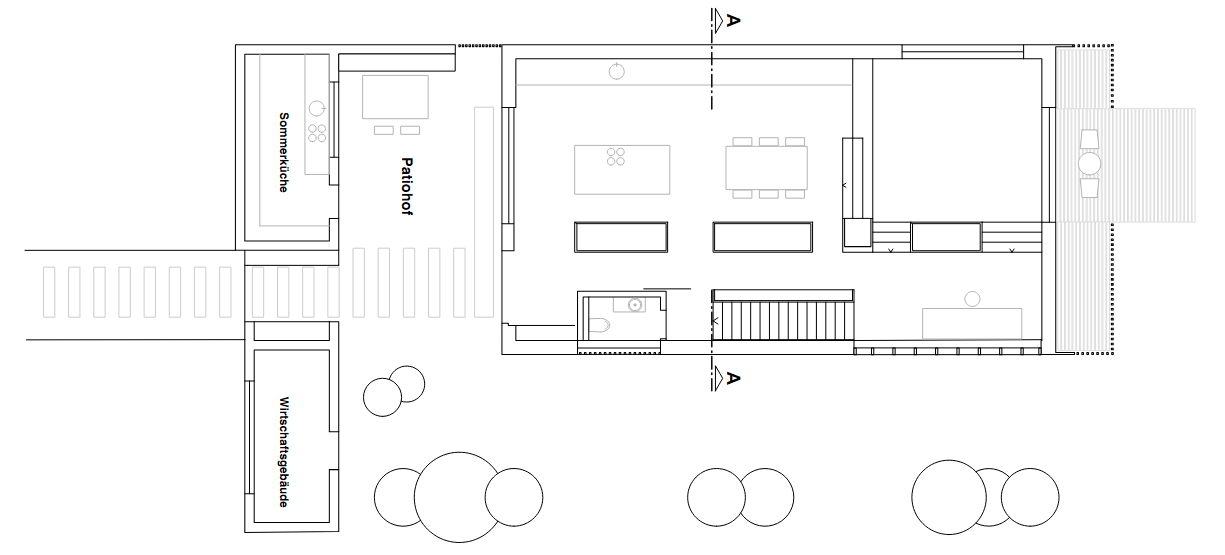
Dada la orientación al sur de la propiedad, la construcción de un ala transversal de una sola planta paralela a la calle permitió crear una mayor zonificación, formando un patio de entrada, inspirado por los patios españoles e italianos. Este espacio exterior soleado sirvió para mejorar la calidad de la estancia al aire libre y establecer una secuencia clara desde el ámbito público hasta el privado. La renuncia a un garaje permitió destinar este frente a la configuración del patio, compensando la orientación desfavorable de la parcela.
Zona de día abierta a los huertos adyacentes
Por su parte, el volumen auxiliar -destinado a dependencias de servicio y cocina de verano- conduce al patio delantero y, posteriormente, al edificio principal en la planta baja. Dispuestos longitudinalmente, la cocina, el comedor y la sala de estar, con su espacio privado, se abren a los huertos adyacentes. La sensación de amplitud se ve reforzada por los grandes ventanales y los espacios abiertos que conducen a las galerías de la planta superior. En el nivel superior, se disponen los espacios de trabajo y las habitaciones privadas, junto a una galería de estudio.
Hormigón visto, caucho natural y madera
El diseño y la construcción de la Casa JES se rigieron por el principio Cradle-to-Cradle, priorizando la máxima reciclabilidad de los materiales y el mínimo uso de componentes compuestos para facilitar su futura separación. Asimismo, se limitó el uso de adhesivos químicos, pinturas y productos similares. Esta filosofía se refleja en la materialidad del edificio, tanto en el interior como en el exterior: hormigón visto para optimizar la absorción de CO₂, suelos de caucho natural y carpinterías de madera con acabado natural. La selección y el tratamiento de los materiales aportan al conjunto una elegancia que surge de la reducción y de la interacción armoniosa de las superficies.
Fachada ventilada de madera carbonizada
La fachada ventilada, construida con madera local de silvicultura regional sostenible, al igual que las ventanas, se realizó utilizando la técnica tradicional japonesa de carbonización Yakisugi (Shou Sugi Ban). Las lamas de madera se carbonizaron superficialmente con fuego, logrando una superficie resistente a la putrefacción, a los insectos y a los hongos, sin necesidad de productos químicos. Este acabado, además de ser duradero y reciclable a largo plazo, otorga a la fachada un tono negro que evoca los antiguos graneros y refuerza el concepto arquitectónico fundamental.
En el ámbito paisajístico, se seleccionaron árboles aptos para abejas e insectos, capaces de soportar altas temperaturas y sequías, con el objetivo de responder a veranos cada vez más calurosos. Asimismo, la fachada verde contribuye a la refrigeración del patio.
Tecnologías renovables
La casa alcanza el estándar de eficiencia energética Effizienzhaus 55 y emplea tecnologías renovables. La calefacción se realiza mediante bomba de calor eléctrica, complementada con un sistema fotovoltaico con almacenamiento de electricidad para autoconsumo. Entre las estrategias de confort se incluyen la refrigeración estival de los elementos constructivos mediante bomba de calor, un sistema de calefacción y refrigeración por suelo radiante con regulación individual y un sistema domótico para la gestión integral de la vivienda.
German Design Award 2026
La Casa JES fue distinguida con el German Design Award 2026 en la categoría Excellent Architecture – Architecture – Residential. El jurado destacó la reinterpretación de la tipología del granero tradicional, la coherente integración de los espacios de vida y trabajo, y la creación de un patio protegido que aporta una elevada calidad al espacio exterior. También destacó el uso de materiales sostenibles y técnicas innovadoras, como la fachada de madera carbonizada Yakisugi, así como un paisajismo que favorece la biodiversidad y estrategias de diseño respetuosas con el clima. Según el jurado, el proyecto se erige como un referente de arquitectura residencial que combina funcionalidad, estética y sostenibilidad.
El resultado es una vivienda y estudio que, desde una forma esencial y reconocible, articula sostenibilidad, eficiencia energética y calidad espacial en diálogo con el paisaje y la estructura urbana existente.
LAS IMÁGENES DE ZOOEY BRAUN:










FICHA TÉCNICA:
- Proyecto: Casa y estudio JES.
- Ubicación: Winnenden (Alemania).
- Superficie construida: 358 m².
- Superficie útil: 266 m².
- Completado: 2025.
- Autor: r,w architekten (rommel, wagenpfeil architekten).
- Calefacción: mediante bomba de calor eléctrica.
- Sistema fotovoltaico: con almacenamiento de electricidad para autoconsumo.
Suministro y uso de energía:
- Fachada verde: para la refrigeración del patio.
- Baterías de almacenamiento: para guardar el exceso de energía fotovoltaica.
- Estándar de eficiencia energética: 55 (Effizienzhaus 55).
- Tecnologías renovables.
Confort:
- Refrigeración estival de los elementos constructivos: mediante bomba de calor.
- Calefacción/ refrigeración: por suelos radiantes con regulación individual.
- Sistema domótico (SmartHome).
Fotografías: Zooey Braun.
PLANIMETRÍA:


SOBRE R,W ARCHITEKTEN:
El estudio de arquitectura r,w architekten (rommel, wagenpfeil architekten) fue fundado, en 1989, por Dieter Rommel en la ciudad de Winnenden (Alemania).
Tras más de tres décadas de trayectoria, desde 2019 desarrolla su labor bajo el nombre rommel, wagenpfeil architekten Partnerschaft mbB, firma dirigida por los socios Sebastian Rommel, Nicolas Wagenpfeil y Dieter Rommel (en este orden en la imagen).
Su práctica abarca todos los ámbitos de la arquitectura y el urbanismo, atendiendo encargos tanto públicos como privados y asumiendo las distintas fases del proceso proyectual con un enfoque integral.
Cada proyecto nace de un análisis riguroso del programa y de una lectura atenta de las cualidades y particularidades del lugar. En estrecha colaboración con artesanos locales y con su equipo de planificación, el estudio busca soluciones claras, precisas e inteligentes. El resultado son espacios y entornos de fuerte carácter atmosférico, concebidos a la medida de las necesidades de sus usuarios y definidos por una cuidada dimensión sensorial y material.
La oficina persigue una arquitectura de alta calidad y vocación sostenible, acompañada de una gestión responsable que optimiza costes, consumo energético y plazos de ejecución. La fiabilidad, el compromiso y la atención constante a la calidad constituyen los principios rectores de su trabajo.
Fuentes: Zooey Braun y r,w architekten






Leave A Reply