SHOWROOM DE SANCHI WOODWORK:
Sanchi Woodwork cuenta con un minimalista showroom, ubicado en la ciudad Wenzhou (China), diseñado por NDB Design Studio, la firma fundada por Ni Dongbo. Con su proyecto, el diseñador propone un cambio en un momento en el que el diseño de este tipo de establecimientos se ha vuelto más homogéneo y limitado a tendencias pasajeras. Su propuesta busca construir «un espacio de interacción capaz de evolucionar, volver a su esencia y abrazar la libertad de la experiencia. No se trata únicamente de una innovación formal, sino de una reimaginación sistemática del valor de un showroom», explica.
Configuración descentralizada
En contraste con otros establecimientos, donde una circulación controlada conduce a los clientes por recorridos preestablecidos orientados a maximizar la conversión, el proyecto propone una configuración descentralizada. Una serie de módulos expositivos articulan un espacio que invita a recorrerlo con calma y sin un itinerario impuesto. En este contexto, los productos no se integran en escenarios ficticios, sino que se presentan como piezas autónomas, completas en sí mismas. De este modo, el showroom se concibe como un ámbito de diálogo libre de la presión de la venta, donde es posible comprender e interiorizar gradualmente los valores materiales y la sensibilidad estética que la marca busca transmitir.
Trabajo artesanal contemporáneo
En la entrada, un mostrador de recepción curvo se desvía suavemente de la lógica lineal asociada a la madera, evocando la resiliencia y la calidez propias del material a través de un trabajo artesanal de carácter contemporáneo. En el punto donde la curva se interrumpe aparece una pausa deliberada -un vacío cuidadosamente introducido- que suspende el recorrido habitual e invita a los visitantes a iniciar una exploración más libre del espacio.
Transiciones fluidas entre los diferentes espacios
En este contexto, la marca ya no depende de largas explicaciones: la estética artesanal, la textura de los materiales y la precisión de los detalles constructivos -cualidades inherentes a los propios productos- se convierten en su principal forma de comunicación. Al mismo tiempo, zona pública de carácter policéntrico facilita transiciones fluidas entre los distintos escenarios mediante mobiliario multifuncional y paneles flexibles, permitiendo que el espacio se adapte con naturalidad a la actividad de quienes lo recorren.
Realzar la esencia de los productos
Para no eclipsar la esencia de los productos, el diseño prescinde de recursos decorativos excesivos y adopta un lenguaje material contenido. Cada tratamiento superficial del showroom se resuelve con sobriedad, de modo que color e iluminación actúan como herramientas para realzar las cualidades táctiles de los materiales y subrayar la precisión estructural. Una iluminación focalizada, dirigida a las vetas de la madera, pone en valor la riqueza y diversidad del trabajo de carpintería.
Destacar texturas y acabados con la iluminación
En línea con esta intención, Ni Dongbo señala que, aunque los recorridos fijos y las escenografías tradicionales pueden orientar al visitante, con frecuencia conducen a experiencias superficiales y ofrecen pocos estímulos para detenerse en los detalles. El proyecto responde a esta reflexión mediante una iluminación ambiental uniforme, complementada con focos de alta reproducción cromática que destacan los acabados y las texturas de los productos, invitando a observar de cerca la veta y la elaboración artesanal de cada pieza.
Paredes y mobiliario en roble y nogal
Las paredes y el mobiliario de gran formato están realizados en nogal y roble negro con acabado mate y vetas naturales pronunciadas. Las superficies mates absorben la luz y generan un fondo sereno y profundo, mientras que las vetas dinámicas de la madera captan las variaciones de la luz, creando ritmos visuales sutiles y continuos. Este contraste trasciende lo meramente decorativo: dentro de una paleta cromática unificada, construye capas visuales refinadas que sugieren una cálida dimensión táctil.
El sistema de almacenaje como telón de fondo contemporáneo
Todas las puertas del mobiliario a medida se apartan asimismo del habitual panel liso transformándose en una serie de módulos rectangulares simétricos. Esta modulación genera una composición plana, racional y equilibrada, que deconstruye visualmente los volúmenes y aligera su presencia. De este modo, el propio sistema de almacenaje adquiere presencia como telón de fondo contemporáneo que trasciende su mera función como almacenamiento.
Un diálogo profundo y sutil
Como señala el autor del proyecto, en este espacio cada detalle «remite a la experiencia humana, desde el confort visual y la autenticidad táctil hasta su resonancia emocional y espiritual. El showroom, añade, no se concibe simplemente como un lugar para exhibir productos, sino como un entorno capaz de generar un vínculo en el que material, el espacio y la sensibilidad de los visitantes entablan un diálogo profundo y sutil.»
LAS IMÁGENES DE YUNMIAN PHOTOGRAPHY STUDIO:














FICHA TÉCNICA:
- Proyecto: Showroom Sanchi Woodwork.
- Ubicación: Rui’an, Wenzhou (China).
- Superficie: 300 m².
- Completado: 2023.
- Autor: NDB Design Studio.
- Director de diseño: Ni Dongbo.
- Diseñador principal: Guo Chuanyang.
- Visualización: NDB Design.
- Fotografías: Yunmian Photography Studio.
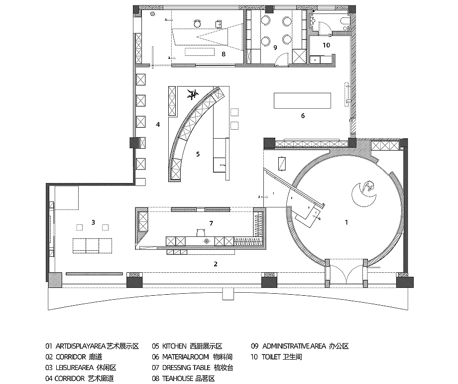
PLANIMETRÍA:

SOBRE NDB DESIGN STUDIO:
NDB Design Studio es un estudio chino fundado, en 2019, por Ni Dongbo y un equipo de jóvenes diseñadores nacidos en los años 90 pertenecientes a distintas disciplinas. La firma ofrece una amplia gama de servicios de diseño y consultoría que abarca el diseño de interiores, reformas, curadoría artística, diseño corporativo y visual, y diseño de productos. A lo largo de los últimos años, el estudio ha llevado a cabo destacados proyectos y ha recibido el reconocimiento en diversos premios nacionales e internacionales.
El estudio se centra en la singularidad de cada proyecto, buscando soluciones únicas que respeten las características particulares de cada encargo. Sus propuestas combinan un enfoque racional y detallado con estándares estéticos exigentes, generando espacios que integran funcionalidad y estética, así como dimensiones comerciales y artísticas, respaldados por la práctica profesional y la reflexión de diseño.
Fuente: NDB Design Studio






Leave A Reply