El estudio Christ Christ Associated Architechs ha convertido un bungalow, edificado en los años 60 por Wilfried Hilger, en una amplia y sobria residencia unifamiliar añadiendo tres bloques diferentes conectados a través de un pasillo de cristal sobre el techo de la construcción.



Christ Christ Associated Architects es un estudio internacional fundado en 1898 y dirigido en la actualidad por la tercera y cuarta generación de su creador, Karl Christ senior. La compañía tiene sus oficinas en Wiesbaden, la capital del land alemán de Hesse, y está especializada en proyectos de arquitectura civil y residencial, interiorismo y consultoría en eficiencia energética, lo que se refleja en la composición multidisciplinar de su plantilla. En el marco de su compromiso con el medio ambiente, Christ Christ Associated Architects aplica a todos sus proyectos criterios de sostenibilidad y eficiencia.

Ficha técnica:
-
Proyecto: Casa S.
-
Localización: Weisbaden (Alemania).
-
Equipo: Christ Christ Associated Architects.
-
Año: 2010-2011.
-
Superficie: 873 m2.
-
Superficie útil: 452 m2.
-
Diseño: Roger Christ.
-
Asistentes: Ronni Neuber y Julia Url.
-
Ingenieros: Schmitt y Thielmann und partner.
-
Fotografías: Thomas Hermann.
Concepto:

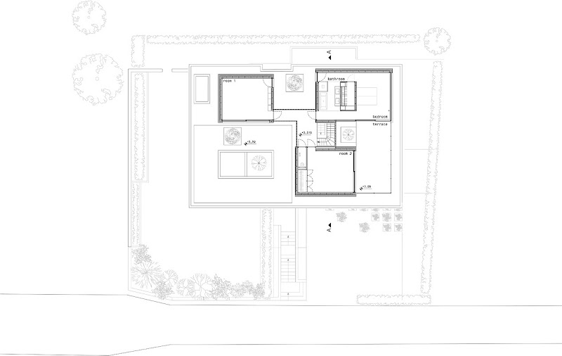
Planimetría:
Primera planta
Información e imágenes facilitadas por Christ Christ Associated Architects

































Leave A Reply