
El propio arquitecto explica que “durante años en el Japón, la práctica de ‘tomar prestado el paisaje’ ha sido frecuente como una forma de vida. Sin embargo, esta práctica ha disminuido recientemente a causa del desarrollo urbano. La mayoría de las veces, uno tiene que construir un muro o una valla con el fin de protegerse de un entorno cada vez más indeseable. Es en este momento y lugar cuando interviene la Interfaz».


«Generalmente, la Interfaz se compone de una pantalla periférica tras la que habría una zona verde. Esta combinación de pantalla y verde constituye la Interfaz. Ésta actúa como un filtro, como una zona de amortiguación, un cojín que lubrica la comunicación entre el interior y el exterior de una casa o un edificio».




«Un buen ejemplo de Interfaz en el vocabulario de diseño tradicional japonés es ‘engawa’ o pasillo periférico de la casa japonesa de estilo tradicional. ‘Engawa’ es a la vez un espacio exterior e interior. Es el espacio intermedio entre el exterior y el interior. A veces, por ejemplo en invierno, los dos espacios se separan, mientras que en otras ocasiones, por ejemplo en verano, ambos se fusionan».




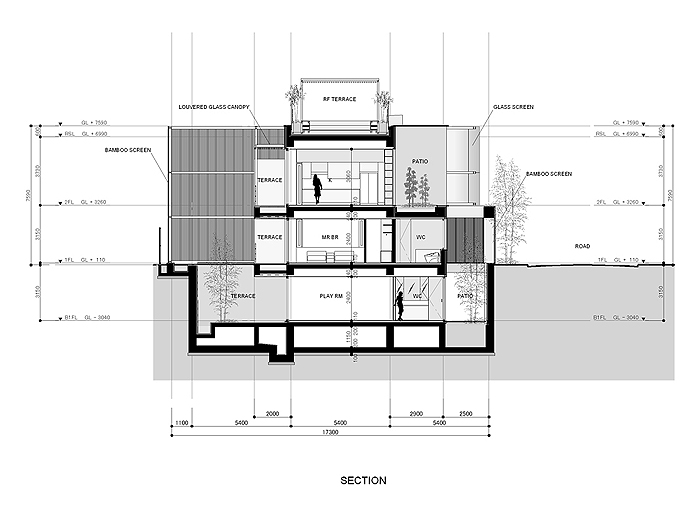
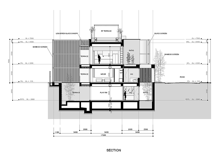
«En este proyecto se han aplicado dos tipos de pantallas. Una es circular, de vidrio esmerilado, que envuelve y protege el segundo piso en el lado noreste. Con reminiscencias de la pantalla de papel japonesa tradicional (Shoji), esta máscara translúcida permite que una suave y abundante luz natural penetre en el interior, asegurando al mismo tiempo una completa privacidad dentro de la casa. Por la noche, toda la casa se ilumina como una gran ‘andon’ o lámpara de vela japonesa, para arrojar luz cálida a la vecindad».




«El otro es una persiana vertical de bambú. Mientras ofrece un cierto nivel de privacidad, esta pantalla deja entrever la silueta de las casas de al lado y permite a los habitantes de la nueva casa estar al tanto de los vecinos. Por lo tanto, respeta el paisaje circundante mediante el filtrado y no tapándolo totalmente. Esto permite que el mundo exterior pueda ser ‘percibido’ pero no ‘visto’ claramente. Dentro de esta pantalla hay una zona con altos bambúes, hierba y arbustos típicos de Kyoto”.




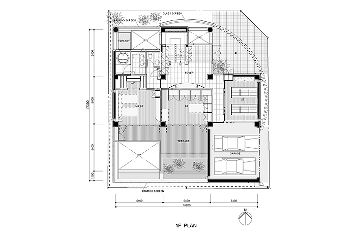
«El programa funcional de la casa consta de dos habitaciones, baño, aseo, terraza y garage, en la planta baja; una sala de estar y una habitación japonesa flanqueando un patio hundido en forma de L en el basamento junto a un estudio, una habitación de invitados, un baño, una sala de juegos, comedor y cocina, en el segundo nivel; y, una terraza con pérgola en la azotea con vistas de las colinas de Kyoto».


Fotografías: Yasuhiro Nukamura
Planimetría:




















Leave A Reply