
Siempre resulta agradable encontrar lugares para pasar unos días de descanso que se desmarquen por sus características del resto de la oferta. Maff Studio es uno de ellos. Los arquitectos Robert-Jan de Kort (RDKA) y Teun van den Dries (Eckhart) finalizaron a principios de este año la transformación de un edificio histórico, construido alrededor de 1900, en un confortable y luminoso apartamento para dos personas en el centro de La Haya (Holanda).
Maff Studio es el sucesor de Maff Apartment, otra rehabilitación que llevaron a cabo para el mismo cliente en 2007. Pero mientras Maff Apartment está situado en el ático de un edificio con vistas a la ciudad, Maff Studio es una vivienda independiente a nivel de calle.
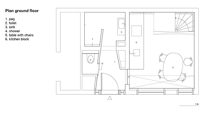
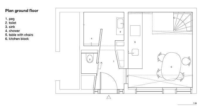
A través de la intervención en el tejido del edificio existente, el pequeño espacio (alrededor de 48 m2 útiles) ofrece una intensa calidad espacial y un generoso espacio donde vivir.
El apartamento fue diseñado como una suite de hotel sin ser un hotel. Es la propia ciudad, con sus numerosas funciones y atractivos, la que soluciona algunos de los servicios propios de un establecimiento hotelero.
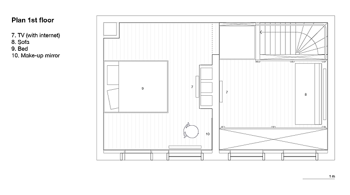
El espacio tiene su propia entrada y se divide en dos niveles. En la planta baja: hall, comedor, cocina y baño con ducha. En el primer piso: un salón, que juega con un suelo en madera y cristal transparente, y un dormitorio. En el techo se han dejado las vigas de madera vistas, a las que se les ha aplicado un suave color. La conexión abierta entre la cocina y el salón crea la sensación de espacio continuo.
Fotografías: Teun van den Dries
Imágenes e información facilitadas por RDKA
































Leave A Reply