
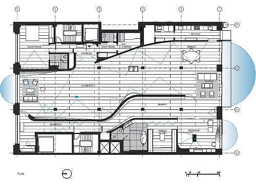
El estudio holandés UNStudio ha transformado un loft de 550 m2 situado en pleno barrio de Greenwich Village, en el corazón de Manhattan, en un espacio de uso híbrido como apartamento-galería de arte-biblioteca gracias a unos tabiques ondulados que ordenan un muy generoso y complejo espacio.
Los arquitectos del reconocido estudio UNStudio tenían planteados en este caso varios retos: redistribuir el loft de modo que los usos de vivienda y galería conviviesen cómodamente, realizar esta división sin perder la sensación de «open-space», crear paredes para la exposición vertical y corregir una desproporción intrínseca del apartamento, demasiado bajo para las generosas dimensiones de anchura y longitud que presentaba la planta.

Para conseguir las formas redondeadas, los tabiques se han construido de fibra de vidrio reforzada con paneles de yeso. El techo apoya esta distribución sinuosa, creando distintas zonas opacas e iluminadas que ayudan a distinguir los espacios más acogedores destinados a uso privado de las áreas más iluminadas, que funcionan como galería. 18.000 luces led iluminan la parte expositiva, permitiendo el intercambio de las distintas intensidades y tipos de luz: desde más fría y blanca, a más neutra y natural, o a tonos más cálidos y anaranjados.
El tercer elemento sobre el que han trabajado los arquitectos ha sido las vistas de la ciudad: las antiguas ventanas se han abierto totalmente y han sido sustituidas por paneles acristalados de suelo a techo en la fachada sur, la que tiene las mejores panorámicas sobre la «city» que nunca duerme.
El suelo, un parquet de tablones de abeto de 45 cm de ancho, pavimenta de forma homogénea todo el loft. De este modo, se apoya también la unificación del espacio y las piezas de mobiliario de estilo contemporáneo se sitúan casi como elementos flotantes sobre el parquet de madera clara.
Este reportaje ha sido realizado por Gracia Cardona, cuyo magazine on-line diarioDESIGN os recomiendo desde Interiores Minimalistas.













Leave A Reply