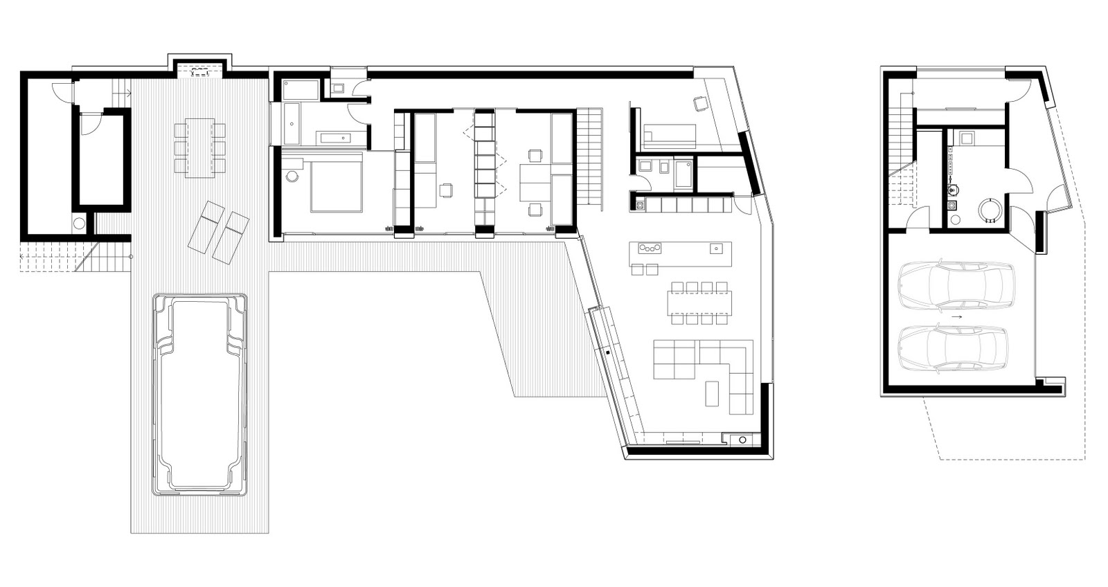
En la casa, las escaleras forman parte de la estructura tanto para conectar los dos pisos como para separar la zona de día y la de noche. La primera, que incluye el salón-comedor y la cocina –en un único espacio-, la despensa y el estudio, está orientada en paralelo a la calle por donde tiene lugar el acceso a la vivienda.
En el área más privada, el estudio con el cuarto de baño contiguo puede utilizarse como habitación de invitados; el dormitorio principal y las dos habitaciones infantiles (convertibles en una estancia más grande) dan al jardín posterior; y el pasillo está iluminado por la claraboya con una interacción constante de la luz y la sombra durante el día. Todas las habitaciones superiores se benefician de los amplios muros acristalados que facilitan el contacto con el jardín y las terrazas.
Arquitectónicamente, existen dos aspectos destacados en el proyecto. El primero está encaminado a maximizar la exposición solar del salón. Por otra parte, el nivel principal está dispuesto en voladizo de manera que proporciona un acceso protegido tanto si se llega en coche como caminando. Esta disposición y la coloración oscura del nivel inferior, en contraste con el enlucido blanco del resto de la edificación, contribuyen a reducir el impacto visual de la rotunda fachada. El segundo aspecto tiene lugar en la diferencia de altura de un metro del ala de día sobre el ala de noche. Lo que ha hecho que el salón ganase tanto en volumen como en altura.
Los arquitectos también ha realizado el diseño interior y el diseño paisajístico. Los interiores están equipados con mobiliario hecho a medida en acabado alto brillo de color blanco, que se mimetiza con la estructura de la casa. Mientras que la piscina, la tarima de madera y el jardín se convierten en un lugar ideal para las actividades del tiempo libre.
- Proyecto: Dom Zlomu.
- Arquitectos: Paulíny Hovorka Architekti / Branislav Hovorka, Martin Paulíny.
- Ingeniero de estructuras: Vladimir Budinsky.
- Localización: Banská Bystrica – Kynceľová (Eslovaquia).
- Superficie del terreno: 1.100 m2.
- Superficie de la vivienda: 239 m2.
- Proyecto: 2006-2008.
- Construcción: 2007-2010.
- Fotografías: Paulíny Hovorka Architekti.



























Leave A Reply