
El estudio valenciano Vidal y Satorre firma el proyecto de interiorismo de esta farmacia, ubicada en uno de los barrios más emblemáticos de Barcelona, el de Sant Andreu. En su diseño se ha buscado crear un espacio con distinción, basándose en el concepto del “clasicismo contemporáneo”. Para alcanzar este objetivo, se han combinado el cristal, el mármol y la madera, dando lugar a interior sobrio, amplio y liviano, donde la atención recae, sobre todo, en la fuerza de la madera de nogal y el dibujo de sus bellísimas vetas.
Por el contrario, el vidrio, utilizado no sólo en los escaparates y expositores sino también en el mostrador de atención al público, ha conseguido dotar de gran ligereza y transparencia al local, un efecto difícil de conseguir cuando es necesario exponer una amplísima gama de productos. Además, para crear una atmósfera diáfana se ha magnificado la visual del espacio con la utilización del espejo fumé en los fondos de exposición, lo que al mismo tiempo resalta el producto.
El resto de los materiales -la madera de nogal y el mármol Blanco de Ibiza- se han empleado con intención de renovar conceptos clásicos. Así se han conseguido un elegante pavimento y un personal mostrador de intensa presencia.
La ausencia de falso techo ha obligado a utilizar elementos de iluminación de superficie que contribuyen, junto con las luces continuas indirectas, a dotar a la farmacia de una atmósfera mística.
Ficha técnica:
- Proyecto: Farmacia Peris Grau.
- Localización: Barcelona.
- Interiorismo y dirección de obra: Vidal y Satorre arquitectura de interiores, S.L.
- Constructora: Movical.
- Mármoles: Jordá e Hijos, S.L.
- Carpintería de madera: Formas Artesanas, S.L.
- Cristalería: Cristalería Campos Villalba.
- Aparatos de iluminación: Arkos Light y Vibia.
- Rotulación: Essapunt.
- Estores: Prestige Courtain, S.L.
- Realización: 2009.
- Fotografías: Núria Vila.
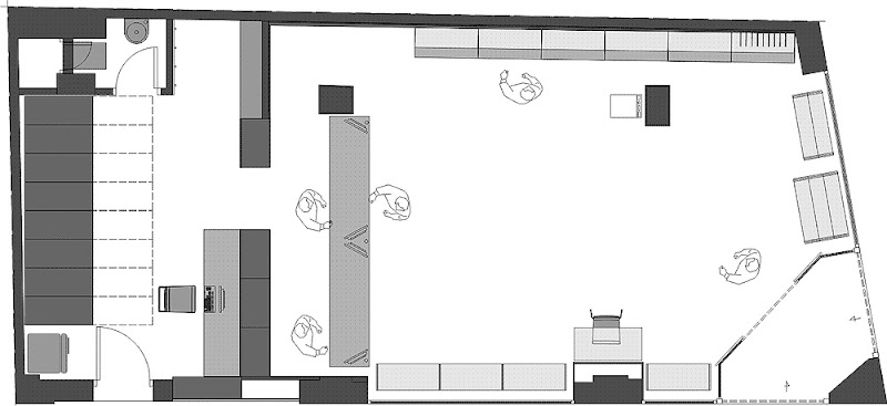
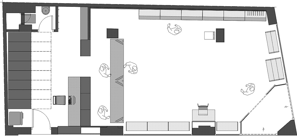
Planimetría:
Sobre Vidal y Satorre:
Vidal y Satorre arquitectura de interiores inicia su andadura en 2005 con la fusión de la trayectoria profesional como interioristas de Vicente Vidal –director creativo- y Marta Satorre –jefe de proyectos-, tras haber trabajado ambos en otros reconocidos estudios. Diversos medios y editoriales se han hecho eco de su labor: Casa Basic, Basic Contract, Interiores, Proyecto Contract, Tendencias Vlc, RTVV, Ruzafashow,… lo cual ha contribuido a una rápida expansión, primero de carácter regional y en la actualidad, con proyectos en el ámbito nacional e internacional. Desde el año 2011, pasa a llamarse Vicente Vidal Estudio.
Información e imágenes facilitadas por Vidal y Satorre arquitectura de interiores















Leave A Reply