BAK Arquitectos es el autor de esta singular casa de veraneo, construida principalmente en hormigón y vidrio, que se mimetiza con la vegetación del bosque marítimo donde se encuentra ubicada. A la hora de llevar a cabo el proyecto, los arquitectos debieron resolver el problema de la escasez de luz del lugar y responder a dos requerimientos primordiales: que se ajustara al bajo presupuesto disponible y que su mantenimiento fuera nulo.

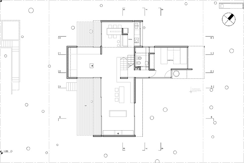
El cliente quería una casa para ser usada durante gran parte del año, de sólo dos dormitorios y dos baños, uno de ellos en suite, con la particularidad de que el área social debía tener dimensiones generosas y brindar la posibilidad de adaptación a diferentes usos, ya que se suponía que iba a ser frecuente recibir amigos como huéspedes ocasionales. La cocina debía estar integrada en la zona social y todos los ambientes debían disponer de amplias expansiones al aire libre.
El lugar donde se debía levantar la casa es un terreno de 20 x 30 m, poblado de majestuosos pinos marítimos y con un frente muy elevado respecto al nivel de la calle. Esta situación si bien dificultaba el acceso ofrecía la ventaja de quedar muy poco expuesta a las miradas desde la calle al mismo tiempo que proporcionaba vistas del paisaje por encima de las construcciones vecinas.
-
Proyecto: Casa JD.
-
Ubicación: Bosque de Mar Azul, partido de Villa Gesell, provincia de Buenos Aires, Argentina.
-
Autores: BAK Arquitectos.
-
Arquitectos: María Victoria Besonías, Luciano Kruk.
-
Colaborador: arq. Leandro Pomies.
-
Uso: Vivienda de veraneo.
-
Superficie del terreno: 600 m2.
-
Superficie construida: 149 m2.
-
Año de construcción: 2009.
-
Fotografías: Gustavo Sosa Pinilla (www.sosapinilla.com.ar/)


























3 Comments
es increíble, la vista hacia el bosque es encantador… muy buen diseño
nice =)