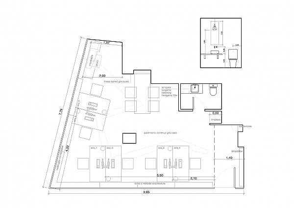
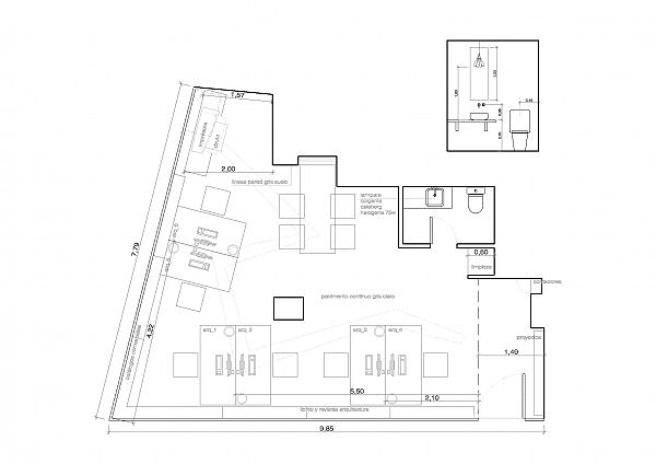
Y junto a este sobrio interiorismo, una pequeña concesión a la imaginación en el área más privada: el baño se ha pintado de color oscuro, y las paredes se han “decorado” con líneas inspiradas en las cotas iniciales del propio plano. El lavabo, el modelo Urban Barcelona de Roca, representa los edificios más emblemáticos de la ciudad. Y la lámpara, una reinterpretación en verde de la famosa Campari de Ingo Maurer, se ha convertido ahora en la Carslberg de Dom Arquitectura.
Este reportaje ha sido elaborado por Gracia Cardona, cuyo magazine on-line diarioDESIGN os recomiendo desde Interiores Minimalistas



















Leave A Reply