
Cada uno de ellos ha sido proyectado para que tuvieran una personalidad propia: el de la entrada, duro y austero con su pavimento cerámico en tono oscuro; el que acompaña al salón comedor, con sus paredes blancas que contrastan con el intenso verde del césped cuando recibe directamente la luz del sol; el del dormitorio, especialmente agradable con su césped y su árbol solitario… Pero con césped, cerámica o madera, se convierten en la antesala de sus correspondientes estancias.

Sobre Baqueratta Architectural Design Office:
Baqueratta Architectural Design Office es un estudio de arquitectura japonés con sede en Tokio, fundado por Yoshiyuki Moriyama en 1997. Su trabajo se centra principalmente en proyectos residenciales unifamiliares de línea minimalista.
- Proyecto: T House.
- Localización: Prefectura de Tochigi (Japón).
- Arquitectos: Baqueratta Architectural Design Office (Yoshiyuki Moriyama).
- Superficie: 500 m2.
- Fotografías: Katsuhisa Kida Photography
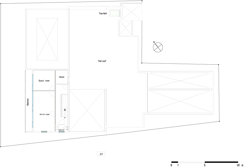
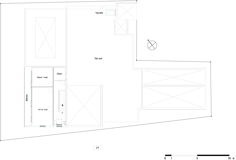
Planimetría:

















Leave A Reply