
Para mantener esta percepción global y llevar a cabo la diferenciación de espacios, se han utilizado cortinas y paneles deslizantes. Las diferentes áreas de la vivienda se pueden separar o conectar unas con otras según las necesidades de cada momento.



Ficha técnica:
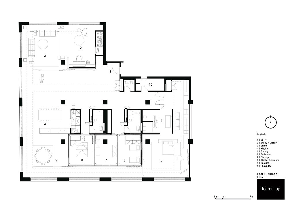
- Proyecto: Loft Tribeca.
- Ubicación: Nueva York (EE.UU.)
- Año: 2009.
- Arquitectos: Fearon Hay Architects.
- Colaboradora: Penny Hay (Diseño interior).
- Superficie construida: 550 m2.
- Fotografías: Richard Powers.
- Mesa de comedor y sillas: BDDW.
- Isla de cocina: diseño de Fearon Hay Architects (estructura de acero con encimera de granito).
- Electrodomésticos: Miele y Gaggenau.
- Sofás zona de estar: Christian Liaigre.
- Mesita auxiliar zona de estar: BDDW.
- Lámparas de pie zona de estar: Christian Liaigre.
- Banco zona de estar: diseño de Fearon Hay Architects (acero ennegrecido).
- Grifería cuarto de baño: Minimal de Boffi.
- Bañera exenta: diseño de Fearon Hay Architects (basalto).
- Toallero: diseño de Fearon Hay Architects (acero inoxidable).
- Dormitorio principal y cabecero: BDDW.
- Habitación de invitados: diseño de Fearon Hay Architects (acero ennegrecido).
- Lámparas de pie: Christian Liaigre.
- Lámparas de vidrio soplado: Fearon Hay en colaboración con Katie Brown.
- Cortinas: Fearon Hay en colaboración con Michael Tavano (Tejidos Dominic Kieffer).
- Alfombras: Christian Liaigre.
Planimetría:
Sobre Hearon Fay Architects:
Fearon Hay Architects se creó en 1998 de la mano de Jeff Fearon & Tim Hay. El estudio lleva el diseño de sus proyectos a su máxima expresión adaptándolos a todo tipo de medios ya sean urbanos, rurales, alpinos, costeros… En cada uno de los proyectos que realizan, la vivienda convive con su entorno. El estudio ubicado en Auckland (Nueva Zelanda) trabaja en este país, Australia y otras partes del mundo.























Leave A Reply