
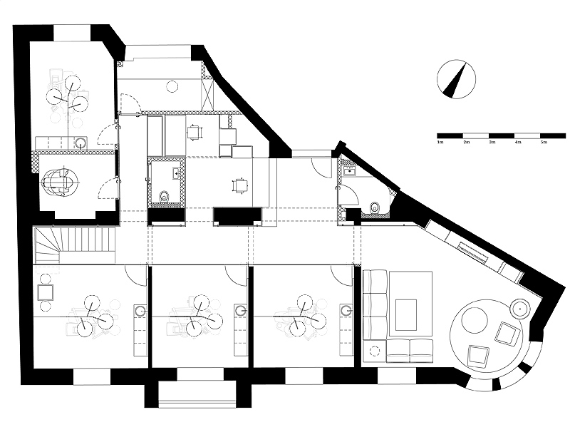
Para la nueva vida laboral que se iba a desarrollar en la antigua vivienda, ha sido necesario reorganizar completamente la distribución. Así, en lo que era el vestíbulo se han ubicado, en una misma unidad, la recepción y un aseo para el uso del personal de la clínica, mientras que a la izquierda de la puerta de entrada se encuentra el lavabo para los clientes. Detrás de esta unidad, y separadas de ésta por un pasillo, se han ubicado una sala de rayos X y una sala de tratamiento. El tramo de pared, que una vez separó el recibidor de una fila de habitaciones, ha sido reemplazado por una serie de unidades en ángulo recto, que contrastan de forma clara con el llamativo techo original.


Al mismo tiempo, la excelente ornamentación de estuco de las habitaciones y la continuidad del pavimento de roble permanece completamente visible desde el pasillo, dando a todo el espacio un carácter fluido.



La hilera de salas de tratamiento llevan a la sala de espera que ocupa el antiguo salón, la estancia más hermosa del apartamento. Aquí, las blancas cortinas sirven para filtrar la luz del día, mientras que la tapicería púrpura de los asientos proporciona un acusado acento de color, consiguiendo un ambiente más propio de un salón doméstico que de una sala de espera de un establecimiento sanitario.



- Proyecto: Clínica dental Weissraum.
- Localización: München (Alemania).
- Año de realización: julio 2010.
- Arquitectos: Ippolito Fleitz Group.
- Equipo: Peter Ippolito, Gunter Fleitz, Sherief Sabet, Axel Knapp, Frank Faßmer, Liang Li.
- Superficie: 208 m2.
- Contratista: Riedl Messe-/Laden- & Objektbau GmbH, Pfaffingen.
- Naming: Skalecki Marketing & Kommunikation, Frankfurt.
- Fotografías: Zooey Braun (www.zooeybraun.de)

















2 Comments