Situada en una de las plantas superiores de uno de los edificios más altos de Hong Kong y con unas impresionantes vistas al puerto Victoria, la residencia Barker es el primero de una serie de proyectos que el estudio de arquitectura davidclovers ha realizado para un gestor de desarrollo de propiedades residenciales en esta ciudad asiática.
El enfoque básico del trabajó ha consistido en perfeccionar las áreas más importantes de la vivienda para mejorarlas. De esta manera, se han revisado tanto los planos horizontales como verticales utilizando paredes sutilmente inclinadas y techos iluminados artificialmente para ampliar el espacio existente.
El trabajo de diseño ha servido para someter cuidadosamente la escala palaciega del amplio apartamento y ha conseguido destacar de forma delicada sus potenciales ocultos.
El vestíbulo se abre a la panorámica de los rascacielos a lo largo del puerto Victoria, combinando suavemente el área del salón y la entrada. Mientras, los muros inclinados antes señalados organizan diversos elementos de la vivienda como muebles, chimenea, escritorio y televisión.

La escultural escalera curva se convierte en un elemento clave dentro del proyecto y no sólo como una pieza funcional, que pone en contacto los dos pisos del apartamento, sino también como una pieza de gran impacto visual. Su particular diseño queda resaltado por la luz de la lámpara de diseño personalizado que pende sobre ella.
La madera de sus escalones se extiende a través del pavimento del resto del piso para convertirse en algunos puntos en zócalo a media altura. Este juego provoca que el espacio se visualice «dividido en dos» al contrastar intesamente la oscura madera con las paredes y los techos blancos.
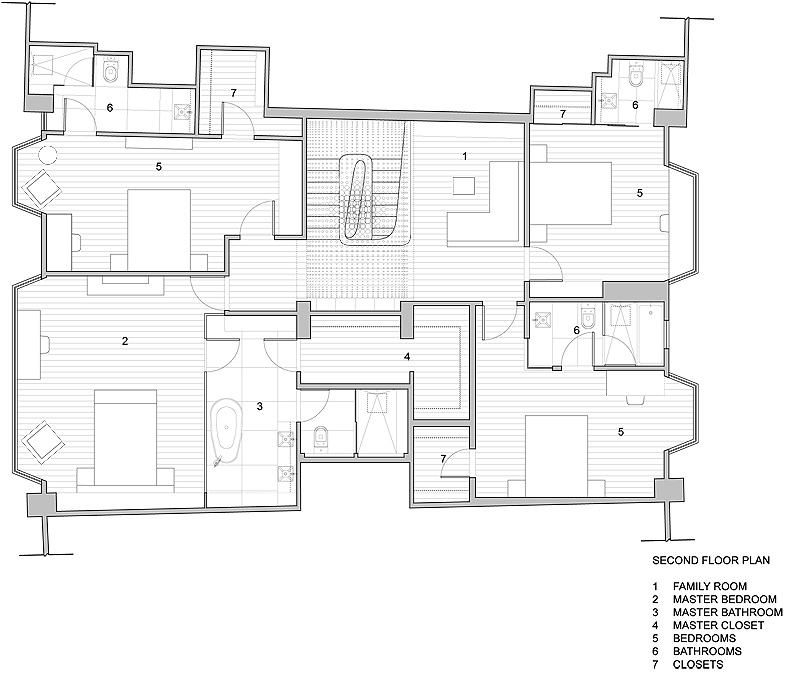
Los dos niveles del apartamento han servido para distribuir las diferentes funciones de manera sencilla y práctica. En la planta baja, se encuentra la zona de acceso, el bar, el salón, el comedor, la cocina y dos aseos, que se corresponden con el ámbito más público. En el segundo piso, al que se accede a través de la escalera-escultura, se han ubicado cuatro dormitorios con sus respectivos baños y una sala de estar.
Ficha técnica:
- Proyecto: Residencia Barker.
- Localización: The Peak (Hong Kong / China).
- Año: 2010.
- Arquitectos: davidclovers.
- Equipo de diseño: David Erdman, Clover Lee, Mui Fuk Man, Jason Dembski, Damien Hannigan, Katrina Lee, Spencer Mak.
- Superficie: 371,60 m2.
- Fotografías 2, 3, 4, 5 y 7: Almond Chu (www.almondchu.com)
Sobre davidclovers:
davidclovers es el estudio que David Erdman y Clover Lee fundaron en el año 2007 y en el que exploran la forma en que la arquitectura puede servir para provocar distintas sensaciones. Aprovechando sus 15 años de experiencia diseñando y realizando proyectos residenciales, exposiciones e interiores comerciales, davidclovers se expandió desde Los Ángeles y Houston hasta Hong Kong en 2009, profundizando su trabajo en la cultura del diseño del sureste de Asia donde han sido reconocidos.
.
A raíz de su reconocimiento, han impartido numerosas conferencias y sus trabajos han sido publicados en la mayoría de las principales revistas del sector. Sus proyectos se han mostrado en diferentes ciudades e instituciones que incluyen el Centro Pompidou (París) y el MoMA (Nueva York) y en las bienales internacionales de Venecia, Hong Kong, Beijing y Corea.
.
Planimetría:
Información e imágenes facilitadas por davidclovers












Leave A Reply