




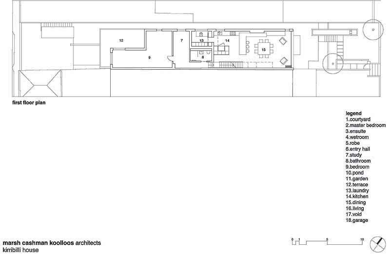
Desde el vestíbulo central se asciende al primer y segundo nivel a través de una nueva escalera abierta de acero y hormigón, que se convierte en un pozo que distribuye la luz que llega desde una claraboya acristalada y con persianas en el techo. Este elemento ha permitido que la luz y la ventilación viajen a través de las tres plantas, pero también ha proporcionado un atractivo y escultórico elemento funcional a la columna vertebral de la casa.

El enfoque del diseño y la construcción fue ingenioso en su estrategia para mantener la estructura exterior existente y esculpirla con aberturas de diferentes tamaños y adiciones para crear algo nuevo y arquitectónico. Las aberturas más grandes traen los colores del exterior y el poder de la vista hacia el interior. Para la rehabilitación de la casa, se utilizaron materiales no caros (gran parte de la estructura existente fue reutilizada y/o reciclada) y formas tradicionales de construcción que se embellecieron a través del color en lugar de con acabados costosos.
Sobre MCK Architects:
MCK es un joven equipo de arquitectos, con sede en Sidney (Australia), ganador de múltiples premios. Especializados en proyectos residenciales y comerciales, bajo una estética que se caracteriza por una proporción clásica y forma geométrica, creen que la buena arquitectura y el respeto por el medio ambiente van de la mano. En los últimos quince años, sus trabajos han sido reconocidos por el Royal Australian Institute of Architects, the Institute of Interior Designers y el Australian Design Council.













Leave A Reply