







El concepto de la nueva vivienda emerge, precisamente, de la observación de esta realidad. Además, tratándose de una casa familiar de grandes dimensiones para lo que eran los estándares locales, se optó por dividir el volumen en dos partes. La mitad de la edificación se «enterró» en el suelo como si formara parte de él. Sobre ella se construyó un segundo volumen, largo y aplanado, en hormigón visto blanco.


A la hora de distribuir las diferentes estancias de la casa, en el volumen inferior se ubicaron las áreas técnicas, las zonas menos utilizadas y las de apoyo. Mientras, en el nivel superior, las áreas sociales se articularon en torno a un patio principal y las habitaciones en torno a otro patio de carácter privado.



Ficha técnica:
-
Proyecto: Casa en Leiria (Portugal).
-
Localización: Quinta da Barreta, Pousos-Leiria (Portugal).
-
Arquitectos: ARX Portugal Arquitectos (José Mateus y Nuno Mateus).
-
Equipo de proyecto: Sofia Raposo, Bruno Gonçalves, Pedro Jesus.
-
Proyecto: 2007-2007.
-
Construcción: 2006-2009.
-
Superficie: 1.010 m2.
-
Ingenierías: SAFRE, Proyectos e Estudos de Engenharia, Lda.
-
Constructor: Manuel Mateus Frazao.
-
Fotografías: FG+SG – Fotografia de Arquitectura (www.ultimasreportagens.com).




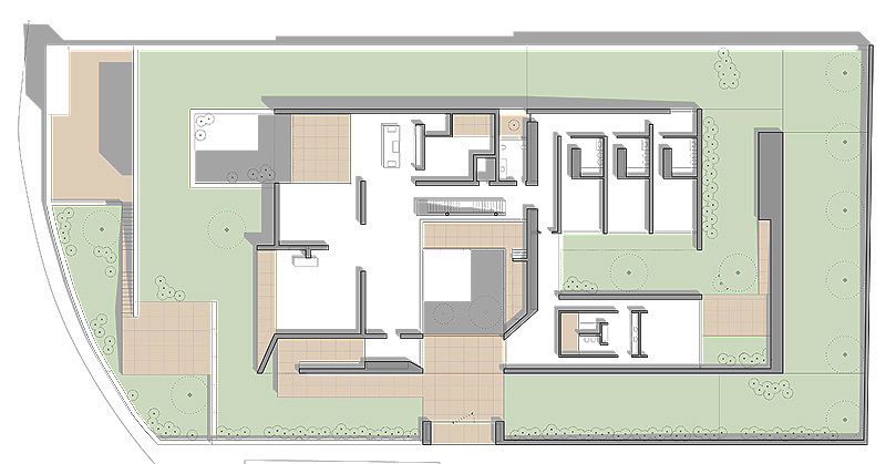
Planimetría:
Planta baja
Primera planta
Planta cubierta
Información e imágenes facilitadas por ARX Portugal Arquitectos
















Leave A Reply