Un microcosmos urbano. Este el concepto con el que trabajó el estudio japonés Ikimono Architects, dirigido por Takashi Fujino, a la hora de levantar esta caja marcada por los llenos y los vacíos de su estructura en hormigón armado. El edificio, que se encuentra en la ciudad de Gunna, en Japón, está compuesto por ocho unidades familiares cuyas relaciones quedan determinadas por la personal edificación en la que viven.

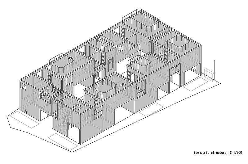
Construida totalmente en hormigón armado, un material conocido por su solidez, crudeza, y presencia industrial, esta «pequeña urbe vecinal» se levanta sobre una parcela de 625 m2, en la que se han construido ocho apartamentos. El edificio de dos plantas estaba destinado a ser entendido como una pequeña ciudad para familias unipersonales, ya que los arquitectos tuvieron en cuenta el alto porcentaje de este tipo de unidad familiar en Japón.







De este escenario dinámico no sólo participan los seres humanos sino también el paso del tiempo y de la estaciones que se manifiesta en el agua de lluvia al caer, las hojas mecidas por el viento o el ruido de la grava al caminar como explican los propios arquitectos.
-
Proyecto: Apartamentos Static Quarry.
-
Localización: Gunma (Japón).
-
Arquitectos: Takashi Fujino / Ikimono Architects.
-
Equipo: Takashi Fujino, Tatsuya Morita, Takahiro Machida.
-
Ingeniero de estructuras: Emiko Sukegawa / Structural Design firm Accurate.
-
Paisajismo: Atsuo Ota / Acid Nature 0220.
-
Superficie del terreno: 624,56 m2.
-
Superficie construida: 329,92 m2.
-
Superficie total: 554,23 m2. Primer piso: 311,85 m2. Segundo piso: 242,38 m2.
-
Estructura: hormigón armado.
-
Diseño: diciembre 2009-agosto 2010.
-
Construcción: septiembre 2010-abril 2011.
-
Fotografías: Takashi Fujino.
Planimetría:
Alzado
Estructura isométrica
Información e imágenes facilitadas por Ikimono Architects






















Leave A Reply