El estudio canadiense naturehumaine [architecture+design] recibió el encargo de proyectar dos casas en una parcela de tan sólo 8,7 m de ancho. Seguir los enfoques tradiciones de planificación habría dado lugar a dos viviendas largas y estrechas, carentes de luz. Así que el arquitecto Stéphane Rasselet, responsable de naturehumaine, optó por una solución alternativa: entrelazar las dos casas en forma de zig-zag para generar aberturas, posibilitar la máxima entrada de luz natural y crear espacios angulares dinámicos.
Las dos unidades, ubicadas en el barrio Point St. Charles de Montreal, se cruzan en la planta superior donde se ha creado un espacio íntimo y se han ubicado el dormitorio principal, un estudio y una terraza para cada una de las unidades. Este diseño se ve reforzado por la forma del sitio, que tiene un ángulo de 75 grados en la intersección entre la calle y el callejón donde se levanta el edificio, e inspiró, todavía más, la creación de formas angulares y líneas de perspectiva oblicua en el interior.
El edificio se compone de una base de ladrillo, que hace referencia a la arquitectura vernácula del barrio, y se remata con un volumen angular revestido en acero dispuesto en voladizo sobre la base. Cada uno de los minimalistas interiores cuenta con un espacio de doble altura con una plataforma suspendida de madera. La escalera, envuelta por un barandilla de rejilla negra, asciende hasta la habitación principal donde la luz natural baña un rincón de lectura.
_______________________________________________________________________________________
Las imágenes:
_______________________________________________________________________________________
Ficha técnica:
- Proyecto: Dúplex de nueva construcción.
- Localización: Montreal (Canadá).
- Año: 2013.
- Arquitectos: Naturehumaine [architecture+design]
- Superficies: Unidad A ( 149,6 m2) y Unidad B (141,7 m2).
- Fotografías: Adrien Williams (www.adrienwilliams.com)
_______________________________________________________________________________________
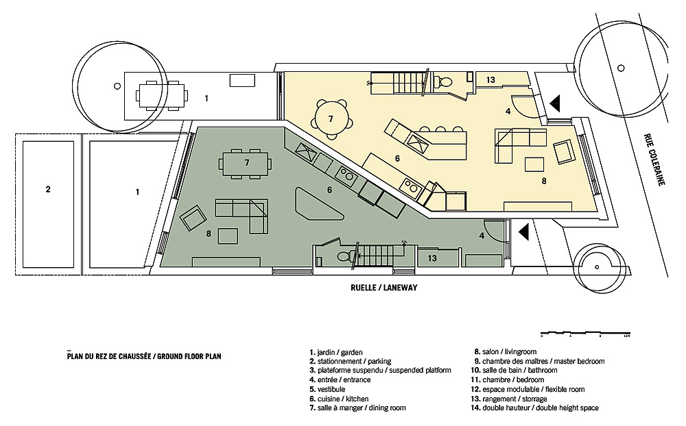
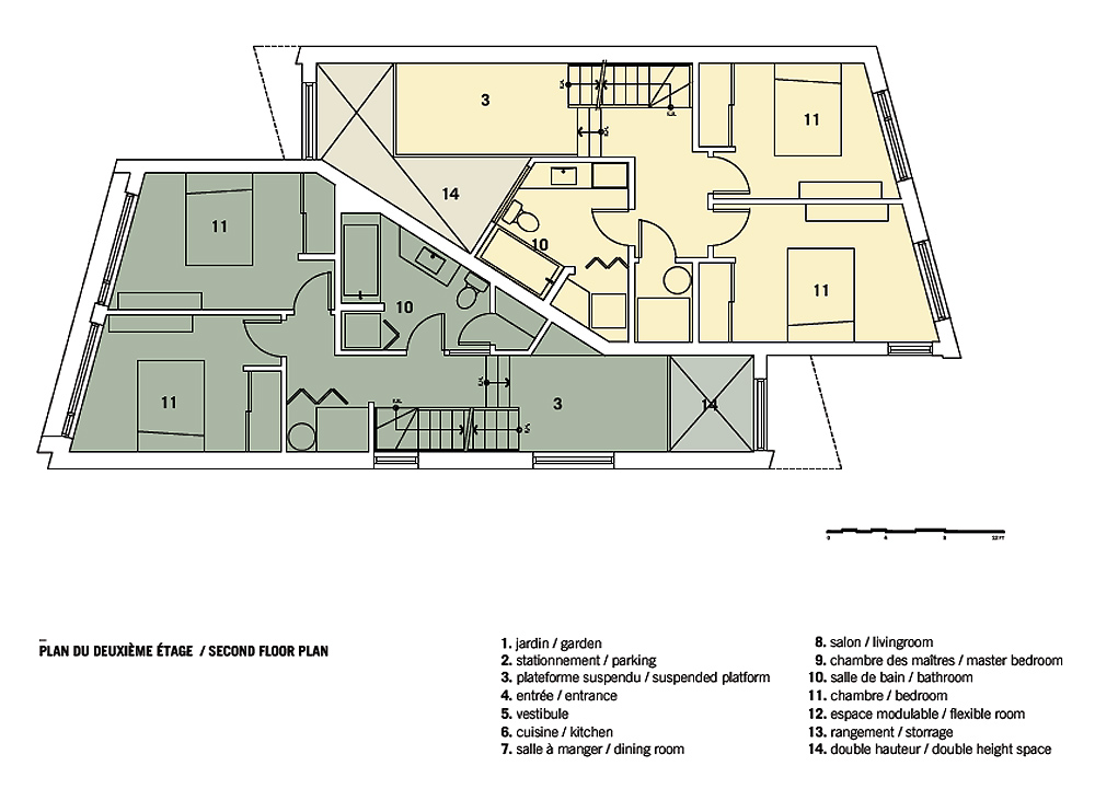
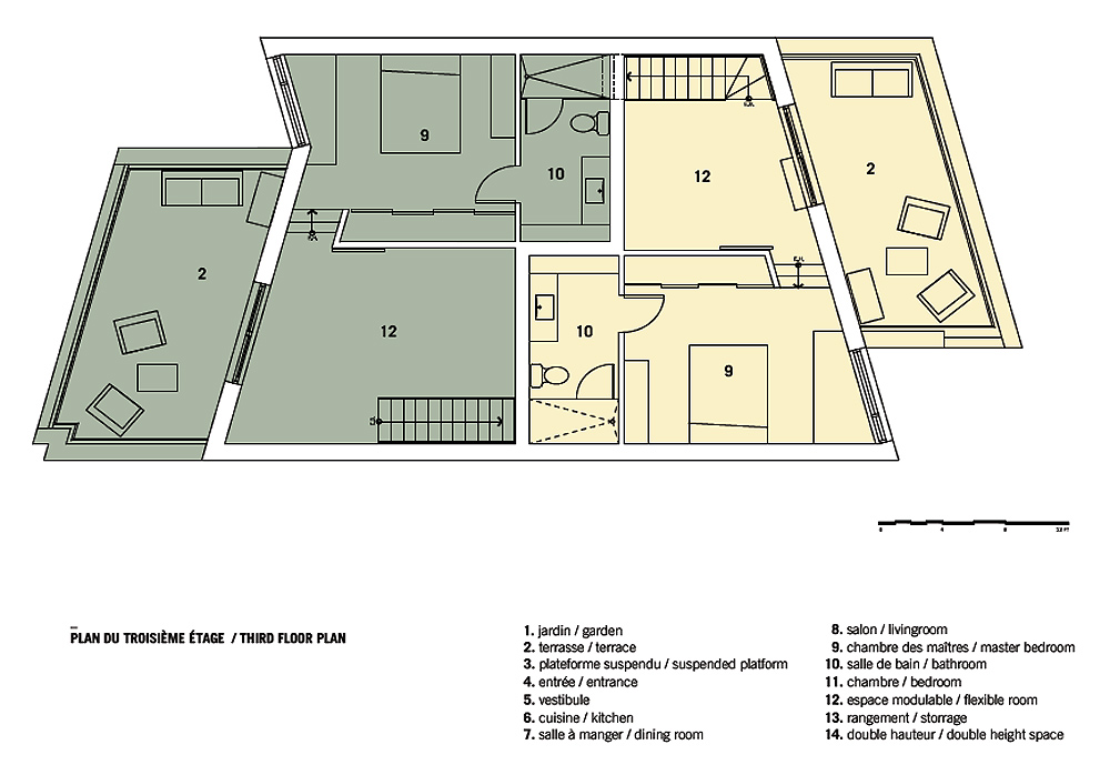
Planimetría:
Planta baja
Primera planta
_______________________________________________________________________________________
Diagramas:
_______________________________________________________________________________________
Sobre naturehumaine:
Naturehumaine [architecture+design] es un estudio de arquitectura y diseño canadiense, fundado por Stéphane Rasselet (en la imagen) y Marc-André Plasse, que ya no se encuentra en el despacho, cuyos proyectos se desarrollan en los sectores residencial, comercial y cultural.
Su filosofia, como ellos mismos señalan, es “poner al ser humano en el centro de nuestras preocupaciones y crear ambientes inspiradores y dinámicos”.
_______________________________________________________________________________________
Información e imágenes facilitadas por Naturehumaine [architecture+design]




























Leave A Reply