
DES TORRENT:
Ubicada muy cerca de Santanyí, en el sureste de la isla de Mallorca (España), Des Torrent es una exclusiva vivienda de obra nueva, diseñada por el equipo de Angel Martin Studio y reflejo de su filosofía de trabajo: construir con intención, diseñar con precisión y dejar que los materiales hablen por sí mismos. En ella, cada uno de sus espacios ha sido elaborado a medida y el uso de materiales nobles y locales crea una atmósfera acogedora, alejada de tendencias temporales.
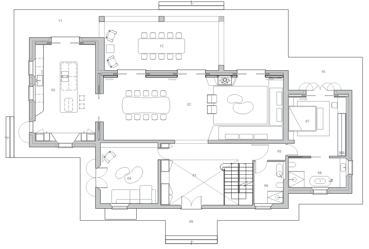
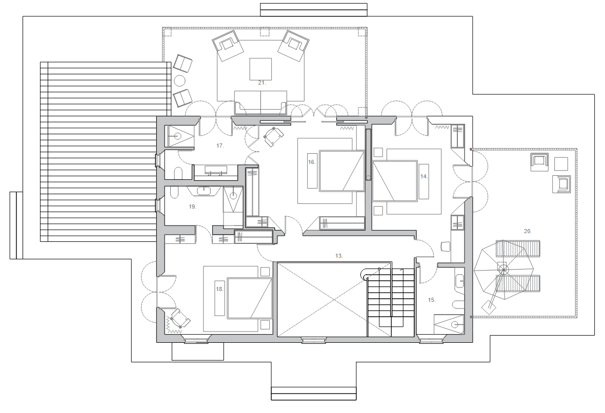
Situada en una parcela de más de 18.000 m², la casa de 500 m², que se encuentra en venta, cuenta con tres plantas que acogen cinco habitaciones, dos salones, ocho baños, una vinoteca y un spa, donde el diseño y los detalles han sido cuidadosamente pensados y concebidos para un cliente que busca una arquitectura de autor. El objetivo del proyecto fue concebir una vivienda singular, integrada en el entorno, cálida y honesta, que ofreciera una experiencia completa llave en mano
Orden espacial e interiores serenos
El diseño de Des Torrent destaca por su orden espacial, la serenidad de sus interiores y una ejecución artesanal minuciosa, con piezas creadas expresamente para el proyecto por profesionales locales como la isla de la cocina tallada a mano, la escalera central de piedra con la barandilla reinterpretada, las chimeneas personalizadas, los umbrales de madera maciza y el mobiliario. La doble altura en zonas clave -como el vestíbulo de entrada o la escalera central- refuerza la sensación de amplitud y fluidez.
La arquitectura tradicional de la isla sirve como punto de partida para una reinterpretación elegante y sobria. El estilo predominante es un rústico contemporáneo mallorquín, donde se respira la calidez de lo hecho a mano. Los materiales utilizados refuerzan esta intención: mármol Travertino, suelos continuos naturales a base de polímeros, madera maciza, textiles ecológicos y tratamientos artesanales. Los acabados, como los cantos rotos a martillo en baños y chimeneas, dan carácter a los espacios y subrayan la autenticidad del conjunto.
Mobiliario a medida fabricado artesanalmente
Todo el mobiliario fue diseñado a medida por Ángel Martín Studio, con especial atención al detalle y la fabricación artesanal. La cocina cuenta con una imponente isla escultórica de mármol nacional combinada con Travertino, mientras que los armarios reinterpretan el diseño mallorquín tradicional con madera de roble y tejidos naturales. Las camas, lavabos, chimeneas y hasta los tiradores de los armarios fueron creados especialmente para la vivienda. Asimismo, la decoración se apoya en cerámicas locales, textiles neutros y piezas únicas de artistas mallorquines, que aportan serenidad y autenticidad.
Cada uno sus rincones ha sido creado para transmitir calma y belleza natural. El diseño busca una conexión profunda con el entorno, potenciando el silencio, la textura y la luz mediterránea. “Queríamos crear un espacio que no solo se habitara, sino que se sintiera profundamente. Un hogar que hablara de la tierra, del tiempo, de lo auténtico. Que cada textura y cada silencio contaran su propia historia”, concluye Angel Martin, director del proyecto.
LAS IMÁGENES DE SILVIA FOZ:







FICHA TÉCNICA:
- Proyecto: Des Torrent.
- Ubicación: Santanyí, Mallorca (España).
- Superficie solar: 18.000 m².
- Superficie construida: 500 m² (434 m² útiles).
- Completado: 2025.
- Autor: Angel Martin Studio (arquitectura, diseño y dirección del proyecto).
- Estilismo y decoración: Tamara Neilsen.
- Arquitecto firmante: Miquel Mascarò.
- Construcción: Consfutur.
- Fotografías: Silvia Foz.
PLANIMETRÍA:



SOBRE ANGEL MARTIN STUDIO:

Angel Martin Studio es una firma de diseño interior, con sede en Palma de Mallorca y presencia en Madrid (España), donde se realizan proyectos diversos: arquitectura y diseño de interiores, mobiliario y piezas a medida, iluminación y ambientación espacial, y consultoría de arte. Ademas, a través de su división AM | Signature Partners, ofrece un servicio llave en mano dirigido a clientes privados e inversores que buscan excelencia arquitectónica, integridad en el diseño y tranquilidad.
En el proceso de trabajo del estudio, destaca la recuperación de elementos arquitectónicos, la organización y el buen hacer, además de la afinidad y cercanía con sus clientes. Su estilo combina minimalismo cálido con una mirada mediterránea y nórdica, siempre diseñando espacios únicos y personales que reflejan la identidad de quienes los habitan.
El estudio trabaja con un enfoque claro: eliminar lo innecesario para quedarnos con la esencia, aportando orden, precisión y ligereza a cada espacio. Utilizan materiales naturales y procesos respetuosos con el entorno para crear ambientes saludables que conectan con la serenidad de la naturaleza.
«Abogamos por lo natural y atemporal, haciendo hincapié en la producción local y sostenible. Nos atraen los elementos sencillos y no tan sofisticados aunque combinemos la tecnología con la artesanía. Nuestro estilo se basa en el trabajo con materiales naturales y objetos únicos, respetando sus características y aplicando la luz como elemento esencial de los espacios», explican en su web.
ANGEL MARTIN EN INTERIORES MINIMALISTAS
Fuente: Boutique de Comunicación y en la web de Angel Martin Studio







Leave A Reply