
CASA NM:
Proyectada por el estudio CFDS Architecture, la Casa NM se presenta como una expresión serena de arquitectura portuguesa contemporánea y minimalista. La vivienda, ubicada en la ciudad de Penafiel, en el norte de Portugal, se integra con sensibilidad en el terreno inclinado, estableciendo un equilibrio natural entre geometría, materia y paisaje.
El edificio combina hormigón visto, piedra natural y madera, materiales que dialogan entre sí para crear una presencia sólida y cálida a la vez. La composición, marcada por líneas puras y volúmenes horizontales, se abre al exterior mediante amplios ventanales que enmarcan el paisaje, capturando la luz cambiante del día y extendiendo la experiencia arquitectónica hacia el entorno.
Arquitectura contenida y esencial
Diseñada por el arquitecto Daniel Sousa, la Casa NM refleja la filosofía del estudio: una arquitectura contenida, esencial, capaz de armonizar con su contexto sin renunciar a una estética contemporánea y funcional. Cada elemento ha sido cuidadosamente pensado, desde la orientación de los espacios hasta la relación entre materiales, buscando una continuidad visual y sensorial entre el interior y el exterior.
Una paleta neutra
La construcción, ejecutada por Fielnorte – Engenharia e Construção, y el diseño interior, a cargo de PURO by Catarina Ferreir, dieron forma a una visión conjunta donde estructura, mobiliario y atmósfera se complementan. El interior se caracteriza por una paleta neutra, maderas claras y texturas naturales, que aportan serenidad y enfatizan la luz en un ambiente minimalista. La funcionalidad se combina con una estética depurada, logrando ambientes acogedores y equilibrados. En consonancia, se seleccionaron materiales de alta calidad de fabricantes como Banema y Porcelanosa Grupo para garantizar tanto su durabilidad como su atractivo estético.
Calma y permanencia que trascienden lo material
Con sus 300 m² distribuidos en dos niveles, la vivienda ofrece una lectura clara del espacio. Las transiciones entre luz y sombra, el juego de transparencias y la presencia honesta de los materiales definen una atmósfera silenciosa, donde el tiempo parece ralentizarse. La Casa NM es, ante todo, un ejercicio de precisión y sensibilidad. Una arquitectura que no busca imponerse, sino dialogar con el territorio, transmitiendo una sensación de calma y permanencia que trasciende lo material.
LAS IMÁGENES DE PEDRO MACHADO:






















FICHA TÉCNICA:
- Proyecto: Casa NM.
- Ubicación: Penafiel, Porto (Portugal).
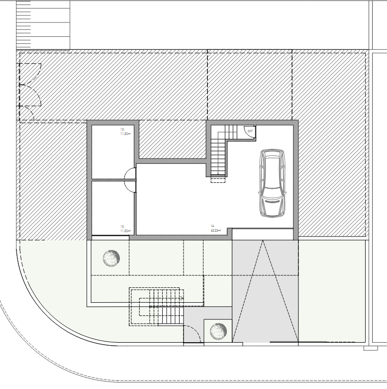
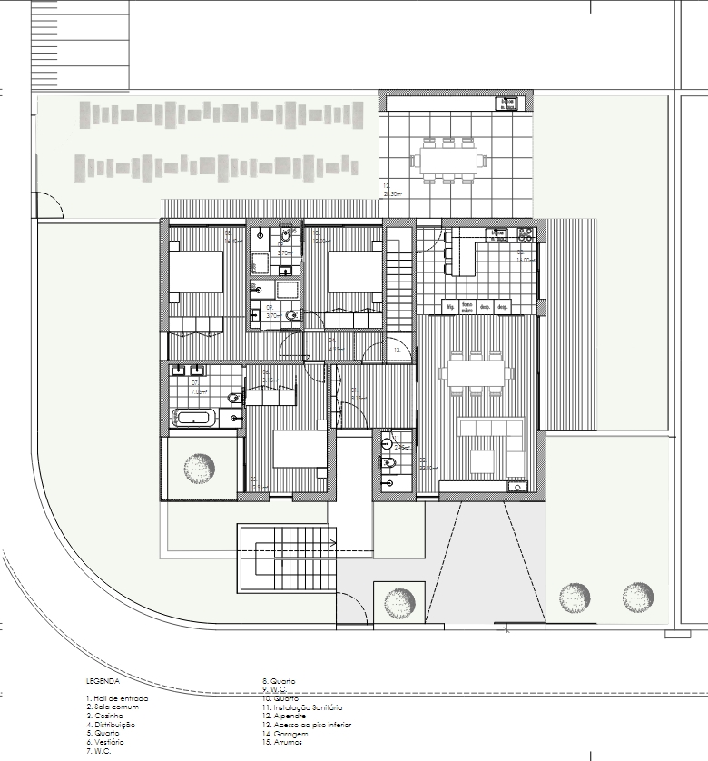
- Superficie: 300 m².
- Completado: 2024.
- Autor: CFDS Architecture.
- Arquitecto responsable: Daniel Sousa.
- Construcción: Fielnorte – Engenharia e Construção.
- Diseño de interiores: Puro – by Catarina Ferreira.
- Proveedores: Banema y PORCELANOSA.
- Fotografías: Pedro Machado. PEDRO MACHADO EN INTERIORES MINIMALISTAS
PLANIMETRÍA:



SOBRE CFDS ARCHITECTURE:
CFDS Architecture es un estudio de arquitectura y diseño con sedes en Penafiel y Oporto (Portugal), reconocido por su meticulosa atención al detalle y enfoque personalizado. «Nuestro objetivo es crear entornos que no solo satisfagan, sino que también deleiten a nuestros clientes, ofreciendo comodidad, belleza y funcionalidad en cada espacio». Asimismo, el deseo de diseñar y crear ambientes únicos con identidad propia llevó al estudio a desarrollar mobiliario a medida. En el ámbito de la ingeniería, la firma apuesta por la innovación y la excelencia, brindando soluciones personalizadas que combinan eficiencia técnica y creatividad, adaptadas a las necesidades específicas de cada proyecto. CFDS Architecture cuenta además con su propia constructora.
SOBRE PURO BY CATARINA FERREIRA:
La firma portuguesa PURO Home Concept, fundada por la arquitecta Catarina Ferreira, cuenta con un equipo creativo y multidisciplinar que ofrece a sus clientes un servicio exclusivo y personalizado, adaptado a sus necesidades. El interés por diseñar y crear espacios distintivos, con una identidad propia, les llevó al desarrollo de mobiliario a medida y a la evolución hacia la creación de ambientes armoniosos y coherentes. En el estudio, cada proyecto se concibe como una obra única, adaptada a la imagen y expectativas de cada cliente. El objetivo es dejar una huella reconocible en el ámbito de la arquitectura de interiores, destacando por una identidad clara y coherente como estudio. La atención al detalle, las texturas, los colores y los materiales son los elementos que definen y diferencian cada proyecto.
Fuente: Pedro Machado







Leave A Reply