
REFORMA INTEGRAL:
El estudio de arquitectura Metronom llevó a cabo la reforma integral de este piso de 110 m² con el objetivo de optimizar y despejar el espacio, logrando así mayor dinamismo, transparencia y una relación fluida con el exterior. Para ello, se diseñó una secuencia transversal de espacios comunes que conectan ambas fachadas y organizan el resto del programa de manera coherente.
La vivienda ocupa la planta principal de un edificio de manzana construido en los años treinta en el Eixample Izquierdo de Barcelona (España). Originalmente concebido como planta baja más dos pisos, el inmueble sufrió una transformación significativa en los años setenta, cuando se añadieron seis plantas adicionales. Esta ampliación vertical condicionó el diseño actual, ya que los muros estructurales del piso soportan ahora una carga excesiva y desproporcionada. Por esta razón, la intervención se llevó a cabo sin modificar la estructura existente.
Una vivienda clásica del Eixample barcelonés
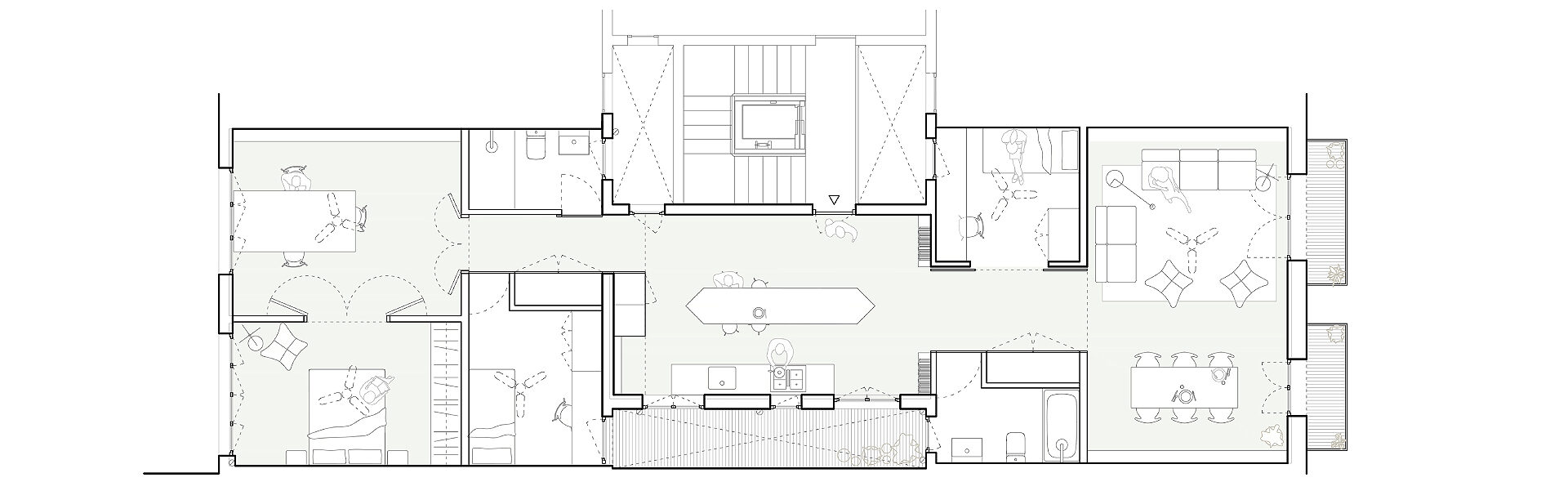
El espacio existente respondía al prototípico esquema de las viviendas del Eixample barcelonés, definido por una doble orientación y una configuración estrecha y alargada estructurada en torno a un pasillo central. En la reforma, se eliminaron todos los tabiques no estructurales en la zona central del piso, creando un umbral generoso que actúa como transición entre las dos orientaciones de la vivienda. Esta intervención permite maximizar las conexiones visuales y espaciales entre ambas fachadas, potenciando la luz natural y la ventilación cruzada.
Entre la cocina y las zonas comunes -el salón con vistas a la calle y el estudio orientado al patio interior- se introdujeron “zonas de amortiguamiento”, que alojan los dormitorios pequeños y dos baños. En estas áreas, las puertas originales de madera se restauraron cuidadosamente y se reposicionaron, creando “fachadas internas” que aportan profundidad e identidad a los espacios de circulación.
La cocina, un espacio social
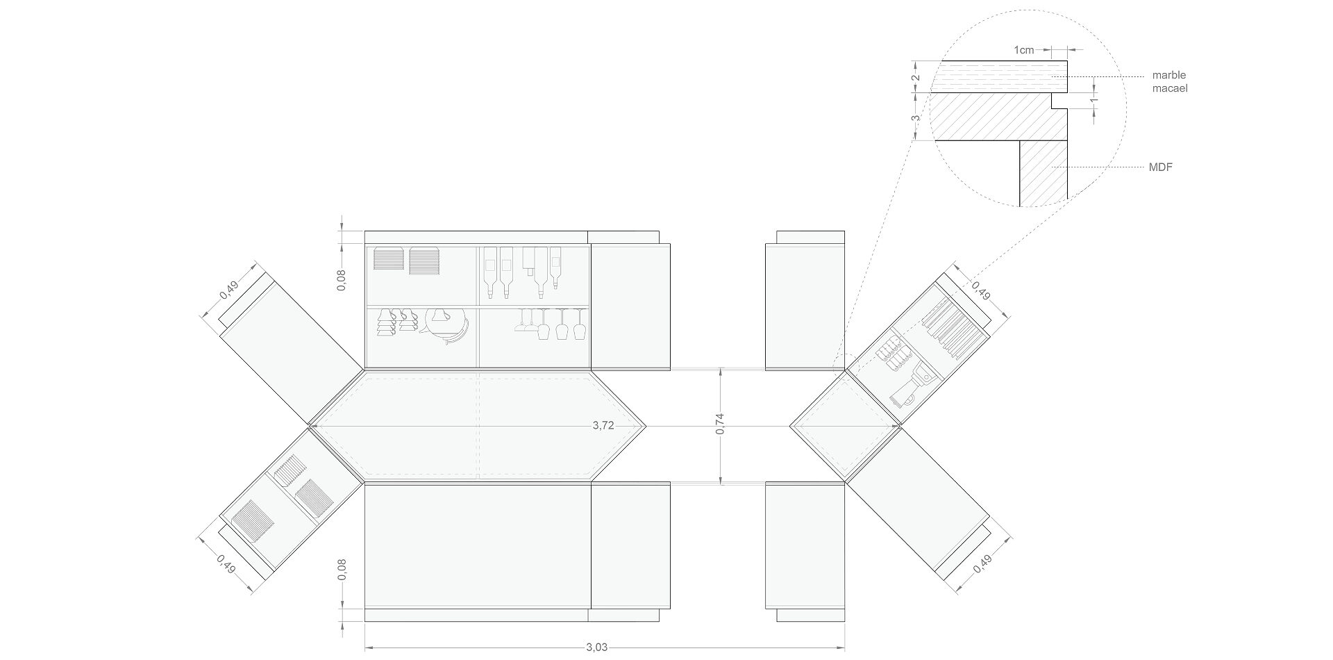
La cocina, concebida como un espacio social, se situó en el corazón de la planta y se articuló alrededor de una isla a medida, que se convierte en un elemento dinámico y escultórico, invitando a la reunión y a la interacción. Los electrodomésticos y el mobiliario de almacenamiento se integraron detrás de paneles continuos, generando una atmósfera limpia, neutra y elegante.
Un gesto clave del proyecto fue descubrir y exponer la estructura original del techo abovedado de ladrillo y las vigas de acero, que hasta entonces habían permanecido ocultas. Esta decisión, junto con los nuevos refuerzos visibles introducidos durante la redistribución, sirvió para aportar una textura cruda y carácter espacial al hogar.
Preservar y reorganizar el suelo de mosaico hidráulico
En consonancia con este enfoque de recuperación y reutilización, también se preservaron los azulejos hidráulicos originales, pero se reorganizaron de manera diferente. “La disposición previa, definida por un patrón algo recargado, se desmontó y se recompuso en una geometría más abstracta y contemporánea. Esta estrategia conserva la memoria del material al mismo tiempo que ofrece una expresión renovada y coherente”, explican los autores del proyecto de renovación.
En términos cromáticos, los tonos de los azulejos del baño se eligieron para armonizar con los matices cálidos del suelo original. Las paredes, la carpintería y la isla siguen una paleta de grises y marrones, que se extiende hacia las zonas intermedias de transición. Esta continuidad cromática crea un ritmo de compresión y relajación a lo largo de la secuencia de habitaciones, configurando una experiencia espacial tranquila y cohesionada.
Mejorar la eficiencia energética
Todas las ventanas se equiparon con vidrio de alta eficiencia, y tanto las fachadas exteriores como las del patio se aislaron térmicamente, reduciendo así la demanda energética del piso y garantizando el confort en todas las estancias.
LAS IMÁGENES DE SIMONE MARCOLIN:









FICHA TÉCNICA:
- Proyecto: reforma de vivienda.
- Ubicación: Barcelona (España).
- Superficie: 115 m².
- Completado: junio 2025.
- Autor: Metronom.
- Equipo de diseño: Albert Casas, Maria Amat, Arnau Espoma y Ludovica di Lerni.
- Contratista: Triflex.
- Fotografías: Simone Marcolin. SIMONE MARCOLIN EN INTERIORES MINIMALISTAS
PLANIMETRÍA:




SOBRE METRONOM:
Metronom es un estudio de arquitectura con sede en Barcelona (España), dedicado al desarrollo de proyectos espaciales con el objetivo de ofrecer diseños duraderos y atemporales con un toque contemporáneo e innovador. Cada proyecto se aborda de manera única, considerando el contexto físico, así como las condiciones ambientales, sociales y económicas específicas de cada situación, con el objetivo de crear soluciones arquitectónicas coherentes y significativas.
El estudio fue fundado por Maria Amat y Albert Casas, quienes se conocieron durante sus estudios en la Escuela Técnica Superior de Arquitectura de Barcelona (ETSAB-UPC) y se convirtieron en socios en 2020. Su oficina, ubicada en el barrio de Sant Antoni, se caracteriza por una gran mesa cuadrada con una bandeja giratoria en el centro, utilizada por el equipo para compartir, recopilar y clasificar ideas en el desarrollo de sus proyectos.
Metronom trabaja tanto para clientes públicos como privados, combinando su actividad profesional con la docencia en universidades y talleres, reflejando un compromiso con la práctica arquitectónica y la formación de nuevas generaciones de arquitectos.
Fuente: Metronom






Leave A Reply