
VILLA LAVAN:
Villa Lavan, situada en La Moraleja, Madrid (España), es una propuesta arquitectónica que combina funcionalidad, elegancia y sensibilidad hacia el entorno. Concebida por como un hogar transgeneracional, la vivienda se despliega en dos cuerpos ligeramente girados que se relacionan con el paisaje circundante y optimizan la luz, la sombra y la ventilación natural. Cada decisión espacial y material está pensada para ofrecer confort, identidad y durabilidad, creando un legado arquitectónico que permanecerá vigente a lo largo del tiempo.
Objetivo: maximizar las vistas
El proyecto, cuyo diseño interior se debe a Alfaro Hofmann, se estructura a partir de dos volúmenes de una planta, dispuestos con una ligera torsión que responde a tres objetivos principales. Primero, maximizar las vistas: la planta baja, destinada a las zonas de día, se abre al jardín, mientras que la planta superior, donde se ubican los dormitorios, se orienta hacia un lago cercano, visible solo desde esa altura. Segundo, generar espacios exteriores protegidos del sol madrileño. La inclinación de los volúmenes crea terrazas cubiertas que equilibran luz y sombra. Y tercero, dotar a la vivienda de una identidad propia, gracias a las sombras triangulares que se proyectan dinámicamente a lo largo del día.
Favorecer la ventilación cruzada
Cada cuerpo combina solidez y apertura: dos de sus lados son estructuralmente sólidos, mientras que los otros dos se abren completamente, favoreciendo la ventilación cruzada norte-sur y la orientación. El núcleo de comunicaciones, dispuesto transversalmente, organiza los espacios internos y articula la relación con la vivienda vecina en una cota superior. Este gesto permite que la parte posterior, más pública, se beneficie de privacidad y fluidez simultáneamente.
El juego de giros se refleja también en los detalles: un lucernario circular en la planta superior, ejecutado en una sola pieza, introduce luz cenital, mientras que el sótano alberga garaje y zonas de bienestar, iluminadas naturalmente a través de otro lucernario conforme a la normativa local.
Un proyecto pensado desde la transgeneracionalidad
Todo el proyecto está pensado desde la transgeneracionalidad: su estructura clara y perdurable permite que cada generación de habitantes interprete y adapte los espacios según sus necesidades, manteniendo la esencia del diseño original. En Villa Lavan, la elección de materiales naturales y duraderos refuerza la idea de permanencia frente a la obsolescencia. La vivienda no solo busca ofrecer confort inmediato, sino también un valor que crece con el tiempo: un espacio cuidado, apreciado y respetado, que invita a perdurar. Es un hogar que, como los buenos diseños, se transforma con la vida sin perder nunca su identidad, recordándonos que lo que se cuida, permanece.
LAS IMÁGENES DE FERNANDO GUERRA:














FICHA TÉCNICA:
- Proyecto: Villa Lavan.
- Ubicación: La Moraleja (Madrid / España).
- Superficie parcela: 2.877 m².
- Superficie construida: 1.034 m².
- Completado: 2024.
- Arquitectura: Fran Silvestre Arquitecto.
- Equipo de proyecto: Fran Silvestre y Carlos Lucas, arquitectos de proyecto; y María Masià y Estefanía Soriano, arquitectas colaboradoras.
- Diseño interior: Alfaro Hofmann.
- Arquitectos técnicos: Jorge Carrión Ponce y José Miguel Cota San Andrés.
- Estructurista: Estructuras Singulares.
- Constructor: Project Work.
Instalaciones:
- Climatización: aerotermia, suelo radiante y fancoil.
- Mecanismos: Bticino.
- Iluminación: foseados en falso techo y luminaria lineal LED.
Pavimentos y revestimientos:
- Pavimentos interior: mármol beige Hermitage acabado apomazado.
- Pavimentos interior: mármol beige Hermitage acabado arenado.
- Revestimientos: Sate de Baumit.
Carpintería y cerrajería:
- Carpintería interior: Ebanistería Kineby.
- Puertas interiores: Sensem.
- Carpintería exterior: IMG Windows.
Mobiliario:
- Mesa de comedor: Extra (Andreu World).
- Silla de comedor: Nuez (Andreu World).
- Chaise longue: Flavio modelo 619-22 sin leeds-4901 (CasaDesús).
- Sofá: Flavio modelo 619-16 sin brazos leeds-4901 (CasaDesús).
- Chaise longue: Lemans modelo 644-43 Darwin-7159 (CasaDesús).
- Chaise longue: Lemans modelo 644-40 Darwin-7159 (CasaDesús).
- Puf: modelo 619-24 (CasaDesús).
- Cojín con platabanda y pluma: modelo CA-P50 (CasaDesús).
- Sillón medio: modelo 638-MC Darwin-7159 (CasaDesús).
- Tumbonas: Trenza TU0704 (Andreu World).
- Sofás: Siesta (Andreu World).
- Mesa auxiliar: Siesta ME4753 (Andreu World).
- Escultura: Afrodita de Fran Silvestre Arquitectos.
Cocina:
- Diseño mobiliario: Estudio 61.
- Fabricante mobiliario: Arredo.
Baños:
- Inodoro suspendido: Inspira Round beige (Roca).
- Grifería: Link Edition (Rovira).
- Mobiliario: hecho a medida.
Fotografías: Fernando Guerra. FERNANDO GUERRA EN INTERIORES MINIMALISTAS
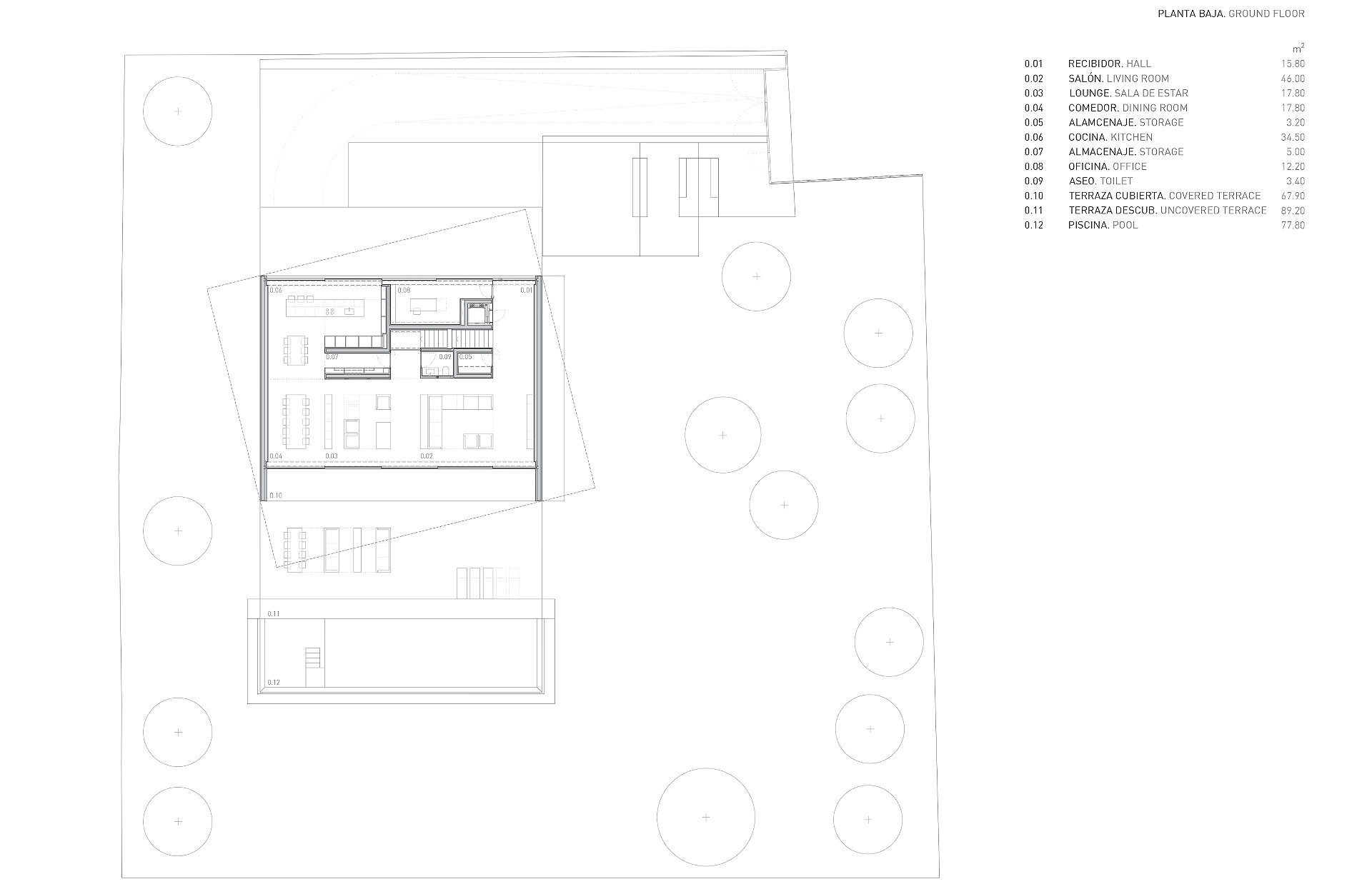
PLANIMETRÍA:







LA MAQUETA:



SOBRE FRAN SILVESTRE ARQUITECTOS:

El estudio Fran Silvestre Arquitectos fue fundado en 2005 y tiene su sede en un antiguo taller del escultor Andreu Alfaro en Valencia (España), un espacio de 7.000 m² donde un equipo multidisciplinar de más de 50 profesionales trabaja en proyectos residenciales, culturales, corporativos y públicos a nivel internacional.
A lo largo de su carrera, el arquitecto ha sido reconocido con numerosos premios, incluyendo el de la Fundación Caja de Arquitectos en 2001 y el Premio del Colegio de Arquitectos de la Comunidad Valenciana (COACV) en 2010. En 2012, fue designado embajador de la Arquitectura Española en Estados Unidos por el Ministerio de Cultura y Deporte, y en 2013 recibió el prestigioso Red Dot Design Award.
Su obra ha sido galardonada en múltiples ocasiones, destacando el Build Architectural Award en 2015 en Reino Unido, y el primer premio de la XIII Bienal Española de Arquitectura y Urbanismo (BEAU) en 2016. También ha sido premiado en varias ocasiones por el Ministerio de Economía y Tecnología Alemán, así como en los premios FAD y el iF Design Award. En 2022, recibió la medalla de oro en la categoría de Arquitectura de la Federación Internacional de Arquitectos y Diseñadores.
Fran Silvestre ha sido invitado a presentar su trabajo en conferencias y seminarios en instituciones internacionales, como la AIA de Nueva York y Virginia Tech, y expuesto en museos como el Museu Serralves de Oporto y el MoMA. Su obra ha sido publicada en revistas especializadas y editoriales de renombre, y recientemente, la editorial Rizzoli de Nueva York lanzó una monografía que incluye algunos de sus proyectos más representativos.
Los proyectos de Fran Silvestre Arquitectos se encuentran en diversas partes del mundo, incluyendo China, Estados Unidos, Brasil y España, abarcando tanto obras de pequeña como de gran escala. La arquitectura del estudio está influenciada por la obra de Álvaro Siza y Andreu Alfaro, y se caracteriza por su enfoque en crear entornos que elevan la experiencia cotidiana, como lo describe el crítico David Cohn.
FRAN SILVESTRE ARQUITECTOS EN INTERIORES MINIMALISTAS
SOBRE ALFARO HOFMANN:
El estudio de arquitectura e interiorismo Alfaro Hofmann comienza su actividad en 1982 como complemento a la venta de muebles en su local de la calle del Mar, en Valencia (España). Sus proyectos están dirigidos principalmente al ámbito doméstico y comercial, potenciando el tratamiento integral de la arquitectura, el interiorismo y la imagen gráfica.
En la actualidad, el estudio se encuentra ubicado en la localidad valenciana de Godella, compartiendo instalaciones con la Colección Alfaro Hofmann. Ésta es una entidad privada dedicada a la muestra y divulgación de sus fondos sobre la cultura del objeto cotidiano del siglo XX y, en especial, del electrodoméstico.
El interés de Alfaro Hofmann por el mundo del hogar abarca todas sus dimensiones: desde su evolución estética o aspectos relacionados con la etnología, hasta las últimas tendencias en diseño.
El estudio colabora habitualmente con Fran Silvestre Arquitectos.
ALFARO HOFMANN EN INTERIORES MINIMALISTAS
Fuente: Fran Silvestre Arquitectos



Leave A Reply