
CHIC CAMÉLIA:
En la planta baja de un edificio comercial situado junto a una de las principales avenidas de Shanghái (China), el estudio Atelier d’More diseñó la boutique Chic Camélia, una firma de moda femenina que toma su nombre de la flor de la camelia. El proyecto transformó un local regular y estructurado en un espacio suave y sereno, un refugio interior que contrasta con la uniformidad y la energía de la ciudad. Chic Camélia evoca el temperamento interior de cada mujer, una idea que guía toda la intervención del despacho de Sheng Le y Wang Wei.
Distribución del espacio y relación con el entorno
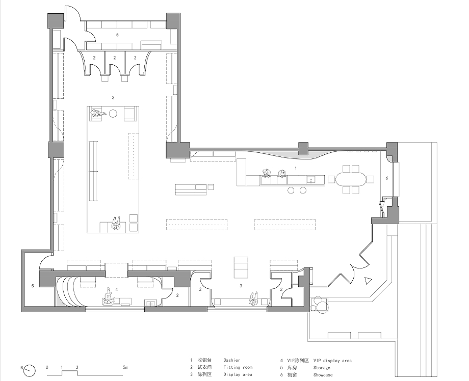
El espacio presenta una planta regular en forma de L, que se eleva casi medio metro en la entrada, con vistas al flujo peatonal. Además de la fachada de vidrio achaflanado conectada a la plataforma de acceso, el espacio cuenta con tres ventanas. La primera, junto a la entrada, actúa como único escaparate hacia la calle, atrayendo la atención de los transeúntes y sugiriendo la calidez del interior. La segunda, orientada hacia una calle interior, se funde con la vegetación que llega hasta el cristal, dejando que la luz de la tarde y la vida exterior inunden el espacio. La tercera, parcialmente oculta tras un muro estructural de ocho metros de longitud, se abre a través de un portal a media altura, filtrando una luz tranquila que conduce la mirada hacia la intimidad de las sombras.
Integración funcional y armonía estructural
El estudio descubrió que bajo la aparente homogeneidad de la retícula de columnas coexistían múltiples elementos heterogéneos. A partir de esa condición, el proyecto buscó integrar funciones y recorridos visuales en armonía con la estructura original, empezando a dar forma al espacio inicial.
La intervención sirvió para reorganizar la plataforma de acceso, suavizando la pendiente original al extender el pavimento de piedra caliza clara desde el interior hasta el inicio de la cubierta exterior. Una tarima de madera compuesta marca una elegante transición con la calle mientras en el extremo más alejado se plantó un árbol de camelia, símbolo de la identidad de la marca.
Un interior de serenidad y equilibrio visual
El nuevo acceso, más gradual y acogedor, abandona su aire distante y se abre con serenidad a los visitantes. Al ascender, se despliega un interior definido por la retícula de columnas, donde la intervención se organiza sobre más de 300 m² distribuidos en tres zonas: frontal, central y posterior. Una fuerza casi invisible parece recorrer el espacio, desde la estructura hacia la luz, guiando la mirada y aportando equilibrio visual.
Para integrar los sistemas de instalaciones vistos del techo, se incorporó un nuevo plano suspendido que recorre el techo con una forma continua y elástica. Este plano mantiene cierta distancia de las tuberías y se curva hacia arriba cerca del escaparate. Una luz esférica parece haber caído sobre su superficie invertida, suspendida entre la recepción y la mesa del salón, aportando un acento escultórico.
Juego de luces y sombras en el recorrido expositivo
Frente a la segunda ventana, la luz roza los probadores simétricos y se proyecta sobre el techo, que parece hundirse bajo el peso de las prendas colgadas. El juego de luces y sombras confiere volumen y baja el centro de gravedad del espacio, marcando el inicio del recorrido expositivo.
En la zona central, el techo se arquea nuevamente sobre la viga principal, como el vientre de un pez. Allí, la luz que atraviesa la puerta en el muro de carga se derrama sobre el suelo y es recogida por el techo abovedado que cubre la entrada a la zona VIP. Al fondo, un probador triple emerge del muro, y el plano se eleva hasta su punto más alto, cerrando el recorrido con un gesto ascendente.
Un paisaje interior que refleja la esencia de Chic Camélia
El nuevo plano envuelve todo el techo y cada deformación señala las distintas áreas y oculta los elementos estructurales, que se perciben solo como corrientes lineales de fuerza. El espacio se simplifica en tres zonas principales -frontal, central y posterior- donde la luz, la materia y el silencio se equilibran en un conjunto de gran sutileza.
En Chic Camélia, Atelier d’More convierte un local comercial de Shanghái en un paisaje interior que encarna la esencia de la marca: un universo de calma, feminidad y quietud en medio del bullicio urbano.
LAS IMÁGENES DE SONGIMAGE – LANGXING ZHOU:















FICHA TÉCNICA:
- Proyecto: Chic Camélia.
- Ubicación: Shanghái (China).
- Superficie: 300 m².
- Completado: agosto 2025.
- Autor: Atelier d’More.
- Director de diseño y equipo: Zhiyi Lu, Wei Wang, Tianrui Yu, Jian Gao, Yunxia Li y Liangjun Xu.
- Colaborador: Xuanji Design.
- Construcción: Shanghai Hetang Decoration.
- Materiales: piedra caliza, revestimientos inorgánicos y contrachapado de abedul.
- Piedra: Bisha Stone.
- Elementos decorativos: Xueyu Furniture Technology Factory.
- Fotografías: SongImage-Langxing Zhou.
PLANIMETRÍA:

AXONOMETRÍA:

SOBRE ATELIER D’MORE:
Atelier d’More fue fundado por Sheng Le y Wang Wei (en este orden en la imagen) en la ciudad china de Shanghái en 2015 y se halla comprometido con un diseño sincero y poco convencional, abogando por un estilo impactante, pero sobrio.
La firma no cede a las convenciones y apuesta por diseñar con profundidad, sin sacrificar la conciencia y profundizando en la esencia de las cosas. Además, sostiene que la arquitectura no es solo una combinación de estructura y materiales, sino también una forma de conectar a las personas con el entorno y de unir el arte con la ciencia. El estudio practica métodos de diseño y construcción poco convencionales, rompiendo los estereotipos de la arquitectura y del espacio, y creando sorpresas en el espacio a través de expresiones poéticas.
Numerosas obras de Atelier d’More han sido difundidas en medios y revistas de diseño nacionales e internacionales, como Gooood, Dezeen, Designboom, Designverse, ABBS, World-Architects, Architectural Digest, Frame, ArchDaily, AmazingArchitecture, ID+C, MD, ELLE DECOR, Interiors, NOT, VISION y Fashion Home. Además, ha recibido numerosos premios internacionales de diseño, entre ellos Architecture MasterPrizes, DNA Paris Design Awards, The Plan Awards, SDA Shenzhen Global Design Award y el 19.º International Design Media Awards, entre otros. Es la única empresa de diseño china galardonada con los premios Best of Best en diseño arquitectónico y diseño de interiores en los Architecture MasterPrize 2022 y con el premio a la Firma de Diseño de Interiores del Año 2024.
Sus proyectos abarcan diseño arquitectónico, paisajístico, de interiores, de mobiliario y de producto, entre otros. Atelier d’More está especializado en un diseño integrado que comprende arquitectura, interiorismo y paisaje, garantizando la integridad global del proyecto.
ATELIER D’MORE EN INTERIORES MINIMALISTAS
Fuente: Atelier d’More







Leave A Reply