
CASA AM:
Estudi Alfred Garcia Gotós firma esta reforma integral que transforma una vivienda tradicional, situada a los pies de las montañas de Prades, en la Serra de la Llena (Lleida), en un hogar contemporáneo, funcional y profundamente conectado con su entorno. La intervención se define por un equilibrio entre memoria y modernidad, potenciando la relación entre arquitectura, paisaje y confort doméstico.
Ubicada en una posición privilegiada, en el límite del núcleo urbano y en diálogo directo con la plaza del pueblo, la casa se abre hacia el paisaje natural que la rodea. Esta ubicación ha sido determinante en el proyecto, orientando todas las decisiones de diseño hacia la integración con el entorno. El equipo de Estudi Alfred Garcia Gotós transformó la estructura original para crear un espacio más amplio, luminoso y fluido, en el que interior y exterior se entrelazan visual y funcionalmente.
Tres forjados convertidos en uno
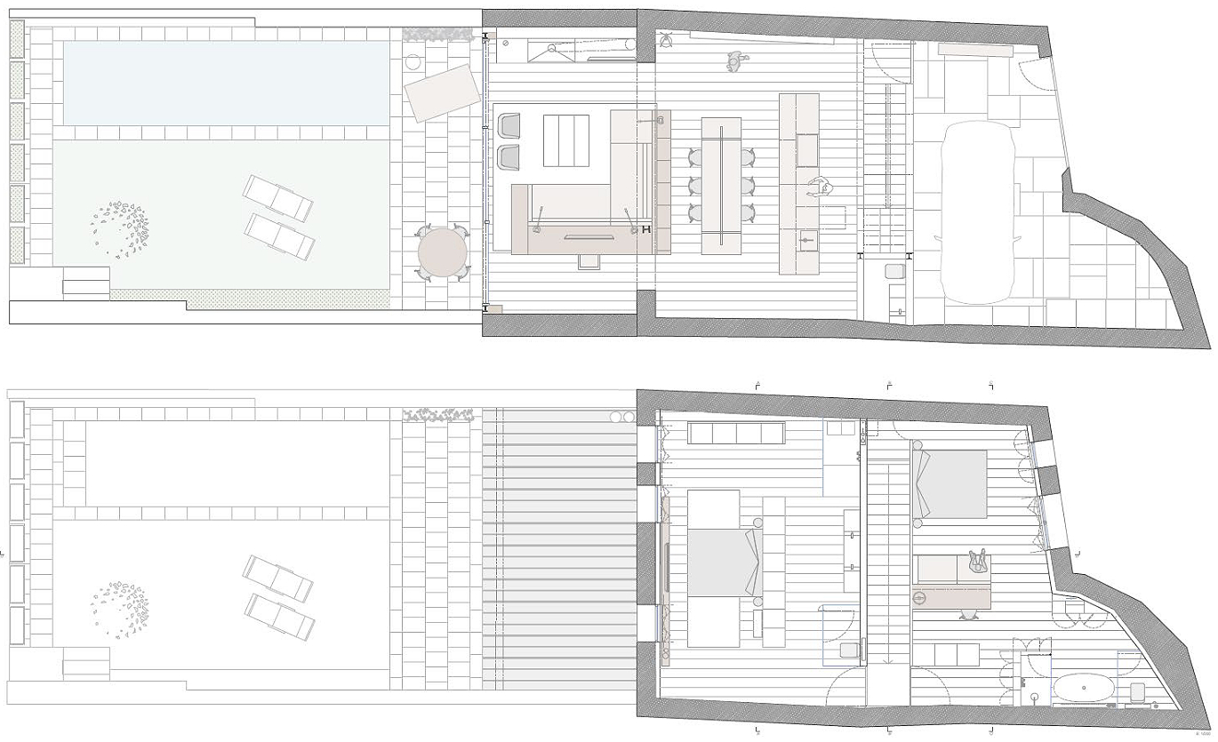
La intervención incluyó tanto actuaciones de demolición en la nave lateral del patio como en el edificio principal, lo que supuso una notable mejora funcional y una relación más directa con el exterior. Asimismo, los tres forjados existentes en la vivienda original se unificaron en uno solo, reorganizando el espacio en dos niveles claramente diferenciados: la planta baja destinada a la zona de día y la planta superior a la zona de noche.
La organización interior de la vivienda gira en torno a la caja de escalera, un elemento central que articula los diferentes espacios y facilita el paso de las instalaciones. En la planta baja, se encuentran el garaje con acceso directo a la vía pública, un baño de cortesía y un amplio espacio de cocina y comedor. La planta primera, en cambio, alberga la zona más íntima, con dos dormitorios dobles, cada uno con su baño y vestidor, configurando un ambiente sereno y acogedor.
Nuevos elementos estructurales metálicos
Uno de los aspectos destacados del proyecto fue la incorporación de una estructura metálica que permite apuntalar la planta baja dejando el mínimo elemento vertical, situado a un tercio del espacio. Esta estrategia evita una intervención invasiva y refuerza la relación entre el interior y el exterior, generando amplitud y transparencia. Siguiendo el mismo planteamiento de utilizar elementos estructurales metálicos, en la suite principal, una viga metálica de perfiles ligeros se integra con elegancia en el espacio, aportando estabilidad sin restar ligereza.
Pero la intervención no solo se centró en mejorar la funcionalidad, sino también en conservar la esencia de la vivienda original. Estudi Alfred Garcia Gotos apostó por la rehabilitación de los elementos de interés histórico: las fachadas de piedra, las vigas de madera y el techo tradicional fueron cuidadosamente restaurados para mantener la identidad y la memoria del edificio.
Materiales que respetan la construcción tradicional del lugar
En cuanto a los materiales, se optó por una selección que respeta la tradición constructiva local. La piedra se emplea tanto en los interiores como en los exteriores, asegurando continuidad y armonía visual. Las losas de piedra caliza autóctona del pavimento del garaje y la piedra de la fachada ejemplifican esta coherencia.
El nuevo acabado del techo, realizado con tejas, mantiene la coherencia formal con la arquitectura original, mientras que la madera está presente en los pavimentos, parte del mobiliario y las vigas del techo, aportando calidez a los diferentes espacios. En las zonas húmedas, el mármol Travertino natural se combina con la piedra para ofrecer resistencia, durabilidad y una elegancia atemporal.
Confort, luz y armonía con el entorno
Detalles como los espejos colocados estratégicamente trasladan el paisaje al interior, multiplicando la luz y la sensación de amplitud. Las contraventanas interiores, por su parte, aportan funcionalidad, intimidad y confort, reforzando la atmósfera doméstica sin renunciar a la claridad.
El resultado es una vivienda que equilibra la herencia material con las necesidades contemporáneas. La intervención de Estudi Alfred Garcia Gotós demuestra cómo la arquitectura puede reinterpretar el pasado sin renunciar a la innovación: una casa que dialoga con su territorio, donde la luz, la materia y el paisaje se integran en un conjunto coherente, sereno y lleno de sentido.
LAS IMÁGENES DE FERNANDO ALDA:









FICHA TÉCNICA:
- Proyecto: Casa MA.
- Ubicación: El Vilossell – Les Garrigues (Lleida / España).
- Superficie: 260 m².
- Completado: 2024.
- Autor: Estudi Alfred Garcia Gotós.
- Colaboradores: Ángela Escola, Sara Rodríguez, Sandra Guerrero, Joaquín Arenas M2A y Joan Olivart.
Industriales:
- Constructor y albañilería: J. María Perramon (Igleper).
- Estructura: Miquel Ángel Sala (Masala).
- Instalaciones, electricidad, iluminación y climatización: Electromag Segre.
- Carpintería: Mwood.
- Vidrería y cerrajería: Jaume Costa y Óscar Moce.
- Pavimentos: Josep Cots Parkets.
- Pinturas: Pintures Muntanyola.
Acabos y equipamientos:
- Cocina: Poliform.
- Baño: Icónico, Roca y Noken.
- Iluminación: Lumina y Flos.
- Mobiliario: Atemporal, Duch y Carl Hansen & Søn.
- Escultura: Enric Casanovas.
Fotografía: Fernando Alda. FERNANDO ALDA EN INTERIORES MINIMALISTAS
PLANIMETRÍA:


ESBOZOS:

SOBRE ALFRED GARCIA GOTÓS:
Estudi Alfred Garcia Gotós (Flix / Tarragona, 1967) es interiorista por la Escuela Superior de Diseño Eina de Barcelona. En esta ciudad, empieza a colaborar con diferentes estudios de arquitectura e interiorismo, a la vez que asume encargos propios. En 1994, funda el estudio que lleva su nombre, especializado en el desarrollo de proyectos de interiorismo comercial, efímero y privado, basados en la racionalidad, la sobriedad formal y en una línea proyectual perdurable. Garcia Gotós compagina su labor como diseñador de interiores con la docencia como profesor en la Escuela Municipal de Bellas Artes (EMBA) de Lleida.
ALFRED GARCIA GOTÓS EN INTERIORES MINIMALISTAS
Fuente: Alfred Garcia Gotós







Leave A Reply