ESPACIO SIGMA SHANGHÁI:
El despacho de arquitectura e interiorismo ONOAA STUDIO fue el encargado de diseñar el espacio de SIGMA, la prestigiosa empresa japonesa especializada en cámaras y objetivos fotográficos de alta precisión, en la ciudad china de Shanghái. En este entorno, tecnología, naturaleza y arte se fusionan en perfecta armonía, dando forma a la filosofía de la marca: “Más allá de la tecnología, está el arte”.
Un recorrido fluido
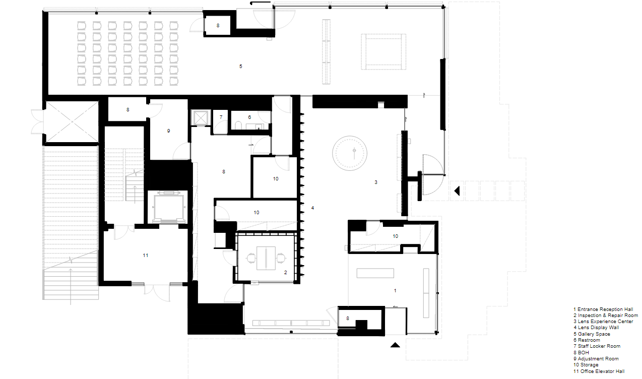
Con raíces en la tradición artesanal japonesa y un espíritu innovador, Gao Ya y Chen Peng transformaron los 500 m² del espacio en un recorrido fluido que integra recepción, exposición de productos y galería. Cada zona se creó como un escenario para vivir la esencia de la marca: la recepción invita a ser, reflejando la cultura corporativa; la exposición de productos celebra la habilidad y precisión del oficio, incitando a crear; y la galería ofrece un espacio de contemplación, donde se respeta y aprecia la creación artística. El resultado es una narrativa espacial que respira equilibrio, sofisticación y precisión.
Tonos neutros para la recepción
Al entrar, el visitante percibe una sensación de intimidad gracias a que la altura del techo se redujo en un metro, pasando de 3,60 m a 2,60 m. La recepción, concebida como un vestíbulo, se caracteriza por tonos neutros: paredes de hormigón blanco puro, suelo de ladrillo artesanal gris beige, tela de lana teñida en azul intenso en el mostrador de recepción y cálidos nichos en tonos marrones.
Transparencia y funcionalidad en el taller de reparación
El taller de reparación de productos, visible para los visitantes, revela el carácter integral de la empresa: desde los tornillos más pequeños hasta moldes y piezas complejas, todo se fabrica en Aizu (Japón), donde se encuentra su única fábrica. Para optimizar el trabajo, ONOAA diseñó un sistema de almacenamiento que cubre tres paredes con cajones y techos iluminados integrados, que aportan la serenidad de un laboratorio. Dos bancos de trabajo enfrentados, con paneles de madera flexibles y ventanas, ofrecen distintas posibilidades de observación e interacción.
Zona expositiva: la artesanía en primer plano
El nuevo espacio de exposición refleja la pasión de SIGMA por la artesanía y la precisión. La zona se caracteriza por una gran alfombra de lana marrón, cuya textura, obtenida tras un delicado proceso de fresado, recuerda al fieltro y aporta una rugosidad terrosa que invita a la contemplación. Las cámaras y objetivos se muestran sobre mesas y soportes diseñados específicamente para resaltar cada pieza, integrándose en un entorno donde cada detalle, desde los materiales hasta la iluminación, refuerza la experiencia de la artesanía y la innovación. “Al pensar en el estilo japonés y los productos ópticos, uno suele pensar en el negro, el blanco y el gris. Inicialmente, concebimos colores racionales y sobrios, pero, tras hablar con la marca, el presidente de SIGMA nos animó a explorar otros colores, convencido de que la marca siempre debe mantenerse abierta a la innovación”, explica Gao Ya.
Una mesa que simboliza la captura del tiempo
Una pared de 3 m de altura y 10 m de longitud, con placas metálicas triangulares, exhibe más de 100 monturas personalizadas, mostrando las líneas contemporánea, artística, deportiva y cinematográfica de SIGMA. En el centro, una mesa circular de piedra caliza, evocando la forma de una lente de cámara, contiene fósiles marinos que simbolizan la captura del tiempo propia de la fotografía. En la mesa, las monturas de las cámaras personalizadas, fabricadas en metal, invitan a los visitantes a probar las lentes, transformando la contemplación en una experiencia práctica y sensorial.
La galería: minimalismo y contemplación
La galería, destinada a exposiciones y eventos, encarna la filosofía de SIGMA: “Los caminos de la mirada”. “Abordamos los detalles del espacio con el mismo cuidado con que SIGMA trata sus objetivos”, explica el equipo de ONOAA. Su diseño enfatiza la belleza del minimalismo, elevando toda la superficie 15 centímetros. La estructura plana, de estilo japonés, confiere al espacio una sensación de ritual, mientras que las intervenciones mínimas permiten que el espacio se adapte al arte expuesto, de manera similar a como las zonas sin pintar en las pinturas a tinta invitan a la contemplación.
La galería se conecta con el Jardín de Helechos del distrito Upper Sheshan, donde las cortinas opacas a medida modulan el bullicio exterior con la tranquilidad interior, ofreciendo múltiples formas de experimentar el espacio y reforzando la relación entre naturaleza, arquitectura y experiencia sensorial.
Un diálogo con la artesanía
La selección de materiales táctiles, la iluminación cuidadosamente modulada y los meticulosos detalles inspirados en la artesanía de la fábrica de Aizu convirtieron cada rincón en una celebración de precisión y creatividad. El resultado fue un espacio que no solo muestra productos, sino que genera conexiones emocionales, envolviendo al visitante en una atmósfera serena y cálida, donde cada gesto, textura y luz dialoga con el legado de SIGMA.
LAS IMÁGENES DE JONATHAN LEIJONHUFVUD:














FICHA TÉCNICA:
- Proyecto: Espacio SIGMA.
- Ubicación: Shanghái (China).
- Superficie: 500 m².
- Completado: 2024.
- Autor: ONOAA STUDIO.
- Fotografías: Jonathan Leijonhufvud.
PLANIMETRÍA:

SOBRE ONOAA STUDIO:
Fundado, en 2019, por Gao Ya y Chen Peng en Shanghái, ONOAA STUDIO es un estudio de arquitectura y diseño de interiores. El trabajo del despacho abarca espacios comerciales, rehabilitaciones arquitectónicas, residencias privadas y espacios culturales. Comprometido con la fusión de creatividad y funcionalidad, ONOAA integra experimentos espaciales con la realidad, encontrando soluciones mediante un control meticuloso del proceso de diseño. En última instancia, la creación del espacio sigue siendo la esencia de su oficio.
Fuente: v2com newswire y en la web de ONOAA








Leave A Reply