
CASA VA:
La Casa VA, diseñada por el estudio DIIR, es un proyecto que explora nuevas estrategias para viviendas de dimensiones reducidas mediante un enfoque experimental y flexible. La vivienda, ubicada en Madrid (España), se define por su cuidada geometría y la relación constante entre interior y exterior a través de seis amplios ventanales, generando espacios funcionales y abiertos donde la luz natural y los materiales cuidadosamente seleccionados construyen un ambiente coherente y contemporáneo.
Laboratorio de experimentación y optimización espacial
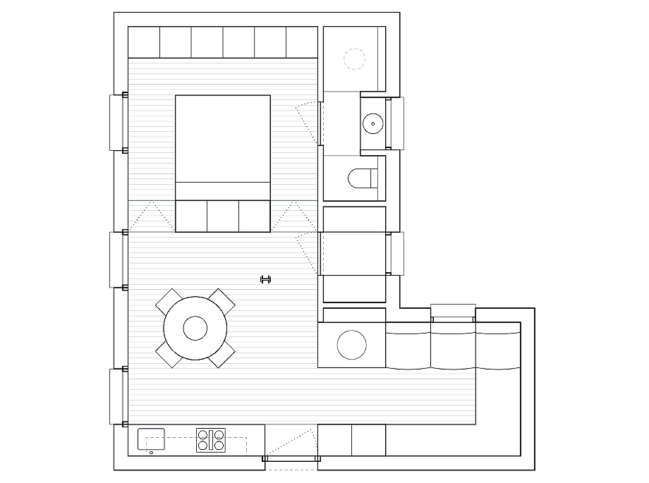
La casa nace como un espacio de investigación sobre modelos habitacionales atípicos. Con una superficie de 60 m², el proyecto optimiza cada centímetro para crear un entorno flexible y multifuncional, mientras que establece un diálogo con el exterior mediante seis grandes aperturas en tres de sus fachadas. Éstas inundan de luz el interior y amplían la percepción de la superficie real, convirtiendo el espacio en un “tablero de juego” adaptable para la disposición de los distintos elementos domésticos.
Juego de niveles y modularidad
La propuesta del despacho de arquitectura se basa en un espacio abierto articulado por niveles diferenciados, que permiten delimitar las funciones propias de una vivienda. Los zócalos de granito funcionan como puntos de apoyo para el mobiliario, la cama, la cocina o los armarios, integrando cada pieza de diseño dentro del conjunto arquitectónico. Este planteamiento crea un paisaje doméstico donde cada elemento forma parte de la arquitectura, generando una experiencia espacial unificada y coherente.
Integración en el espacio
En palabras de los arquitectos, la construcción de este «juego de alturas ayuda en el desarrollo de un paisaje doméstico donde cada elemento nace de la propia arquitectura. Los zócalos de granito actúan de soporte y aguardan la llegada de diversas piezas de diseño: sofá, cama, cocina, armario…. Estas colonizan el espacio y dan carácter a un ambiente uniforme donde cada elemento queda perfectamente integrado en el espacio.»
Selección de materiales y atmósfera
El proyecto combina superficies metálicas, zócalos de piedra natural y suelos de madera cálida, estableciendo un lenguaje material sobrio y elegante. Asimismo, la neutralidad del contenedor permite que las piezas de diseño, la iluminación y las obras de arte activen la vivienda, generando contrastes sutiles y aportando identidad al interior. La integración cuidadosa de estos elementos garantiza que cada intervención dialogue con el entorno y participe en la definición de la atmósfera.
Arte y diseño como impulso del espacio
En Casa VA, el arte y el mobiliario en diversos formatos funcionan como elementos dinámicos que transforman y activan el espacio. Su color y presencia construyen una narrativa visual que interactúa con la arquitectura, definiendo la identidad del proyecto y consolidando la vivienda como un entorno contemporáneo donde funcionalidad, estética y experimentación conviven de manera equilibrada.
LAS IMÁGENES DE LUIS DÍAZ DÍAZ:















FICHA TÉCNICA:
- Proyecto: Casa VA.
- Ubicación: Madrid (España).
- Superficie: 60 m².
- Completado: julio 2025.
- Autor: DIIR.
- Arquitectos: David Meana, Ignacio Navarro, Iñigo Palazón y Ricardo Fernández.
- Fotografías: Luis Díaz Díaz. LUIS DÍAZ DÍAZ EN INTERIORES MINIMALISTAS
PLANIMETRÍA:

AXONOMETRÍA:

SOBRE DIIR:
Fundada en 2018, DIIR es una firma de arquitectura con sede en Madrid (España), que nace de la visión de cuatro arquitectos: David Meana, Ignacio Navarro, Iñigo Palazón y Ricardo Fernández. Graduados por la Escuela Técnica Superior de Arquitectura de Madrid (ETSAM), complementaron su formación con experiencias internacionales en Estados Unidos, Suecia, Francia, China o India. Esta oportunidad les ha dado una perspectiva abierta que ahora aplican en cada uno de sus innovadores trabajos.
Sus proyectos, marcados por un fuerte posicionamiento estratégico y conceptual, han recibido reconocimiento a nivel nacional e internacional. El enfrentamiento a proyectos de múltiples escalas les ha permitido desarrollar una práctica que explora infinitas vías para alcanzar la singularidad por medio de la sensibilidad y el rigor. Los diversos proyectos públicos ganados al inicio de su andadura -algunos de ellos actualmente en construcción- se combinan con encargos privados de toda índole.
La consecución de esta variedad de trabajos ha permitido que el estudio sea galardonado por el Colegio Oficial de Arquitectos de Madrid (COAM) como estudio emergente en varios años consecutivos, o por medios como AD como uno de los estudios jóvenes con mayor proyección.
La filosofía de DIIR es un diálogo entre belleza y experiencia vital. «Concebimos y transformamos espacios como lugares en constante interacción con la experiencia vital de las personas, influyendo en su día a día y en la calidad de su existencia. DIIR es un diálogo entre rigor y sensibilidad. La perseverancia y precisión con la que abordamos cada trabajo convive con la delicadeza por alcanzar soluciones que se guíen por la búsqueda de la singularidad. DIIR es un diálogo entre atemporalidad y resonancia. Nos alejamos de tendencias y modas con el objetivo de alcanzar espacios que perduren en el tiempo y que, a su vez, tengan la capacidad de generar impacto sobre aquellos que interactúan con ellos», explican.
DIIR EN INTERIORES MINIMALISTAS
Fuente: DIIR






Leave A Reply