CASA CANO:
Casa Cano es un reciente proyecto del estudio valenciano Fran Silvestre Arquitectos que combina minimalismo y rigor estructural en un espacio residencial cuidadosamente concebido para la luz, la proporción y la relación con el entorno. La propuesta se construye mediante geometrías claras, materiales cuidadosamente seleccionados y detalles constructivos visibles, creando un diálogo entre austeridad y calidez. Cada elemento parte de un todo coherente, ofreciendo una experiencia de habitar serena, flexible e integrada en el contexto.
Intensificar la relación con el jardín y la piscina
La vivienda se desarrolla siguiendo la lógica del programa funcional y su implantación en una avenida principal de la ciudad de Alicante (España). Su ubicación en la franja oeste de la parcela se traduce en un desplazamiento que permite ampliar el espacio exterior vinculado a la zona de estar, intensificando su relación con el jardín y la piscina. Al mismo tiempo, la intervención respetó las especies arbóreas de gran porte existentes y las combinó con nuevas plantaciones que, con el tiempo, aumentarán la densidad y riqueza del jardín.
Tres ámbitos claramente diferenciados
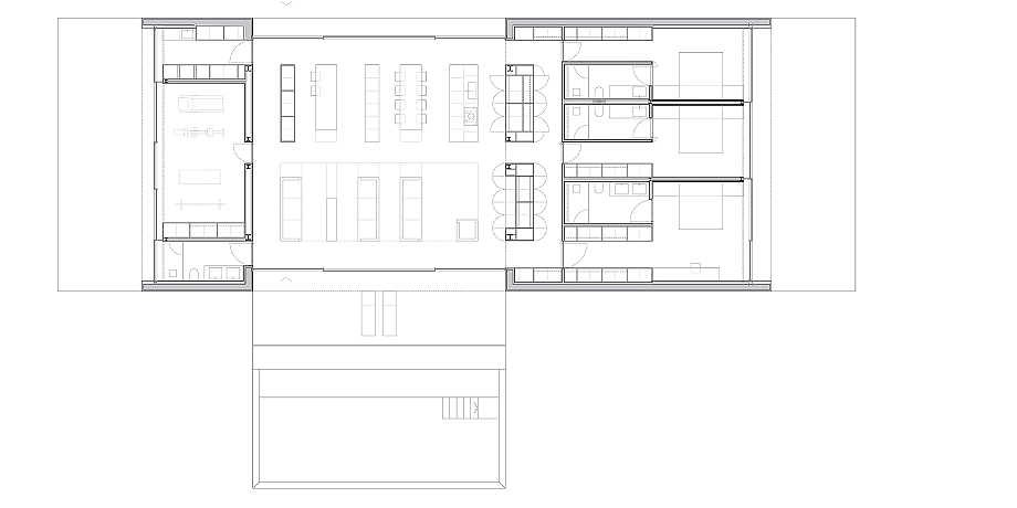
La volumetría se articula mediante dos cuerpos de menor altura entre los que se intercala un volumen principal más elevado, responsable de enfatizar el espacio principal. El acceso principal se realiza desde el lado este, a través de una calle más tranquila, reforzando la privacidad. La vivienda se organiza en tres ámbitos claramente diferenciados: la zona de noche, la zona de día y un área destinada a la práctica deportiva. Entre la zona de día y el ámbito deportivo, un espacio pasante orientado norte-sur funciona como transición y favorece la ventilación cruzada.
Un volumen principal que parece levitar
El volumen de mayor tamaño, que acoge la zona de estar, parece elevarse ligeramente, subrayando su presencia y otorgando identidad al conjunto. Su ancho ancho refuerza esa condición, haciendo que el volumen parezca levitar sobre el espacio que protege. El espesor de este cuerpo permite alojar en su interior una estructura de gran canto, de modo que el espacio principal puede desarrollarse sin apoyos intermedios. La zona de día, donde se buscó una mayor altura libre, se concibe como un ámbito continuo que conecta directamente con el pavimento exterior y la lámina de agua, difuminando los límites entre interior y exterior y reforzando el carácter abierto de la casa.
Orientar la zona de noche al sol de la mañana
Por otra parte, una premisa fundamental del proyecto fue orientar la zona de noche hacia el este, asegurando la entrada de la luz de la mañana y reforzando la relación directa con el ciclo natural del día.
Cromatismo continuo y cálido
En el interior, obra de Alfaro Hofmann, los materiales se despliegan en un cromatismo continuo y cálido. Algunos de los paramentos verticales y ciertos muebles en madera de roble aportan textura y profundidad, mientras que la temperatura de color de la iluminación refuerza el ambiente acogedor. Esta combinación crea un interior de marcada sensación doméstica, donde la calidez de los materiales y la luz se integran para potenciar la experiencia sensorial del espacio.
Una simplicidad que encierra complejidad
Casa Cano es, en definitiva, un ejemplo de arquitectura que surge de la combinación entre lugar y programa: una simplicidad que encierra complejidad, donde cada decisión responde tanto a la función como al contexto, y donde la claridad formal y la precisión estructural crean un espacio que invita a habitar con calma, libertad y sensibilidad hacia el exterior.
LAS IMÁGENES DE JESÚS ORRICO:

















FICHA TÉCNICA:
Proyecto: Casa Cano.
- Ubicación: Alicante (España).
- Superficie parcela: 1.251,00 m².
- Superficie construida: 312,22 m².
- Completado: 2025.
- Arquitectura: Fran Silvestre Arquitectos.
- Diseño interior: Alfaro Hofmann.
- Equipo de proyecto: Fran Silvestre y Carlos Lucas, arquitectos.
- Arquitecta de proyecto: Estefanía Soriano.
- Arquitecto técnico: Enrique Alario Catalá.
- Estructurista: Windmill Structural Consultants.
- Constructor: Bues Simon Group.
Colaboradores:
- Arquitectos: María Masià, Pablo Camarasa, Ricardo Candela, Estefania Soriano, Sevak Asatrián, Susana León, Javi Herrero, Facundo Castro, Anna Alfanjarín, Laura Bueno, Susana León, David Cirocchi, Neus Roso, Nuria Doménech, Andrea Raga, Olga Martín, Víctor González, Pepe Llop, Laura Palacio, Carlos Perez, Jovita Cortijo, Claudia Escorcia, Diana Murcia, Daniel Fenollosa, Andrés Jiménez, Álvaro Navarro, Diana Chilingaryan, Maria Barberá, Roberto Marañón y Paco Chinesta.
- Interioristas: Toni Cremades, Andrea Blasco, Olga Fernández y Martina Tomás.
Instalaciones:
- Climatización: suelo radiante, climatización por conductos y ACS por Aerotermia. Ventilación mecánica.
- Mecanismos: JUNG.
- Iluminación interior: foseados en falso techo. Luminaria lineal LED.
- Iluminación exterior: luminaria lineal LED.
Acabados:
- Pavimento exterior: Living Ceramics.
- Pavimentos interior: Living Ceramics.
- Revestimientos: Solid Surface y panelados lacados/ laminados de madera, y placa de yeso laminada.
- Estores: Tecnicolor.
Carpintería y cerrajería:
- Carpintería exterior: IMG Windows.
- Carpintería interior: a medida por carpintero.
- Puertas interiores: a medida por carpintero.
Baños:
- Sanitarios: Inspira Round (Roca).
- Mobiliario: hecho a medida.
Fotografías: Jesús Orrico.
PLANIMETRÍA:




MAQUETA:



SOBRE FRAN SILVESTRE ARQUITECTOS:

El estudio Fran Silvestre Arquitectos fue fundado en 2005 y tiene su sede en un antiguo taller del escultor Andreu Alfaro en Valencia (España), un espacio de 7.000 m² donde un equipo multidisciplinar de más de 50 profesionales trabaja en proyectos residenciales, culturales, corporativos y públicos a nivel internacional.
A lo largo de su carrera, el arquitecto ha sido reconocido con numerosos premios, incluyendo el de la Fundación Caja de Arquitectos en 2001 y el Premio del Colegio de Arquitectos de la Comunidad Valenciana (COACV) en 2010. En 2012, fue designado embajador de la Arquitectura Española en Estados Unidos por el Ministerio de Cultura y Deporte, y en 2013 recibió el prestigioso Red Dot Design Award.
Su obra ha sido galardonada en múltiples ocasiones, destacando el Build Architectural Award en 2015 en Reino Unido, y el primer premio de la XIII Bienal Española de Arquitectura y Urbanismo (BEAU) en 2016. También ha sido premiado en varias ocasiones por el Ministerio de Economía y Tecnología Alemán, así como en los premios FAD y el iF Design Award. En 2022, recibió la medalla de oro en la categoría de Arquitectura de la Federación Internacional de Arquitectos y Diseñadores.
Fran Silvestre ha sido invitado a presentar su trabajo en conferencias y seminarios en instituciones internacionales, como la AIA de Nueva York y Virginia Tech, y expuesto en museos como el Museu Serralves de Oporto y el MoMA. Su obra ha sido publicada en revistas especializadas y editoriales de renombre, y recientemente, la editorial Rizzoli de Nueva York lanzó una monografía que incluye algunos de sus proyectos más representativos.
Los proyectos de Fran Silvestre Arquitectos se encuentran en diversas partes del mundo, incluyendo China, Estados Unidos, Brasil y España, abarcando tanto obras de pequeña como de gran escala. La arquitectura del estudio está influenciada por la obra de Álvaro Siza y Andreu Alfaro, y se caracteriza por su enfoque en crear entornos que elevan la experiencia cotidiana, como lo describe el crítico David Cohn.
FRAN SILVESTRE ARQUITECTOS EN INTERIORES MINIMALISTAS
SOBRE ALFARO HOFMANN:
El estudio de arquitectura e interiorismo Alfaro Hofmann comienza su actividad en 1982 como complemento a la venta de muebles en su local de la calle del Mar, en Valencia (España). Sus proyectos están dirigidos principalmente al ámbito doméstico y comercial, potenciando el tratamiento integral de la arquitectura, el interiorismo y la imagen gráfica.
En la actualidad, el estudio se encuentra ubicado en la localidad valenciana de Godella, compartiendo instalaciones con la Colección Alfaro Hofmann. Ésta es una entidad privada dedicada a la muestra y divulgación de sus fondos sobre la cultura del objeto cotidiano del siglo XX y, en especial, del electrodoméstico.
El interés de Alfaro Hofmann por el mundo del hogar abarca todas sus dimensiones: desde su evolución estética o aspectos relacionados con la etnología, hasta las últimas tendencias en diseño.
El estudio colabora habitualmente con Fran Silvestre Arquitectos.
ALFARO HOFMANN EN INTERIORES MINIMALISTAS
Fuente: Fran Silvestre Arquitectos








Leave A Reply