
CASA JCM:
Este proyecto de reforma, realizado por Ralph Germann architectes, un estudio con experiencia en intervenciones similares, se ubica en los Alpes vaudenses, una región montañosa del cantón de Vaud, en Suiza, conocida por sus paisajes alpinos y su tradición agrícola. La intervención consistió en transformar un antiguo granero en una vivienda contemporánea, respetando al máximo su volumen original y su identidad histórica, así como el entorno rural en el que se encuentra. La renovación combina la preservación de elementos originales con soluciones modernas de confort y sostenibilidad, permitiendo que los ocupantes experimenten la sensación de vivir dentro de un granero histórico mientras se integran tecnologías ecológicas y materiales reutilizados.
El antiguo granero
En la construcción existente, el heno se almacenaba en la planta superior y la planta baja era utilizada como refugio temporal por el granjero de entonces. Su tejado de pronunciada pendiente permitía que la nieve se deslizara sin acumularse, mientras que los profundos aleros protegían la fachada de las inclemencias del clima. Las aberturas triangulares, concebidas para ventilar el interior y conservar el heno, se preservaron durante la renovación y se cerraron con vidrio, manteniendo su carácter original.
Respetar la construcción y el entorno
Los principales requisitos del proyecto fueron establecidos por el Servicio Cantonal de Urbanismo y Construcción, quien insistió en que, desde un enfoque cualitativo, todas las intervenciones debían respetar con rigor la identidad original de la construcción y la armonía con su entorno, dado que la propiedad se encuentra una zona agrícola.
Un gran «cubo» de vidrio y madera
El espíritu de la renovación se centró en preservar al máximo el volumen original, de modo que los ocupantes pudieran experimentar la sensación de habitar un granero histórico. Para ello, se insertó un gran “cubo” de vidrio y madera dentro del espacio, destinado a albergar los ambientes de la vivienda sin alterar la percepción del volumen original.
Reconstrucción del tejado original
En paralelo, se conservaron todos los elementos del antiguo granero, incluido el tejado, que fue cuidadosamente desmontado, aislado e impermeabilizado, y posteriormente reensamblado con las tejas originales de 1913. Las aberturas originales, como puertas y ventanas, mantuvieron sus proporciones y se dotaron de vidrio. En la planta superior, se abrió un gran vano a lo largo de la fachada para favorecer la entrada de luz natural, mientras que todo el conjunto se recubrió con tablones horizontales, respetando la coherencia arquitectónica del edificio.
Compromiso con la sostenibilidad
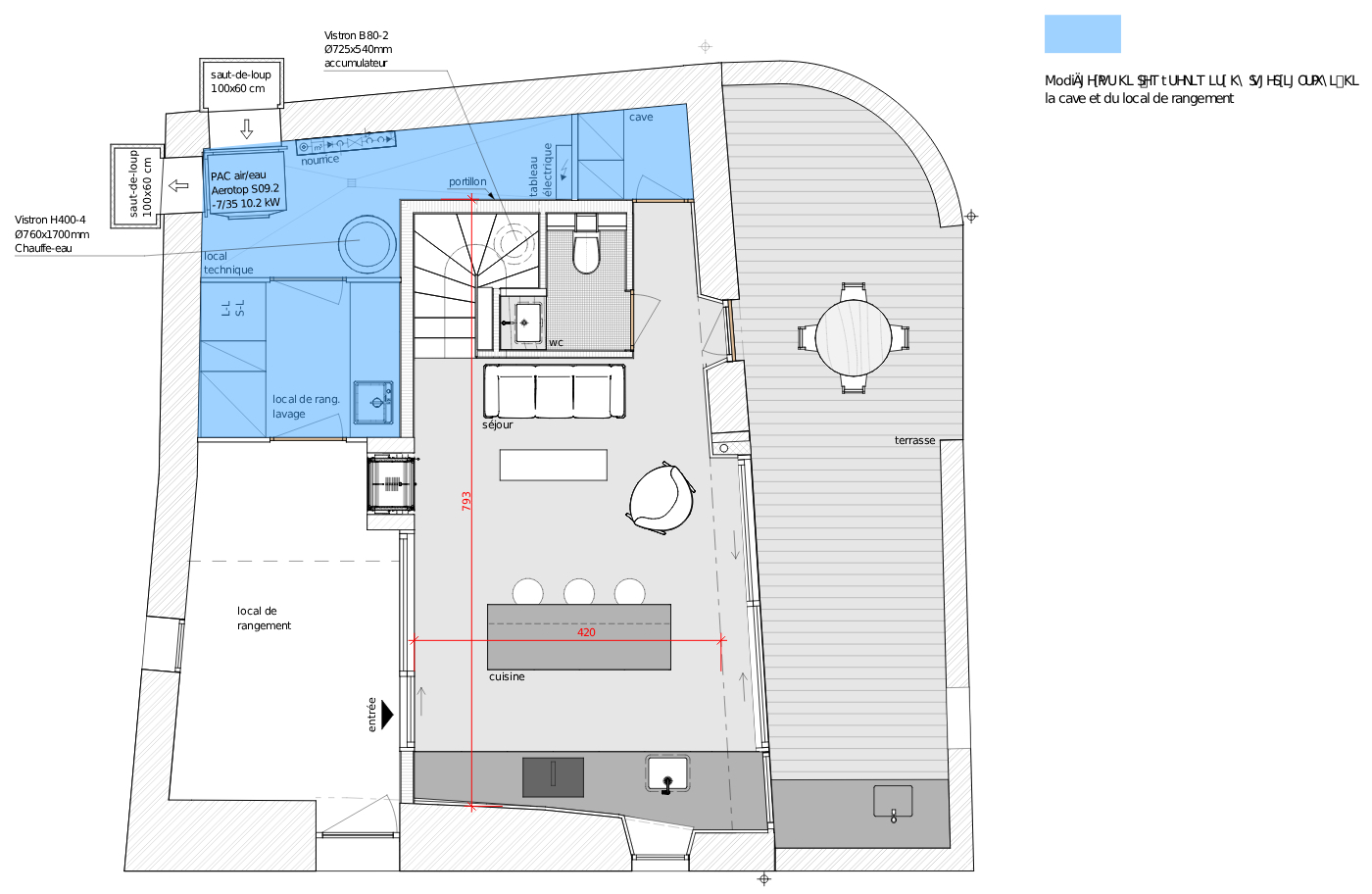
Dentro de las distintas medidas ecológicas, que reflejan el compromiso del estudio con la sostenibilidad, se incluyó la reutilización de toda la madera del interior del granero para fabricar la cocina y las puertas de la planta baja. Se aplicó un revestimiento aislante de cal tanto en las fachadas exteriores como interiores, mientras que la planta superior se aisló con lana mineral insuflada en los espacios entre los tableros del techo y de las paredes. La calefacción y el agua caliente se suministran mediante una bomba de calor aire-agua y una chimenea de acero radiante, integrando eficiencia energética con respeto por los materiales originales.
LAS IMÁGENES DE NICOLAS SEDLATCHEK:

















FICHA TÉCNICA:
Proyecto: Casa JCM.
- Ubicación: Alpes de Vaud (Suiza).
- Superficie: 96 m².
- Completado: 2025.
- Autor: Ralph Germann architectes.
Fotografías: Nicolas Sedlatchek.
PLANIMETRÍA:


SOBRE RALPH GERMANN ARCHITECTES:
Ralph Germann architectes es un despacho suizo, fundado en 2002, con sede en la ciudad de Martigny, muy preocupado por las cuestiones mediambientales. En este sentido, el gesto arquitectónico nunca es un ataque al paisaje sino una celebración del mismo. En sus proyectos y en consecuencia con esta forma de trabajar, el estudio presta una gran atención a la selección de los materiales así como a los detalles.
La arquitectura del estudio puede definirse con dos palabras: estética y funcionalidad. Desde los interiores ordenados y monásticos hasta la arquitectura vernácula, sus proyectos crean interiores inteligentes donde el minimalismo significa comodidad. Sus construcciones están salpicadas de piezas de mobiliario únicas, diseñadas a medida por Ralph German Architectes para cada espacio.
RALPH GERMANN EN INTERIORES MINIMALISTAS
Fuente: MC²







Leave A Reply