
CASA TLALOC:
La casa Tlaloc se levanta en un terreno en pendiente en Xalapa, capital del estado de Veracruz (México), una ciudad conocida por su clima húmedo, su abundante vegetación y su relación constante con la niebla y la lluvia. Su arquitectura y diseño interior han sido tejidos por López González, el estudio que el arquitecto José Pedro López González creó en 2021. La estructura de la vivienda responde al programa funcional y al nivel de privacidad, articulándose en distintos estratos que dialogan con el paisaje, la luz y el agua.
Una lógica estructural aparentemente sencilla
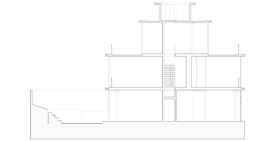
La lógica estructural, que responde a elementos como el asoleamiento, la orografía y el ciclo del agua proporcionados por el entorno, es aparentemente sencilla: una cuadrícula de cuatro ejes bidireccionales anclados por columnas cuadradas, asistida por tres pares de soportes metálicos dobles que liberan tramos específicos de obstáculos. Desde esta estructura, la casa se eleva en planos horizontales apilados, donde cada piso soporta al siguiente, igual que libros apilados. Las losas con voladizos, que sobrepasan la línea de fachada, funcionan como umbrales de protección solar y mecanismos de captación pluvial.
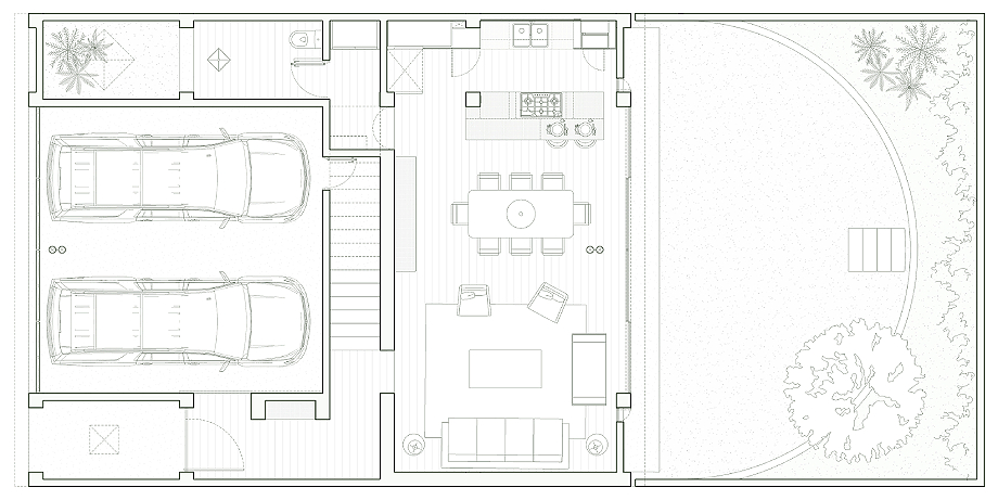
La planta baja, el corazón de la vida en común
En términos de uso, la planta baja se concibe como el núcleo de la vida en común. Los espacios se enlazan de manera fluida pero controlada, abrazados por un semicírculo de grava que envuelve un árbol: un guayacán, cuya floración introduce una dimensión estacional y casi sensorial al conjunto. Al fondo, sumido en una penumbra deliberada, aparece un lavabo de metal tratado como una pieza autónoma, casi escultórica. En este punto, el agua deja de ser un recurso meramente utilitario para convertirse en una experiencia integrada en el recorrido doméstico, con un carácter cercano a lo ceremonial.
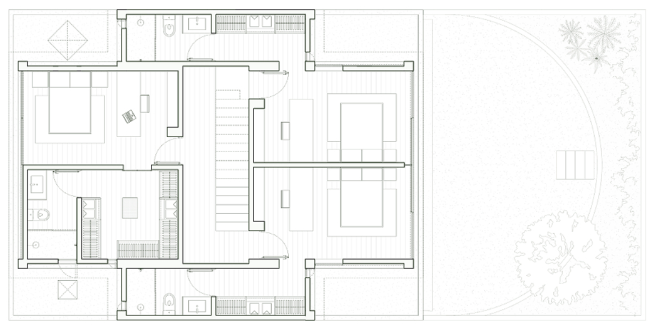
Una habitación principal que se abre a la ciudad
En el primer piso, la vivienda se organiza a partir de una geometría en cruz que estructura el espacio con precisión. Tres estancias se disponen alrededor del eje vertical, manteniendo un equilibrio claro en su distribución: al frente, la habitación principal se abre hacia la ciudad, mientras que las secundarias se extienden hacia los laterales, vinculándose de forma más directa con el jardín.
El espacio como pieza expositiva
Este planteamiento permite asegurar la privacidad sin perder coherencia dentro del conjunto, dando lugar a una arquitectura recogida pero permeable. Los interiores, completamente blancos, generan una sensación de pausa, como si el tiempo se diluyera. Cada espacio se experimenta casi como una pieza expositiva, donde el exterior se transforma en una imagen enmarcada que invita a la contemplación, la memoria y la anticipación. «El mundo exterior es aquí una pintura que invita a observar, a recordar los días que han pasado y a imaginar los días que vendrán», apunta el arquitecto.
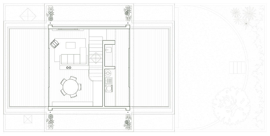
Prolongar la experiencia habitable
El siguiente nivel se repliega respecto al perímetro inferior, marcando una transición más íntima. La sala y el estudio se integran en un único espacio continuo, bañado por la luz cálida del atardecer que define la atmósfera del conjunto. Hacia el exterior, amplias terrazas -ya por encima de las edificaciones vecinas- prolongan la experiencia habitable y abren las vistas hacia el paisaje. Desde aquí, el entorno natural, con su vegetación abundante, se percibe como una escena de postal que acompaña la vida cotidiana.
Un volumen técnico que corona la composición
En lo más alto, un volumen de servicio remata el conjunto sin artificios. De lenguaje directo y sobrio, alberga los sistemas que hacen posible el funcionamiento de la vivienda. Lejos de ocultarse, este cuerpo se muestra con claridad y cierra la composición, subrayando una idea precisa: incluso los elementos más prácticos pueden formar parte de la expresión arquitectónica con plena legitimidad.
LAS IMÁGENES DE CÉSAR BÉJAR:



















FICHA TÉCNICA:
- Proyecto: Casa Tlaloc.
- Ubicación: Xalapa, Veracruz (México).
- Superficie: 315,76 m².
- Completado: 2026.
- Autor: López González.
- Equipo de diseño y construcción: Jesús Arturo López González, ingeniero, y José Pedro López González, arquitecto.
- Ingeniería estructural: Juan Hernández Del Carmen.
- Paisajismo: Proyecto Raíz en colaboración con López González.
- Maqueta: Diego Esparza.
- Fotografías maqueta: Zaickz Moz.
- Fotografías: César Béjar.
PLANIMETRÍA:








AXONOMETRÍA:

MAQUETA:



SOBRE LÓPEZ GONZÁLEZ STUDIO:
Nacido en Ciudad de México en 1991, el trabajo del arquitecto mexicano José Pedro López González se define por una comprensión de la arquitectura como una realidad física, donde las restricciones geográficas, culturales, sociales y materiales determinan el rigor de la disciplina. Esta visión es el resultado de una sedimentación intelectual forjada en múltiples contextos: tras graduarse en la Universidad Veracruzana en 2013, cursó un máster en Arquitectura, Diseño e Innovación en la Universidad Europea de Valencia, complementado con residencias académicas en la Universidad de Chiba, en Japón, y en la FAUP de Oporto, Portugal. En estos entornos de profunda densidad constructiva, consolidó una ética del oficio que concibe el proyecto como una entidad inseparable del tiempo y de su ejecución.
Tras colaborar en encargos de diversas tipologías y escalas, marcados por una alta complejidad técnica y estándares internacionales de sostenibilidad, el arquitecto fundó su propio estudio en 2021. Su práctica destila una metodología singular en la que la revelación de atmósferas experienciales, junto con procesos rigurosos de análisis y experimentación, capaces de subvertir sistemas y técnicas tradicionales mediante escalas y soluciones contemporáneas, converge con la viabilidad técnica y la precisión geométrica. El resultado es un marco operativo integral: una plataforma de proyecto capaz de organizar las condiciones del habitar mediante la calibración del usuario, el territorio, el orden y la técnica.
Bajo esta premisa, su trabajo se sumerge en la búsqueda de lo esencial. Cada intervención constituye una respuesta crítica que busca revelar la vocación latente de un lugar a través de una exigencia técnica absoluta. Al priorizar la honestidad de los sistemas, la dignidad de la materia y la sincronía con cada emplazamiento y sus cadencias, su práctica aboga por un sentido de permanencia: la construcción de estructuras que trascienden su función para anclarse como presencias silenciosas; arquitecturas cuya integridad reside, estrictamente, en la resolución de lo elemental.
Fuente: José Pedro López González






Leave A Reply