
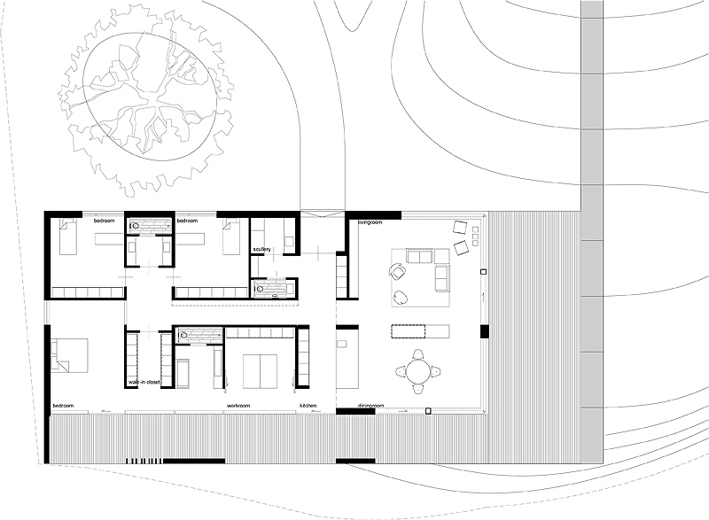
La vivienda tiene una sola planta y responde al deseo de disfrutar de la corriente de agua que discurre a lo largo del terreno. Para satisfacer este deseo se construyó una terraza a lo largo del perímetro de la fachada sur donde se encuentran las principales estancias de la casa: el dormitorio principal con su baño y su vestidor, la cocina y el salón-comedor.

El diseño interior se rige por la combinación de tres colores bajo diferentes formas y texturas, que consiguen un ambiente agradable, libre de contrastes extremadamente pronunciados. También los grandes ventanales que proporcionan luz natural a raudales contribuyen a crear este interior amable y luminoso.
La madera es uno de los materiales que predomina tanto en el interior como en el exterior de la vivienda. Con ella se han llevado a cabo la terraza, el suelo exterior, el mobiliario interior e, incluso, el techo del salón comedor se ha revestido con este material dispuesto en forma de lamas largas y estrechas, aunque en un color más claro que el del resto de la madera utilizada para que no resultara pesado.


El reto de la pared estructural acristalada y en esquina da lugar a una experiencia fenomenal del espacio interior y del exterior en la sala de estar y el comedor. La tensión estructural y arquitectónica de esta solución se vive en casi toda la casa.
Para romper con el paisaje plano se llevaron a cabo varias acciones como construir el techo del salón comedor ligeramente inclinado y acentuar las colinas, donde en una de ellas se encuentra semienterrado el garaje.

La sauna está situada en otra colina y es la más alta de los tres edificios. En este espacio anexo nace la cascada en acero corten que baja hacia el agua que discurre por la parcela, pasando por delante de una parte de la vivienda.

- Proyecto: Villa Frenay.
- Localización: Lelystad (Países Bajos).
- Finalización: mayo 2010.
- Arquitectos: 70 F.
- Project architect: Carina Nilsson.
- Dirección de proyecto: Bas ten Brinke.
- Ingeniero: van Rossum Almere.
- Contratista: Ubink Almere.
- Fotografías: Luuk Kramer (www.luukkramer.nl)
Planimetría:

Imágenes facilitadas por 70F architecture




















Comment